Štát sa konečne rozhýbal. V Petržalke vznikne nová materská škola
Materské školy majú zásadnú úlohu – formovať dieťa v kritickom ranom veku. Práve preto je enormne dôležitá úroveň vzdelávacej inštitúcie. V súčasosti sa však budujú škôlky najmä zo súkromných zdrojov a výstavba nových zariadení zo strany štátu alebo samosprávy je v Bratislave väčšinou na úrovni sci-fi. V najbližšej dobe by sa to malo zmeniť.
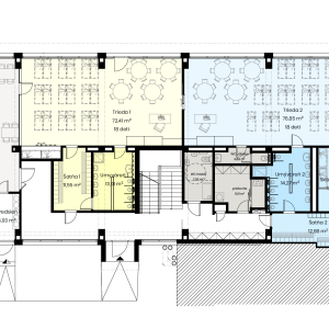
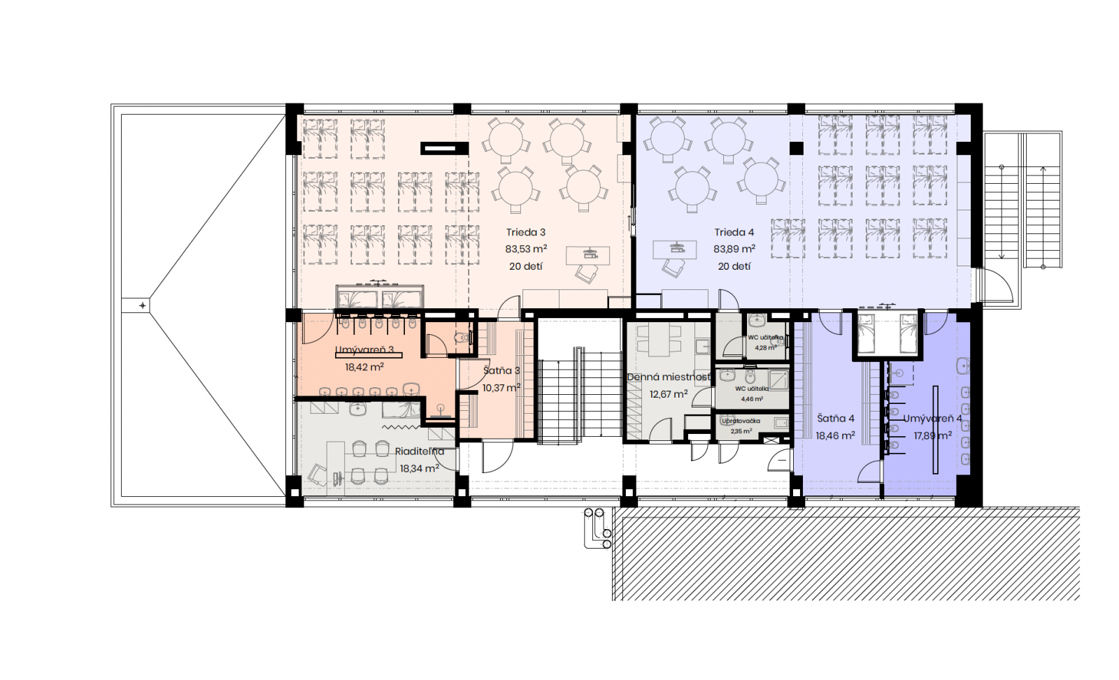
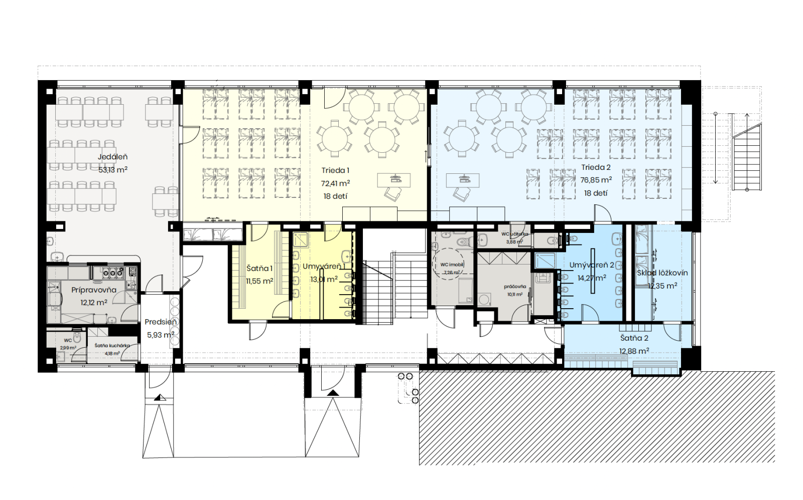
Zdroj: Google Maps, JFcon
Cesta k lepšej Bratislave jednoznačne začína už pri materských školách. Vysoký dopyt po nich je spôsobený demografiou a životným štýlom, teda snahou rodičov zabezpečiť predškolskú výchovu skôr a väčšiemu počtu detí. Navyše, od 1. septembra roku 2021 sa stalo predprimárne vzdelávanie povinným pre všetky deti od piatich rokov. Mestá a ich vedenia tak boli konfrontované s nutnosťou vytvorenia potrebných kapacít.
S nedostatkom miest vo vzdelávacích inštitúciách v súčasnosti bojujú mnohé mestá, Bratislavu a jej mestské časti nevynímajúc. Zlepšuje sa to len postupne a v rámci dostupných finančných možností. Pomoc pri riešení tohto problému aktuálne ohlásilo Ministerstvo školstva, vedy, výskumu a športu Slovenskej republiky, ktoré zrekonštruuje schátranú budovu v Petržalke na Černyševského ulici.
Objekt má ministerstvo vo vlastníctve od roku 2007. Do tohto obdobia ho využíval Štátny inštitút odborného vzdelávania. Jeden z traktov budovy, ktorý v minulosti prešiel rekonštrukciou, slúžil ako registratúrne stredisko a archív a v ďalšom sídlil do roku 2015 odbor kontroly ministerstva školstva. Budova je už dnes v zanedbanom stave a jej obnova sa stala nevyhnutnou.
Rekonštrukciu objektu, resp. vybudovanie škôlky, schválila Vláda Slovenskej republiky v lete tohto roka. Podľa tlačovej správy TASR tu rekonštrukciou vzniknú štyri triedy a celkovo 76 miest pre deti. Ministerstvo školstva údajne vníma potrebu rýchlej realizácie rozšírenia kapacít škôl: „Identifikovali sme v rámci svojej pôsobnosti tento objekt, pri ktorom predpokladáme rýchlu realizáciu rekonštrukcie, ktorou sa vytvoria nové kapacity.” Prevádzku škôlky plánuje ministerstvo spustiť v školskom roku 2023/2024. Ako sa však pripomína: „Zatiaľ nie je rozhodnuté, kto a za akých podmienok ju bude prevádzkovať."
Ministerstvo uvádza, že o rekonštrukciu sa postará spoločnosť Make Technology s.r.o. Podľa dostupnej zmluvy o dielo sa v budove zrekonštruuje vykurovanie, elektroinštalácia, vzduchotechnika či zdravotechnika a upraví sa aj vstup do budovy. Predmetom stavebných úprav je aj búranie priečok či dlažieb, vybudujú sa sadrokartónové inštalačné predsteny či sanitárne zariadenia a budova sa zateplí. Celkovo tak možno počítať s úplne novým vzhľadom interiéru, zvonka sa architektúra zachová v maximálnej miere. Projektantom je firma JFcon.
Podľa TASR je plánovaný rozpočet vo výške 1,3 milióna eur, ide o investíciu z Plánu obnovy a odolnosti SR. Práce by mali trvať 130 kalendárnych dní.
Jedna z mála úplne nových škôlok v Bratislave sa nachádza v projekte Bory. Autor: Adrian Gubčo / YIM.BA
V Bratislave sa v poslednom období rozbehli realizácie rekonštrukcií či rozšírení viacerých vzdelávacích inštitúcií. Pred kolaudáciou je ZŠ Plickova v Rači, ktorá sa po dokončení stane supermodernou školou s pokrokovými učebňami a špičkovou architektúrou od štúdia Pantograph. Táto mestská časť získa aj výnimočnú škôlku Tramín – drevostavbu, ktorá vznikne po dlhotrvajúcom odpore lokálnych NIMBYs. Bohužiaľ, v tomto prípade však nevynikla ojedinelosť projektu, ale prieťahy a kauzy medzi odporcami a mestskou časťou.
Nový vzhľad a zvýšenú funkčnosť nadobudne aj najväčšia škola v Karlovej Vsi – Základná škola Alexandra Dubčeka. Táto mestská časť nedávno komplexne zrekonštruovala aj materskú školu na Kolískovej ulici, ktorá technicky vydarenou obnovou citeľne ovplyvnila aj prostredie, v ktorom sa nachádza. Nové Mesto zas štartuje rozšírenie školy na Cádrovej ulici aj inde. Svoje projekty realizujú Staré Mesto, Ružinov, Lamač, Rusocve a ďalšie mestské časti.
Medzičasom, ako vyvolané investície realizujú nové priestory aj developeri. Ako prvé Bory, ale aj Nuppu, Ovocné Sady či Rínok Rača majú obsahovať materské školy či pobočky materských škôl. Samostatný objekt, kde má byť umiestnená materská škola, vznikol aj vo veľkom projekte Slnečnice, kde sa do budúcna sľubuje aj vznik celej spojenej školy (materská, základná i stredná škola).
Školy v Bratislave, ako i v celom kraji, sú vďaka zdrojom z Fondu obnovy a odolnosti či eurofondom aktuálne svedkom dosiaľ nevídaného objemu investícií a zvyšovania kapacít. Konečne prichádza iniciatíva aj zo strany štátu, ktorý zrekonštruuje nevyužívanú budovu v Petržalke na Černyševského ulici. Bratislave by rovnako pomohlo, ak by sa ministerstvo pustilo do výstavby (resp. pomohlo s výstavbou) úplne nových vzdelávacích inštitúcií.
Počnúc materskými školami a pokračujúc základnými či strednými - to všetko pomáha definovať kvalitu života v meste a jeho potenciál. Rozumné mestá kladú vysoký dôraz na rozvoj nových zariadení - a to aj na základe architektonických súťaží. V Bratislave zatiaľ k podobným inicatívam nedošlo a aj súkromé projekty majú zatiaľ len obmedzený rozsah. Kedy sa stanú úplne nové a moderné škôlky či školy bežnými, je zatiaľ vo hviezdach.
(TASR, YIM.BA)
Sledujte YIM.BA na Instagrame.
Sledujte YIM.BA na YouTube.























