Totálna reorganizácia aj nové eskalátory: ŽSR predstavili nové detaily rekonštrukcie Hlavnej stanice
Bratislavská Hlavná stanica je zastaraná a neposkytuje cestujúcim podmienky, očakávané od modernej železničnej stanice v 21. storočí. O nutnosti rekonštrukcie sa hovorí už dlhé roky, nedávno však začali Železnice Slovenskej republiky otvorene hovoriť o relatívne významnej investícii, možno až vo výške 20 miliónov eur. Teraz aj ukázali, čo všetko by sa za túto sumu mohlo zmeniť.
Zdroj: Železnice Slovenskej republiky, Nino Belovič / YIM.BA
Obstarávanie projektanta konečne začína
Hlavná stanica v Bratislave sa na svojom mieste nachádza od roku 1871. Z tohto obdobia pochádzajú najstaršie časti objektu, ktoré sú dodnes využívané. Neskôr prešla určitými prestavbami, rozšíreniami i rekonštrukciami, vďaka ktorým získala súčasnú podobu. Zatiaľ posledným prírastkom je tzv. Skleník z roku 1989, ktorý mal priniesť dočasné rozšírenie do momentu, kedy nebude vybudovaná úplne nová stanica o niekoľko stoviek metrov východnejšie.
Vývoj po roku 1989 však takúto možnosť vylúčil – masívne asanácie, ktoré by bolo potrebné realizovať, sa v dôsledku obnovenia súkromného vlastníctva ukázali ako pridrahé. Bratislave tak zostala súčasná stanica na existujúcom mieste. V priebehu rokov tu boli zrealizované len relatívne drobné investície. Jej stav tomu zodpovedá a dnes sa už stáva neúnosným – nielen z hľadiska štandardu, ale aj technických či legislatívnych nárokov.
Preto sa v posledných rokoch hovorí o rekonštrukcii stanice. Kým za bývalej vlády sa uvažovalo o generálnej rekonštrukcii s teoretickou možnosťou zániku historickej budovy, vybudovaním novej a prestavbe celého okolia po medzinárodnom súťažnom dialógu, súčasná vláda tento plán prehodnotila. Namiesto toho sa rozhodla pre obnovu za minimálne 20 miliónov. Zameraná bude priamo na budovu stanice, okolie sa nateraz meniť nemá.
V priebehu augusta tohto roka bol zverejnený zámer národného projektu Bratislava hlavná stanica – rekonštrukcia výpravnej budovy, projektová dokumentácia. Predmetom projektu bola projektová príprava vrátane súvisiacej inžinierskej činnosti pre rekonštrukciu výpravnej budovy železničnej stanice Bratislava hlavná stanica. Cena projekčných prác je s rezervou 2,9 miliónov eur.
Podľa vedenia ŽSR je dnes stanica „hanba Slovenska“. Preto má dôjsť k zásadnému zlepšeniu jej stavu a vytvoreniu dôstojnejšieho stavu. Podľa štátnej firmy sa majú vytvoriť priestory pre kvalitné komerčné prevádzky, ako aj atraktívne, prakticky a účelovo usporiadané priestory pre cestujúcich či logicky usporiadaná koncepčná prevádzka.
Skutočne detailný popis však prináša až aktuálne odhalenie súťažných podkladov v rámci čerstvo vyhláseného verejného obstarávania na zhotoviteľa projektovej dokumentácie. Nejde teda o architektonickú súťaž – rozhodovať nebude kvalita architektonického konceptu, ale cena projekčných prác. ŽSR navyše zverejnili aj vcelku konkrétnu predstavu toho, čo a ako sa má na stanici zmeniť.
Súčasná podoba stanice sa pravdepodobne výrazne zmení. Autor: Nino Belovič / YIM.BA
Stanica je v mimoriadne zlom stave
Ako vyplýva z podkladov, ŽSR si uvedomuje, že stav stanice ako celku je pomerne tristný. Stavbu Hlavnej stanice tvorí súbor štyroch stavieb, spojených do jednej. Ide o poštový trakt, stredný trakt, dopravný trakt a prístavbu s prepojom. Spoločne sú označované ako výpravná budova.
Poštový, stredný a dopravný trakt tvoria do veľkej miery historickú časť stanice. V poštovej časti s tromi nadzemnými a jedným podzemným podlažím sa nachádzajú najmä kancelárie a nájomné jednotky, ako aj kotolňa, historicky mimo budovu. Dopravný trakt je do istej miery podobný a slúži potrebám ŽSR, absentuje tu však výťah.
Stredný trakt je najrozsiahlejší, pričom má tri nadzemné podlažia a jedno podzemné. Slúži najmä ako priestor pre cestujúcich, pričom sa tu nachádza hlavná trasa na nástupištia a zároveň je prvým kontaktným bodom cestujúcich po príchode vlakom. Umiestnené sú tu rozličné priestory – pokladne, informačné centrum pre zákazníkov, nájomné jednotky pre verejnosť, úschovňa batožiny, prístup do podchodu, ako aj prezidentský salónik, určený pre rodiny s deťmi. V suteréne sú staršie toalety či technické zázemie.
Prístavba má dve nadzemné podlažia a jej hlavným účelom je vytvoriť rozptylový priestor pre návštevníkov a poskytovať služby cestujúcim. Prízemie slúži ako vstupná hala s pokladňami a obchodnými jednotkami orientovanými na fasádu budovy. Nachádza sa tu aj koridor, ktorý ústi do podchodu k električkám, pričom v jeho priestore sú umiestnené nájomné jednotky. Prvé poschodie je prepojené dvoma schodiskami, no nie je vybavené výťahom. Slúži ako čakáreň s nájomnými priestormi a toaletami.
Projektanta čaká náročná úloha, keďže bude musieť komplexne zanalyzovať stavbu nad rámec podkladov, a pripraviť nové riešenie. ŽSR si všíma, že stanice je dlhodobo sledovaná a kritizovaná verejnosťou, a to aj napriek viacerým prestavbám. Najvýraznejší prvok – prístavba – dnes už nespĺňa prevádzkové ani vizuálne nároky na kvalitné prostredie. Výpravná budova ako celok je navyše kapacitne nedostačujúca a sortiment služieb nedostačujúci – a to aj napriek existencii nevyužívaných priestorov. Sociálne vybavenie je v zlom stave, čiastočne dokonca nefunkčné.
Riešiť je tak potrebné tieto všeobecné nedostatky, ako aj určité konkrétne problémy. V strednom trakte napríklad chýba vodovodná prípojka, takmer úplne chýba kanalizácia, hydranty či rozvody vody do prevádzok, zastaraná je vzduchotechnika, vyskytujú sa tu holuby, zateká strecha a chýbajú výťah či eskalátory. V poštovom trakte je suterén v havarijnom stave a taktiež chýba prípojka, v dopravnom trakte sú v zúfalom stave sociálne zariadenia. Na stanici ako celku opadáva omietka, problematické je parkovanie vozidiel a zásobovanie alebo chýba odpadové hospodárstvo.
Pripravovaná rekonštrukcia tak bude skutočne rozsiahla, ak sa majú napraviť všetky tieto problémy. Zhotoviteľ projektovej dokumentácie má navyše pamätať na to, že hoci budova či budovy nie sú pamiatkovo chránené, sú súčasťou pamiatkovej zóny. Riešenia tak budú musieť byť konzultované aj s pamiatkarmi.
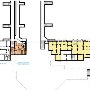
Najväčšie zmeny prebehnú na prízemí. Modrou sú priestory personálu, žltou obchodné jednotky. Zdroj: Železnice Slovenskej republiky
Ako zásahy sa majú zrealizovať
ŽSR v rámci svojich požiadaviek sumarizujú všeobecné úpravy aj detailné riešenia v rámci jednotlivých traktov. Z tých všeobecných možno menovať novú fasádu po konzultácii s pamiatkarmi (či to znamená aj obnovu výzdobných prvkov, známe však nie je), výmenu presklených častí, okien a dverí, nový spôsob otvárania dverí, komplexnú opravu povrchov stien, stropov či podláh, výmenu strešnej krytiny, preriešenie rozvodov vody, preriešenie navigačného systému alebo klimatizovanie celej stanice. Špecifickým prvkom je návrh klasických hodín na fasáde ako dominanty a symbolu stanice.
Prirodzene, riešiť sa majú prívody vody, ako aj kúrenie a chladenie systémom tepelných čerpadiel. Klimatizáciu treba riešiť centrálne, aby nedošlo k neestetickým riešeniam pre individuálnych nájomcov. ŽSR žiadajú uvažovať nad obnoviteľnými zdrojmi tepla. Skvalitniť treba vzduchotechniku, protipožiarnu bezpečnosť stavby a energetickú efektívnosť.
Čo sa týka jednotlivých traktov, veľkou zmenou prejde najmä prístavba. Železnice žiadajú výmenu fasádneho opláštenia vrátane dverí či strechy. Pokladne budú zrušené a nahradené zákazníckymi centrami jednotlivých dopravcov. Zrušené budú aj drobné prevádzky, pričom budú presunuté do stredného a poštového traktu. Vymeniť sa majú interiérové povrchy, v hale má pribudnúť aj výťah na druhé podlažie, kde budú obnovené toalety a pravdepodobne vznikne kaviareň v dotyku s čakárňou. Moderné prevádzky vzniknú pri prechode k električkám.
V strednom trakte budú najmä priestory pre cestujúcich a nájomné jednotky. Vymeniť sa majú podlahy, využiť aktuálne nevyužité priestory vrátane priestoru na druhom podlaží v stave hrubej stavby, kompletne sa má vymeniť strecha Prezidentského salóniku (samotný salónik sa vráti do pôvodného stavu), doplniť sa majú kamery, vymeniť orientačný systém, nahradiť okná a obnoviť šambrány, zvýšiť štandardy pre nájomné priestory či opraviť sociálne zariadenia pre personál.
Dôležité je, že projektant má preveriť možnosť umiestnenia eskalátorov smerom do a z podchodu (a to aj v poštovom trakte), vytvoriť prepojenie medzi stredným a poštovým traktom na úrovni prízemia, odstrániť reklamu, unifikovať obchodné prevádzky a koncepčne navrhnúť jednotlivé priestory. Veľkorozmerná freska od akademického maliara Františka Gajdoša (1960), nachádzajúca sa vo vestibule historickej prijímacej budovy, sa má zachovať, rovnako ako bronzová skulptúra okrídleného kolesa od Heleny Mandičovej-Šinályovej (1939) na streche objektu.
V poštovom trakte, ktorý slúži ako priestor Slovenskej pošty a Železničnej pošty, ako aj priestor pre výpravcov či Železničnú políciu, sa majú skvalitniť kancelárie, vybudovať komplexné šatne so zázemím či naprojektovať nové napojenia vody a kanalizácie. V budove je viacero nevyužitých priestorov, kam sa navrhujú premiestniť zamestnanci z iných objektov za účelom zvýšenia efektivity. Dopravný trakt prejde podobnou rekonštrukciou, obnoviť sa má vzduchotechnika, sociálne zariadenia či chladenie.
Železnice ešte plánujú vymeniť prestrešenie 1. nástupišťa, vymeniť orientačné piktogramy a vymeniť mobiliár. Koše majú byť na separovaný odpad. Spoločne s OLO má projektant preveriť možnosť umiestnenia podzemných kontajnerov. Stanica má dostať nové informačné tabule, ktoré sa bežne nachádzajú v moderných staniciach inde v Európe. Preveriť sa má aj umiestnenie eskalátorov z podchodu na jednotlivé nástupištia.
Vypracovanie projektovej dokumentácie by malo vyjsť na 2,755 milióna eur. Podľa vedenia ŽSR by mali projekčné práce prebiehať približne jeden rok, aby sa mohlo už ku koncu budúceho roka začať s prácami. Ich ukončenie sa predpokladá v roku 2028, pričom rekonštrukcia bude prebiehať za plného chodu železničnej stanice.
Zdroj: Železnice Slovenskej republiky
Dosiahne stanica európsky štandard?
Vyššie popísané práce a zásahy prinášajú prísľub skutočne výrazných zmien. Za predpokladu, že by víťazný projektant bol aj kvalitný architekt, prípadne mal takého v tíme, nemožno vylúčiť, že stanica získa omnoho kultivovanejší charakter. Nanešťastie, s ohľadom na spôsob výberu projektanta je pravdepodobnosť niečoho podobného otázna. Pri klasickej architektonickej súťaži by sa, naopak, dramaticky zvýšila.
V každom prípade, kombinácia dramatického zlepšenia organizácie priestoru, výmeny nájomných jednotiek a príchodu kvalitných nájomcov, zníženia bariérovosti stanice (zvlášť doplnením výťahov a eskalátorov) a obnovy sociálnych zariadení by mohla urobiť skutočné divy. Je škoda, že cestujúca verejnosť aj personál stanice museli čakať na veľkú rekonštrukciu desiatky rokov, keďže niektoré z týchto úprav sa mohli realizovať už dávno.
Otázkou v tomto momente zostáva, ako sa do tejto aktivity zapojí mesto. V minulosti malo veľký záujem na rekonštrukcii či prestavbe stanice, na základe čoho sa podieľalo na príprave súťažného dialógu a čiastočne obnovilo verejný priestor pred stanicou. Keďže sa zdá, že veľký projekt sa nateraz realizovať nebude, pristúpiť by mohlo k ďalším lokálnym úpravám – k výmene povrchov chodníkov, zlepšeniu mobiliáru, obnove zastávky električiek a podobne.
Aj napriek možnému zlepšeniu kultúry stanice ale netreba zabúdať, že stále ide len o náročnejší facelifting. Bratislava bohužiaľ nenasleduje príklad významných európskych veľkomiest s modernými či generálne obnovenými stanicami. Viedeň, Berlín, Brno, Praha, Rotterdam, Varšava Západná a mnohé ďalšie dokončené aj pripravované projekty zostávajú z nášho pohľadu nereálnym snom.
Slovenským cieľom je, aby cestujúci po príchode z Viedne nezažili šok a nedostali pocit, že prešli do zaostalejšej civilizácie. Teoreticky sa to dá dosiahnuť aj po dobre zrealizovanej rekonštrukcii komornejšieho charakteru. Železnice Slovenskej republiky takú ambíciu rozhodne majú, či sa to ale odzrkadlí aj vo výbere kvalitného projektanta, sa ešte len ukáže.
Sledujte YIM.BA na Instagrame.
Sledujte YIM.BA na YouTube.



























Komentáre