Z pustatiny nová štvrť. Severný okraj Lamača sa pripravuje na prestavbu
Staré záhrady na severnom okraji Lamača, neďaleko cesty do Záhorskej Bystrice a do Borov, získajú novú zástavbu. Urbanizáciou prejde územie, ktoré je momentálne zarastené náletovou zeleňou, nie je využívané a postráda akúkoľvek upravenosť. Tento fakt v budúcnosti zmení výstavba 18 rodinných domov, ktoré by mohli byť počiatkom rozsiahlejšieho zámeru.
Zdroj: Pokorny Architekti
Severný okraj Lamača je územím, ktoré nevyniká svojou atraktivitou. Zástavba sídliska je ukončená chátrajúcim objektom Obchodného domu Lamač a západne od Hodonínskej sa nachádza séria supermarketov a autosalónov. Pomerne rozsiahle plochy na východnej strane sú až na pár rodinných domov s firmami nezastavané. To vytvára priestor pre developerov túto lokalitu opäť priviesť k životu prostredníctvom novej zástavby.
Jedným z takých je spoločnosť Urbicom, a.s., ktorá tu plánuje výstavbu 18 rodinných domov v lokalite Staré záhrady. Developer sa podieľa aj na výstavbe Vydrice. V minulosti mal na tomto mieste omnoho rozsiahlejšie záujmy, ktoré sa nateraz obmedzili len na menšiu zástavbu. Projekt získal od Hlavného mesta súhlasné záväzné stanovisko k investičnej činnosti.
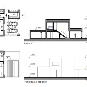
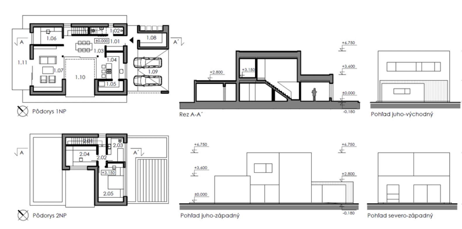
V záujme investora je vybudovať 18 rodinných domov, ktoré budú funkčne a hmotovo integrované v novovznikajúcom väčšom celku danej lokality. Pre každý rodinný dom je navrhovaný samostatný pozemok s výmerou od 481 do 896 metrov štvorcových. Navrhované sú tri typy rodinných domov A, B1 a B2. Všetky sú navrhnuté s jednou bytovou jednotkou, s jedným plnohodnotným nadzemným podlažím a jedným ustúpeným podlažím. Rodinné domy typu A sú navrhované v centrálnej časti záujmového územia a vybudujú sa o celkovom počte 4 objektov. Na ostatných plochách je navrhnutých 14 rodinných domov typu B1 a B2, z toho 8 typu B1 a 6 typu B2.
Rodinné domy typu A majú pôdorys písmena U s maximálnymi pôdorysnými rozmermi 13 x 9,6 metra. Na prvom nadzemnom podlaží sa nachádza vstup, technická miestnosť, kúpeľňa s toaletou, jedáleň, kuchyňa, obývacia izba a schodisko na druhé podlažie. Tam môžu záujemcovia nájsť dve miestnosti a kúpeľňu s toaletou.
Rodinný dom typu B1 má obdĺžnikový pôdorys o rozmeroch 11 x 10 metrov. Prvé nadzemné podlažie obsahuje vstup, toaletu, obývaciu izbu spojenú s kuchyňou, spálňu, šatník, kúpeľňu, jednu izbu a technickú miestnosť so schodiskom na druhé podlažie. V tejto časti je opäť situovaná izba a kupeľňa s toaletou.
Tretí typ rodinných domov obsahuje totožné pôdorysné ako aj funkčné využitie objektu s typom B1, dispozičné riešenie je však zrkadlovo otočené vzhľadom k vstupným dverám do objektu.
V dokumentácii je uvedené, že každý dom bude obsahovať tri parkovacie miesta. Domy sú zastrešené sústavou plochých striech s extenzívnou zeleňou. V rámci dopravného riešenia je navrhnutá rekonštrukcia časti cesty Na barine, výstavbu prístupovej cesty s chodníkmi pre peších a riešenie vjazdov a spevnených plôch rodinných domov. Cesta Na barine bude v oblasti riešenia vjazdu do územia rozšírená minimálne na päť metrov, vo zvyšnej časti na dĺžku riešeného územia je navrhovaná obnova asfaltobetónového krytu cesty. Z dôvodu prepojenia peších ťahov v území dôjde k prepojeniu na existujúci chodník na Bakošovej ulici.
Odlišnosti v domoch sa prejavujú najmä v detailoch dispozičného či architektonického riešenia. O ich podobu sa postaral architekt Pavol Pokorný z kancelárie Pokorny Architekti. Ateliér sa sústredí najmä na energeticky úspornú architektúru. Navrhovať domy v nízkoenergetickom a pasívnom štandarde sa Pokorný rozhodol od roku 2008 a svojsky jednoduchú, no solídnu architektúru tvorí dodnes. V realizácii má najmä viaceré rodinné domy na Slovensku, ale i v Rakúsku.
Zdroj: Pokorny Architekti
Hlavné mesto si v súhlasnom záväznom stanovisku uplatňuje niekoľko podmienok. Novonavrhnutá cesta musí byť po jej vybudovaní zaradená do siete mestských ciest ako miestna cesta III. triedy a to ešte pred kolaudáciou. Križovanie chodníkov a odbočení do zámeru (pozdĺž ulice Na barine) požaduje mesto riešiť na úrovni chodníkov s priebežnou konštrukciou chodníka. Investor je taktiež povinný realizovať aj spevnené povrchy ako povrchy priepustné pre zrážkovú vodu, umožňujúce prirodzené zadržiavanie vody v území. V pripomienkach je taktiež uvedené odporúčanie odvádzať zrážkovú vodu zo striech do retenčných nádrží či zvoliť svetlé materály a farby na fasádach objektov.
Nový development tak vznikne na území o celkovej výmere 12.939,81 metrov štvorcových. Súčasťou týchto pozemkov je aj ochranné pásmo biokoridoru Lamačského potoka, ktorý zámer pri návrhu plne rešpektuje.
V súčasnosti nejde o jediný projekt, ktorý doplní prostredie severného okraja Lamača. Už nejakú dobu tu prebieha výstavba bytového domu Element Lamač od spoločnosti Lamač Land s.r.o. Developer na východnej strane Hodonínskej pripravuje výstavbu už od začiatku minulého desaťročia. Medzičasom projekt získal prvé kladné záväzné stanovisko, no neskôr investor návrh upravil a v roku 2017 nadobudol development nové záväzné stanovisko. Stavebné práce sú už v plnom prúde a po dokončení tu vznikne desaťpodlažný bytový dom s 38 jedno- až trojizbovými bytmi a apartmánmi.
Pre túto lokalitu však pôjde nateraz o osamotený dom s charakterom výškového. S trochou nadsázky, podobne je na tom veža Première na Šancovej. Koniec Lamača má však výhodu v tom, že adekvátnejší kontext by ešte v okolí mohol vzniknúť. Aktuálny zámer ho nevytvorí, ale ostatné uvažované časti projektu, kde sa počíta aj s bytovkami od štyroch do siedmich podlaží, by mohli.
Severná časť Lamača tak bude v budúcnosti vyzerať inak. Mohlo by sa tu rozvinúť menšie sídlisko s bytovkami, doplnenými o zástavbu rodinných domov, o čo sa už snaží Urbicom. Projekt tejto spoločnosti bude mať nízkoenergetický charakter z pera architekta Pavla Pokorného. Ide v princípe o lepší typ zástavby, než aký zvolil Lamač Land pri svojom projekte vežového domu. Napokon tak nemusí vzniknúť bývanie uprostred ničoho, ale omnoho logickejšie pôsobiaca zóna, ktorá rozšíri inak príjemnú mestskú časť.
Sledujte YIM.BA na Instagrame.
Sledujte YIM.BA na YouTube.
























