Sky Park Offices privítal nového nájomníka. Inšpiratívny dizajn týchto kancelárií podporuje kreativitu aj well-being
Administratívna budova Sky Park Office už od roku 2020 ponúka kancelárske priestory v tom najvyššom štandarde. Najnovším nájomníkom v objekte sa stala projekčná firma Delta Group, ktorá si tu vytvorila nové sídlo, čím rozšírila svoje pôsobenie na slovenský trh. Nové kancelárie predstavujú elegantnú kombináciu efektívneho pracovného prostredia a vyváženého dizajnu. Ich podobu navrhol ateliér, ktorý bude zároveň aj ich hlavným užívateľom.
Autorka: Lenka Némethová
Okrem štvorice obytných veží, rozostavanej Sky Tower a zrekonštruovanej národnej kultúrnej pamiatky Jurkovičova Tepláreň sa v polyfunkčnom komplexe Sky Park nachádza tiež kancelárska budova Sky Park Offices. Jej súčasnú podobu navrhla nemecká architektonická spoločnosť Vietkze & Borstelmann Architekten.
Administratívna budova do bratislavského downtownu po svojom otvorení priniesla zhruba 31-tisíc metrov štvorcových kancelárskych priestorov. Ďalších 7-tisíc metrov štvorcových bolo vyhradených pre retail. Podľa Penta Real Estate „kancelárske priestory v najvyššom štandarde poskytujú funkčné pracovné prostredie v súlade s princípom well-being.“
Jedným z najnovších nájomníkov v budove Sky Park Offices sa stala projekčná firma Delta Group, ktorá má svoje pobočky v Rakúsku, Českej republike aj na Ukrajine. Vybudovaním nového sídla v bratislavskom komplexe Sky Park tak rozšírila svoje pôsobenie na slovenský trh.
Dizajn nových administratívnych priestorov spoločnosti navrhlo architektonické štúdio Delta Pods Architects. Novovznikajúci ateliér je zároveň súčasťou projekčnej firmy Delta, vďaka čomu sa architektky stali klientmi samy pre seba. Vo svojej práci podľa vlastných slov vyvíjajú koncepty, ktoré robia identitu klienta hmatateľnou a priestorovo vnímateľnou.
„V Delta Pods Architects veríme vo vytváranie priestorov, ktoré neslúžia len ako kancelárie, ale sú aj prostrediami, ktoré podporujú kreativitu a spoluprácu,“ začínajú opis projektu. „Náš najnovší interiérový dizajn pre našu kanceláriu DELTA v Bratislave stelesňuje túto filozofiu, kombinuje dynamické kontrasty s architektonickou súdržnosťou a vytvára harmonický celok v DELTA Group SK,“ dodávajú.
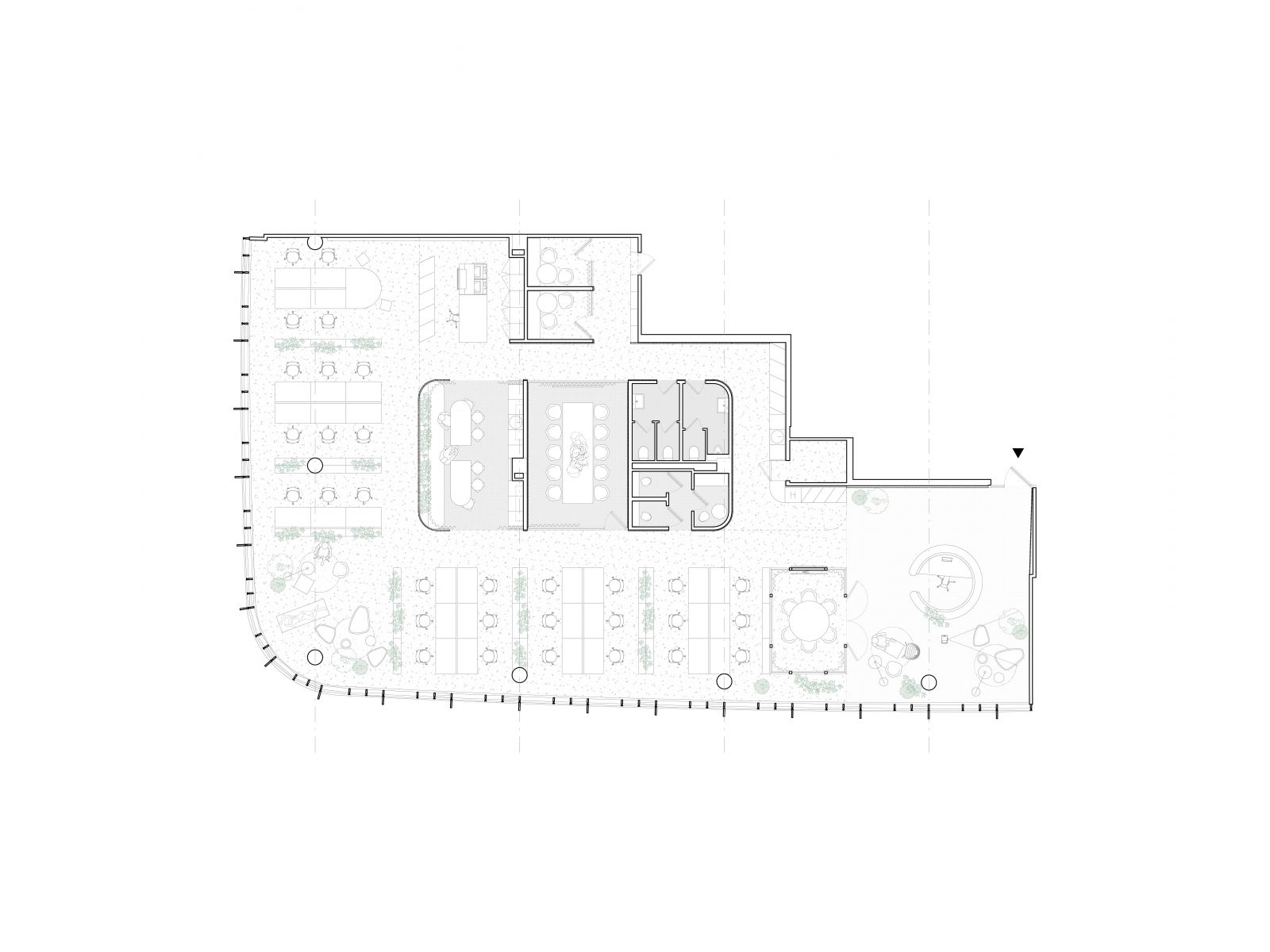
Celková podlažná plocha riešeného priestoru dosahuje 455 metrov štvorcových. Zamestnanci a klienti sa pri vstupe doň ocitnú v priestrannej vstupnej hale, ktorej kraľuje organicky tvarovaný recepčný pult, nad ktorým sa týči kruhové svietidlo rovnakého priemeru. Zvyšnú časť vstupnej haly tvorí viacero odpočinkových plôch s rôznymi typmi sedenia a výhľadom do okolia cez priestranné okná.
Za recepčným pultom sa nachádza jedna z konferenčných miestností, ktorej dominantou je okrúhly stôl. Konferenčná miestnosť bola navrhnutá ako samostatný box osadený v inak otvorenom kancelárskom priestore. Jeho drevenú konštrukciu dopĺňa bohaté presklenie a séria závesov, ktorých zatiahnutím zamestnanci získajú viac súkromia počas porád či stretnutí.
Ďalším samostatne fungujúcim priestorovým elementom je o čosi väčší box obložený čiernym frézovaným obkladom a niekoľkými dymovými zrkadlami. Jeho súčasťou sú toalety, spoločenská miestnosť a kuchynka. Značnú podlažnú plochu následne zaberá tzv. open space kancelária. V tomto prípade autorky návrhu vsadili na svetlé farby, dostatok úložných a pracovných priestorov a zeleň.
Hlavná pracovná zóna je približne v strede rozdelená rohovým oddychovým kútom s pohodlným sedením. V tejto časti nechýba ani hojdacia sieť. Poslednou zónou je časť vyhradená pre tlačiareň a vzorkovník. Tá je od zvyšku pracovných priestorov oddelená otvoreným úložným modulom, ktorý priestor vymedzuje a zároveň ho ponecháva dostatočne presvetlený.
Autorka: Lenka Némethová
Podľa slov autoriek návrhu je v interiéri badateľná inšpirácia okolitou krajinou a charakterom budovy. „Formy prebiehajúce v mäkkých líniách umožňujú plynulý pohyb priestorom. Oblé tvary, prírodné štruktúry a množstvo svetla a zelene vnútri aj vonku znižujú stres a podnecujú kognitívne funkcie,“ tvrdia.
Pri výbere materiálov bol kladený veľký dôraz na hmatovú kvalitu a udržateľnosť. Výber farieb vychádza z konceptu meniacej sa atmosféry a kontrastu. Ten má podľa slov architektiek umožniť bezproblémový prechod medzi intenzívnou prácou a uvoľnenými prestávkami. „Kancelária je rozdelená na oblasti, ktoré podporujú tímovú prácu prostredníctvom priestorov na spoluprácu, zatiaľ čo naše „čierne boxy“ s tlmenými farbami minimalizujú rušivé vplyvy,“ približujú autorky návrhu.
Nové administratívne priestory projekčnej spoločnosti Delta Group predstavujú vkusnú syntézu medzi efektívnym pracovným prostredím a vyváženým dizajnom. Zvolená paleta materiálov a farieb jasne delí priestor na funkčné zóny s odlišným charakterom a prispieva k jeho estetickej vyváženosti. Kombinácia rôznych materiálov zároveň slúži ako vzorkovňa pre architektonický ateliér Delta Pods Architects, ktorý priestory navrhol a bude tiež ich hlavným užívateľom. „Vzorkovňa tak nie je iba v časti ateliéru, stáva sa ňou celý office,“ ukončujú opis projektu architektky.
(Delta Pods Architects, YIM.BA)
Sledujte YIM.BA na Instagrame.
Sledujte YIM.BA na YouTube.


































