Poetické dielo uprostred slovenskej krajiny. Známi architekti navrhli dom v duchu tradičnej tvorby, výsledok je mimoriadny
V krajine zapustenej do mäkkých stredoslovenských kopcov sa zrodil moderný dom, ktorý nepopiera svoj pôvod, práve naopak. Inšpirovaný tradičnou architektúrou miestnych dedín, nadväzuje na lokálne stavebné zvyklosti a rešpektuje rytmus vidieckeho prostredia. Jeho podobu navrhlo známe bratislavské štúdio, čo sa odzrkadlilo na vysokej kvalite finálneho riešenia.
Autor: Tomáš Krištek
Tradičné slovenské domy – podlhovasté, orientované pozdĺž ulice, s jednoduchou sedlovou strechou a hospodárskym dvorom v zázemí – boli vždy viac ako len obytnými stavbami. Vytvárali prirodzený prechod medzi človekom a prírodou, medzi zástavbou a krajinným rámcom. Kombinovali viaceré funkcie a nadväzovali na prírodné danosti prostredia.
Dnešná architektúra, hoci pracuje s novými materiálmi a technologickými možnosťami, môže zachovať rovnaký cit pre miesto a kontext. Príkladom je rodinný dom v Dolnej Lehote. Stavba navrhnutá architektonickým štúdiom What Architects ukazuje, ako sa dá súčasný výraz spojiť s rešpektom k tradičnému tvarosloviu, proporciám a spôsobu osádzania stavieb do terénu.
Autori projektu si boli dobre vedomí, že vstupujú do vzácneho prostredia. „Podobu rodinného domu situovaného na úpätí Nízkych Tatier v historicky tradičnej stredoslovenskej dedine už od počiatku definovalo okolité prostredie a okolnosti jeho výstavby,“ približujú. V rámci obce Dolná Lehota sa objekt nachádza na jej úplnom konci, v lokalite, ktorú už niekoľko generácií obývajú príbuzní súčasných majiteľov.
Požiadavkou bolo vytvoriť kvalitné riešenie, no s odkazom na minulosť. „Silné väzby k hodnotám tohto horského prostredia spojené s pamäťou na niekdajšiu podobu pôvodných dreveníc sa premietli do architektúry stavby nielen v podobe archetypálnej hmoty so sedlovou strechou, ale aj do formy konštrukčného riešenia a urbanistickej kompozície,“ popisujú architekti.
Na riešenom pozemku bolo postupne vybudovaných päť objektov – rodinný dom, hospodársky objekt, dielňa, sklad a sauna. Na rozdiel od všeobecne rozšíreného prístupu v slovenských obciach na seba všetky spomenuté stavby nadväzujú svojím architektonickým výrazom a použitou paletou materiálov. K harmonickému zasadeniu stavby do prírodného prostredia prispieva tiež fakt, že riešený pozemok nebol ohradený žiadnym vysokým plotom.
Architekti navrhli podobu dvoch hlavných objektov – rodinného domu a hospodárskeho objektu. Oba sa vyznačujú jednoduchým obdĺžnikovým pôdorysom a sedlovou strechou. Z materiálového hľadiska je fasáda charakteristická použitím bielej hrubozrnej omietky, dreveným latovaním a plechovou strechou.
Vďaka osadeniu oboch stavieb na pozemku sa zároveň podarilo vytvoriť čiastočne uzavretý dvor, na ktorý následne nadväzujú menšie terasy, prislúchajúce k domu. „Takto zvolená kompozícia do budúcnosti navyše počíta s možným rozšírením zástavby o menšie objekty dočasného bývania, založené na rovnakých architektonicko-stavebných princípoch,“ ozrejmuje štúdio.
Princípmi tradičnej slovenskej architektúry sa autori projektu inšpirovali aj pri konštrukčnom a dispozičnom riešení oboch objektov. „Tak ako sa v pôvodných roľníckych dreveniciach vchádzalo do centrálnej siene / pitvora, na ktorú nadväzovala z jednej strany izba a z druhej komora, tak sú v tomto prípade analogicky vymedzené polia domu na centrálnu obytnú časť, spálňu s kúpeľňou a hospodársku časť v podobe kuchyne, špajze a vstupnej haly,“ vysvetľujú.
Autor: Tomáš Krištek
Do rodinného domu sa vchádza cez vstupnú halu s dostatkom úložných priestorov, doplnených o solitérne prvky v podobe dreveného vešiaka, lavice či veľkého zrkadla. Už tu možno vnímať paletu materiálov, ktorá sa následne tiahne celým objektom – svetlé drevo, biele omietky a jemné, no zároveň neutrálne akcenty.
Zo vstupnej haly sa obyvatelia domu dostanú do hlavnej dennej miestnosti, pozostávajúcej z otvorenej kuchyne a obývacej izby s jedálenským sedením. Ku kuchyni zároveň prislúcha menšia špajza, ako aj schody vedúce na horné podlažie. Súčasťou obývacej izby je svetlosivá sedačka, minimalistická čierna piecka a jedálenské sedenie pri okrúhlom stole.
Vďaka obojstranne orientovaným HST portálom do miestnosti vstupuje dostatok denného svetla. Zvolená paleta materiálov v spojitosti s výhľadmi do okolitej prírody následne prispieva k prepojeniu interiéru s okolitou prírodou. V dennej miestnosti sa jasnou dominantou stáva priznaný drevený krov. Zvyšnú časť prvého podlažia zaberá nočná zóna, pozostávajúca zo spálne, kúpeľne a menšej pracovne.
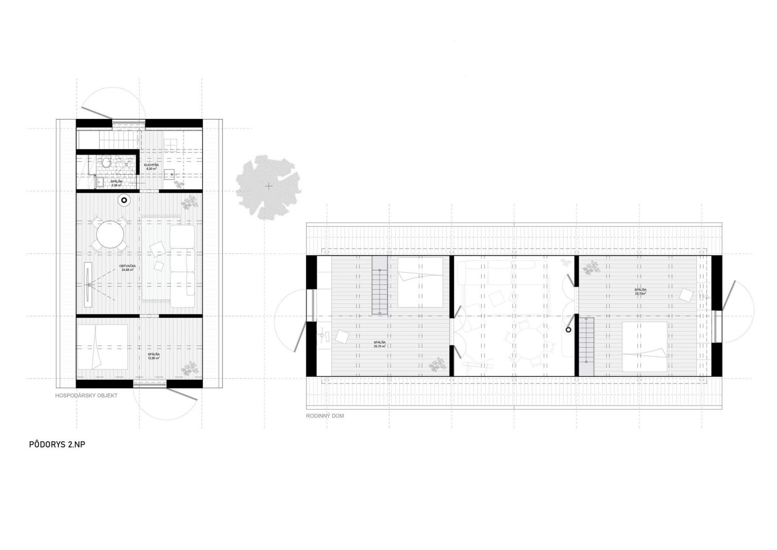
V hornej časti domu boli umiestnené dve spálne, ktoré okrem iného disponujú zaujímavým prvkom v podobe interiérového okna. Stredová časť rodinného domu totiž prechádza celou výškou objektu, vďaka čomu horné podlažie delí na dve samostatné bloky. Na kratších štítových stenách domu boli v oboch spálňach situované na mieru navrhnuté úložné priestory. Nechýba v nich ani priestranná posteľ či pracovný kút.
Hospodársky objekt vedľa rodinného domu plní na prízemí funkciu garážového státia, skladu a dielne. Druhé podlažie bolo navrhnuté ako plnohodnotný obytný priestor. Pozostáva z dennej miestnosti, kuchyne, menšej kúpeľne a jednej spálne.
Na podobe domu, ako aj na dĺžke výstavby sa podľa slov architektov odzrkadlila tiež svojpomocná realizácia stavieb. Tá zároveň podporila tézu, že odvolávanie sa na tradičné ľudové staviteľstvo v tomto prípade nebolo len formálnym gestom v podobe použitej materiálovej škály alebo architektonickej hmoty. „Cieľom architektúry domu bolo pretransformovať tradičné architektonické princípy do novej podoby tak, aby pri zachovaní jednoduchej stavby vznikol vzdušný a presvetlený priestor, reflektujúci potreby súčasného bývania s dôrazom na remeselný detail,“ uzatvárajú autori architektonického riešenia.
Výnimočnosť tohto projektu tkvie v schopnosti spojiť tradíciu s aktuálnymi potrebami – v návrhu, ktorý rešpektuje historický kontext stredoslovenskej dediny, no zároveň prináša riešenia, reflektujúce súčasný spôsob života. Citlivá práca s hmotou, proporciami, materiálmi a remeselným detailom ukazuje, že aj v súčasnej architektúre má tradícia svoje pevné miesto – nie ako nostalgický ornament, ale ako živý princíp, formujúci priestor pre každodennosť.
(What Architects, YIM.BA)
Sledujte YIM.BA na Instagrame.
Sledujte YIM.BA na YouTube.































