Supermoderné bývanie v klasickom paneláku. Totálna rekonštrukcia odhaľuje potenciál starších bytov
Aj v panelákovom byte môže vzniknúť kvalitné bývanie s osobitým štýlom. Potrebná je však spolupráca kvalitných architektov a otvoreného klienta, ktorý má odvahu pretvoriť uniformný interiér na niečo špeciálne. Výsledkom môže byť dizajnovo unikátna realizácia, ktorá dokazuje, že paneláky rozhodne ešte nie sú na odpis.
Autor: Filip Beránek
České štúdio RDTH bolo založené v roku 2017. Od tej doby majú pražskí architekti na svojom konte už niekoľko veľmi zaujímavých projektov. Ako sami opisujú, venujú sa predovšetkým súkromným projektom, a to od interiérov až po novostavby či rekonštrukcie. „Veríme, že úlohou architekta je zodpovedná kultivácia prostredia, vychádzajúca z analytického vnímania kontextu. Nechceme budovať bezduché stavby, ale vytvárať autentické miesta k životu,” tvrdia o svojej práci.
V portfóliu štúdia nájdeme predovšetkým projekty realizované v Prahe či Brne. Nájdu sa tam však aj diela zo Slovenska. Medzi najznámejšie z nich jednoznačne patrí projekt Nový dom so starým mlynom, ktorý sa nachádza v Opatovej v Trenčíne. Ide o rekonštrukciu a dostavbu, ktorá bola v roku 2022 nominovaná na cenu CE ZA AR 2022 v kategórii Rodinné domy.
Projekt sa vyznačoval mimoriadnou citlivosťou. „Výsledným riešením je usadlosť tvorená troma hmotami. Mlynom, ktorý čiastočne zachovávame, novostavbou rodinného domu, ktorá zaberá priestor pri potoku a zastrešením parkovacích státí, ktoré oba objekty spája. Medzi týmito troma hmotami vzniká príjemný, čiastočne uzavretý priestor záhrady a dvora,” približujú architekti.
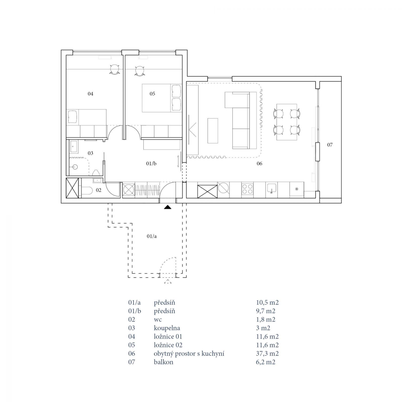
Medzi interiérmi vyniká projekt rekonštrukcie staršieho trojizbového (3+KK) panelákového bytu v Prahe. Jeho rozloha je približne 90 metrov štvorcových. Dôležitou súčasťou projektu je výrazná úprava dispozície, ktorej cieľom bolo vytvorenie otvorenejšieho a minimalistickejšie pôsobiaceho interiéru.
Architekti teda v úvode odstránili hneď niekoľko priečok. Vďaka tomuto kroku sa napríklad podarilo prepojiť predtým oddelenú kuchyňu s obývacou izbou, zracionalizovať priestor vstupnej haly a oboch izieb. Po novom má denná časť bytu rozlohu takmer 40 metrov štvorcových. Každá z izieb disponuje podlahovou plochou cca 11 metrov štvorcových. V rámci dispozície ostalo zachované tiež samostatné WC a kúpeľňa.
Veľmi zásadným parametrom boli jasné predstavy klientky od budúcej podoby bytu. „S pani H sme v prvých krokoch hľadali, kam až nás v rekonštrukcii pustí a aké sú hodnoty, ktoré by sa pri rekonštrukcii mali prejaviť. Jednoznačne to bol minimalizmus, až asketický prístup k životu, potreba zbaviť sa prvoplánových dekorácií i potreba vytvoriť príjemný interiér a nechať priestor iba racionálnym potrebám členov svojej rodiny,” vysvetľujú autori.
Výraznú časť priestoru po novom zaberá nábytok navrhnutý na mieru. Ten je v priestore rozvrhnutý tak, aby poskytoval dostatok úložného priestoru a zároveň ponechával značnú časť bytu otvorenú a ľahko priechodnú. V dennej časti lemuje jednu zo stien biela kuchynská linka, vo vstupnej hale zas úložné skrine pri vstupe.
Za zmienku tiež stojí pohyblivý záves, ktorý v prípade potreby oddeľuje obývaciu časť od kuchynskej. Práve tento krok umožnil využívanie sedacej súpravy ako hlavnej postele pre majiteľku bytu. Vďaka tomu môžu zvyšné dve izby plnohodnotne využívať jej dvaja synovia. V oboch detských izbách sa nachádza dostatočne dlhý pracovný stôl, úložné skrine a výsuvná a pohyblivá posteľ.
Z materiálov v interiéri prevažuje predovšetkým biela a sivá farba, ktorá je v menších detailoch doplnená o prírodné drevo a pár farebných akcentov. Pomerne netypický je aj výber podlahy, ktorá sa nesie v šedých tónoch. V kúpeľni a priestoroch WC zas prevažuje sýto modrá farba vďaka zvolenému maloformátovému obkladu. K vytvoreniu jedinečnej atmosféry rovnako prispievajú rôzne druhy LED osvetlenia.
Vo všeobecnosti racionalizácia dispozície priniesla komfortnejšie a moderné bývanie. Na pôvodný architektonický výraz bytu odkazuje hneď niekoľko detailov, ako sú zachované radiátory, trubkové rozvody či priznané detaily, ktoré vznikli po odstránení pôvodných priečok.
Mnohé funkčné riešenia, rovnako ako materiálové, vychádzajú zo špecifických požiadaviek majiteľky bytu. Práve tie dovolili vzniknúť jedinečnému interiéru, ktorý rozhodne nie je pre každého. Požiadavky klientky však jednoznačne naplnil, čo je v konečnom dôsledku najdôležitejšou výpoveďou práce architektov.
(eARCH, RDTH, CE ZA AR, YIM.BA)
Sledujte YIM.BA na Instagrame.
Sledujte YIM.BA na YouTube.




























