Štýlový byt pre osvieteného investora. Štandardnú dispozíciu nahradil veľkorysý priestor a kvalitné materiály
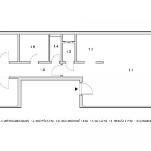
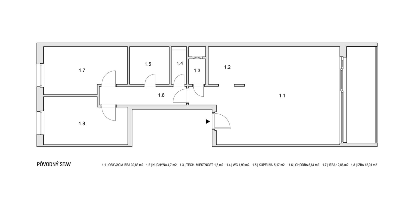
Z pôvodne trojizbového bytu sa po zmene dispozície stal dvojizbový s otvoreným pôdorysom. Nevšedné priestorové a materiálové riešenie robia z Bytu pod Kolibou unikátny interiér, plný prepracovaných detailov. Dispozičné zmeny pritom inicioval sám klient.
Zdroj: Ateliér Gresling
Bratislavský ateliér Gresling vznikol v roku 2016. Založili ho dvaja dlhoroční kamaráti Tomáš Brbúch a Martin Bujna. Od tej doby sa rozrástol o niekoľko členov a dnes patrí medzi známe slovenské architektonické firmy strednej mierky. Väčšina projektov, ktoré vznikli pod taktovkou ateliéru, sa sústreďuje na návrhy rodinných domov, bytových domov a interiérov.
Na svojom konte však architekti majú aj viaceré realizácie verejných priestorov. Z bratislavských projektov možno vyzdvihnúť napríklad nedávno otvorené kaderníctvo Curly Lab či interiér predajne s detským oblečením Littleone. Podľa ich návrhu vznikla aj kaviareň, ktorá sídli v jednej z budov komplexu Sky Park. Medzi najnovšie projekty štúdia patrí Byt Ľadová v Bratislave, ktorý je momentálne vo fáze realizácie. Ide o lukratívny byt určený na prenájom s podlažnou plochou 64 metrov štvorcových.
Ako opisuje Martin Bujna, výnimočnosť ich práce spočíva najmä v individuálnom prístupe ku každému projektu: „Vyhýbame sa anonymite a pri riešení každého zadania sa snažíme ísť do hĺbky v spoločnom dialógu s klientom. To je pravdepodobne jeden z dôvodov, prečo od nás klienti odchádzajú s úsmevom - pretože ich počúvame a už v úvodnej fáze korigujeme a spoluvytvárame zadanie. Takto sú naše projekty odpoveďou na konkrétnu situáciu, miestne pomery, svetové strany, avšak aj špecifické požiadavky klienta,” tvrdí.
Individuálny prístup sa prejavil aj pri návrhu a následnej realizácii interiéru Bytu pod Kolibou. Napriek tomu, že pôvodne trojizbový byt prešiel výraznou zmenou dispozície, nejedná sa o projekt rekonštrukcie staršej bytovej jednotky. Naopak, išlo o projekt interiéru, ktorý bol realizovaný tesne po odovzdaní novostavby. Byt bol v tom čase v stave holobytu.
Pre architektov išlo o netradičné zadanie. „Zriedkavo sa deje, že by sme dispozične menili trojizbový byt na dvojizbový. Navyše s požiadavkou otvorenej dispozície plynúceho priestoru od obývacej až po spaciu časť,” konštatujú. Podľa ich vlastných slov však táto zmena vychádzala z jasného zámeru klienta. „Požiadavkou bolo v prvom rade spojenie pôvodne dvoch spální do jednej väčšej priestrannej miestnosti so šatníkom. Následne sme tento princíp otvárania aplikovali aj na celý koncept bytu,” popisujú princíp úprav.
Aby tento zámer dosiahli, došlo ešte v úvodnej časti návrhu k odstráneniu takmer všetkých existujúcich priečok. Priestor bytu bol následne rozdelený na časť obslužných a úložných priestorov a obývaciu časť, ktorá plynule prechádza do spálne. V rámci dispozície je otvorený aj šatník v spálni. „Byt dostal týmto riešením novú kvalitu, kde je otvorený plynúci pôdorys obsadený jednotlivými funkčnými zónami, bez nutnosti ich delenia priečkami, či dverami,” vyzdvihuje hlavné kvality návrhu Martin Bujna.
Z materiálového hľadiska možno v interiéri Bytu pod Kolibou nájsť viaceré koncepčné riešenia. Hlavnou témou je takzvaný čierny box, v ktorom sú osadené obslužné funkcie ako kuchynská linka, hygienické zázemie či šatník. Tmavé materiály boli v tejto časti bytu použité na stenách, na nábytku aj v rámci výberu mobiliáru či spotrebičov. Tmavá je tiež liata podlaha, ktorá je na drevené parkety v zvyšnej časti bytu napojená bez akejkoľvek prechodovej lišty.
Ide o naozaj kvalitne zrealizovaný architektonický a minimalistký detail. Takých je v interiéri Bytu pod Kolibou hneď niekoľko. Za zmienku stojí aj napojenie kuchynskej dosky na zástenu. „Všimnite si, ako tie biele "žilky" kameňa na seba pekne nadväzujú od horizontálnej pracovnej dosky na vertikálnu plochu zásteny," vyzdvihuje Bujna ďalší zaujímavý detail.
„Naproti tomuto čiernemu boxu sú obytné funkcie (obývačka, spálňa), ktoré sú kontrastom k utilitárnemu boxu. Pre vizuálne vyjadrenie tejto myšlienky je tehlová stena prítomná na rovnakom mieste v obývačke aj v spálni, takže opäť akoby prechádza celým bytom. V strednej časti je tehlová stena predelená vloženým betónovým prvkom,” uzatvárajú architekti.
Tento jedinečný interiér ani zďaleka nevznikol len vďaka skvelej práci jeho autorov. Podľa Bujnu bola nesmierne dôležitá aj dôvera investora, ktorá sa pretavila do dobrej spolupráce, ktorá je v byte podporená kvalitnými materiálmi a ostatnými prvkami ako sú sanita, obklady a podobe. Výsledkom je mimoriadne štýlové bývanie veľkomestského charakteru.
(Ateliér Gresling, YIM.BA)
Sledujte YIM.BA na Instagrame.
Sledujte YIM.BA na YouTube.





























