Totálna zmena: Kreatívni architekti premenili malý byt na veľký
Kreatívni architekti dokážu urobiť aj malý priestor omnoho funkčnejším. Vďaka premysleným zmenám dispozície sa tak z pôvodne dvojizbového bytu môže sa stať trojizbový. Keď sa sa navyše nové riešenie spojí s kvalitným vybavením či dizajnom, výsledkom je výborná investícia a omnoho lepšie podmienky pre bývanie.
Zdroj: PORA design
Košické interiérové štúdio PORA má jasne rozpoznateľný a čitateľný rukopis. Vo svojich návrhoch sa dizajnéri neboja experimentovať s netradičnými materiálmi a farbami. Výsledkom sú jedinečné interiéry rezidenčných aj verejných priestorov. „U nás veríme, že priestor má moc transformovať životy. Sme tu, aby sme pomohli vytvoriť krásny, funkčný a inšpirujúci interiér, ktorý odráža osobnosť a túžby jeho budúcich užívateľov,” tvrdia architekti v rámci svojej oficiálnej prezentácie.
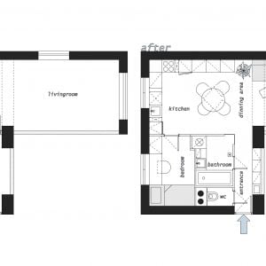
Medzi najnovšie projekty realizované pod taktovkou interiérového štúdia PORA patrí rezidenčný projekt Immersive. Ide o rekonštrukciu menšieho dvojizbového bytu o výmere necelých 55 metrov štvorcových. V rámci projektu bolo pôvodná dispozícia takmer kompletne zmenená, čo vo výsledku skvalitnilo celkové využívanie vnútorných priestorov.
Predtým oddelená kuchyňa sa po novom stala spolu s jedálenským sedením súčasťou obývacej izby. Pôvodne dvojizbový byt sa navyše vďaka reorganizácii dispozičného riešenia zmenil na trojizbový. Zväčšená bola aj kúpeľňa, a to vďaka odstráneniu zbytočne dlhej chodby vedúcej od vstupnej haly.
Od začiatku bol projekt vnímaný ako investičný. Aj napriek tomu sa celý byt zariaďoval v nadštandarde, o čom svedčia použité materiály a rozsah nábytku, navrhovaného na mieru. „Projekt vychádzal z podnetu pre vytvorenie esteticky a funkčne prívetivého, avšak ľahko likvidného aktíva na hektickom trhu s nehnuteľnosťami. To sa nám vo výsledku podarilo, nakoľko si našiel nového majiteľa po prvej úspešnej obhliadke. To nám dalo satisfakciu v tom, že návrhy od nás majú vysokú pridanú hodnotu pre spotrebiteľa, čo nás poháňa vpred,” opisuje Tomáš Potočiar, zakladateľ a CEO interiérového štúdia PORA.
Jedinečnú atmosféru bytu sa podarilo vytvoriť aj vďaka pomerne rozsiahlemu využitiu ambientného podsvietenia. „V rámci návrhu osvetlenia sme využili ambientné prvky netradične navrhnuté s ohľadom na ich jednoduchú údržbu, a to ich umiestnením na zem s možnosťou zmeny náklonu uhla svietenia," popisujú dizajnéri. Okrem toho sú súčasťou interiéru aj autorské obrazy. Tie sa v priestoroch trojizbového bytu stali jasnými farebnými akcentmi. Zvyšné solitéry, rovnako ako nábytok na mieru, boli zvolené skôr v zemitých a neutrálnych farbách, čo podľa slov autorov návrhu prispelo k modernému a nadčasovému dizajnu.
Výrazným interiérovým prvkom je úložná skriňa, ktorá bola navrhnutá s ohľadom na maximalizovanie priestoru a s cieľom zarovnať všetky členitosti priestoru tak, aby vznikol jeden kompaktný úložný priestor. Ten od vstupnej haly plynulo pokračuje až k jednej zo spální.
Súčasťou premyslenej koncepcie bola práca so zrkadlovými plochami. Tie poslúžili predovšetkým k optickému zväčšeniu celého interiéru. Jedným z najvýraznejších prvkov je gradientné rohové presklenie, ponúkajúce zaujímavý priehľad do kúpeľňovej časti. „Z časti presklenia, na ktorý bola použitá gradientná fólia z rôznych tepelných spektier, vnášame do priestoru kúpelne prirodzené svetlo a príjemnú teplotu farby bez nutnosti používania umelého osvetlenia," približuje Tomáš Potočiar.
Zrkadlová plocha je tiež súčasťou samostatne fungujúcej toalety. Aj tu sa dizajnérom podarilo dostať farebný akcent, a to vďaka úplne jednoduchému triku natretia existujúceho potrubia na žlto.
„Snaha o tvorbu atraktívneho, avšak cenovo dostupného riešenia, sa v tomto projekte naplnila. Odvážny experiment s gradientom v podobe presklenia a otvorenia tak štandardne zatvoreného priestoru kúpeľne do dennej zóny malo úspech. Práve odvaha a cool riešenia sú to, čo by malo aj do budúcna dizajn od PORA rázne charakterizovať,” uzatvára Potočiar.
(PORA design, YIM.BA)
Sledujte YIM.BA na Instagrame.
Sledujte YIM.BA na YouTube.

























