Nielen kvantita, ale aj kvalita. Ako vyzerá materská škola, ktorá myslí na deti i na prostredie
Materské i základné školy v mnohých mestách alebo na predmestiach dlhodobo bojujú s vysokým počtom záujemcov a nízkym počtom voľných miest. Okrem toho sa rokmi menia nároky na kvalitné vzdelávanie aj prostredie, v ktorom prebieha. Na hlavných investorov, teda samosprávy, to kladie vysoký tlak na zabezpečenie nových priestorov na požadovanej úrovni. O to významnejšie sú vydarené projekty, navrhované aj pri relatívne malom rozpočte.
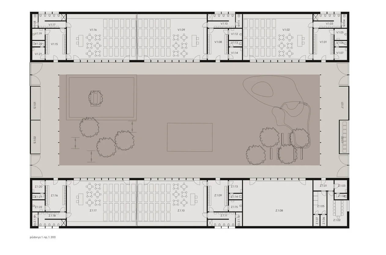
Zdroj: Refuel
Kvalitné vzdelávanie je jedným z hlavných pilierov každej vyspelej spoločnosti. Posledné roky sa však rovnako ako o potrebnej modernizácii vyučovacích procesov hovorí aj o vplyve prostredia na schopnosť žiakov sústrediť sa či aktívne sa zapájať do vyučovania. Mnohé slovenské mestá vrátane Bratislavy preto naskočili na trend rekonštrukcie škôl aj predškolských zariadení.
Niektoré z nich sa rekonštruujú len vzhľadom na ich zlý stav či so zámerom znížiť energetickú náročnosť jednotlivých objektov. Zároveň sa čoraz častejšie objavujú správy o budovaní úplne nových vzdelávacích zariadení či komplexov, ktoré si kladú za cieľ viac ako len zvýšenie kapacít. Detí je však veľa a miest málo. Neprijatie dieťaťa do materskej školy je pre rodičov bežná prax, čo sa samosprávy snažia riešiť všetkými možnými spôsobmi.
Obdobnú situáciu zažíva aj obec Želešice, ktorá sa nachádza neďaleko Brna. Práve vďaka svojej polohe obec dlhodobo bojuje s nízkymi kapacitami základnej aj materskej školy. Obe dnes totiž sídlia v jednej budove a ani tá už neposkytuje dostatočné zázemie pre žiakov. Samospráva teda vyhlásila súťaž na stavbu objektu, ktorý by mal priniesť priestory pre výučbu 120 detí, rozdelených do 5 tried. Predpokladaný rozpočet na výstavbu je 60 miliónov korún (2,37 miliónov eur).
Novostavba materskej školy by mala zodpovedať súčasným trendom v predškolskom vzdelávaní, v tvorbe súčasnej architektúry, ekonomickosti výstavby i následnej úspornej prevádzky budovy. Zároveň by stavba mala poskytovať deťom dostatok priestoru na pohybové aktivity, podporiť kreativitu a kooperáciu, pomôcť rozvíjať samostatnosť a osobnosť každého dieťaťa.
Do súťaže sa zapojilo celkovo 36 autorských kolektívov. Za víťazný napokon odborná porota označila návrh od štúdia Refuel. Víťazný koncept pozostáva z dvoch hlavných objektov, navzájom prepojených vnútorným dvorom. Tvar navrhovaných objektov vychádza z tradičnej českej architektúry, pre ktorú sú typické sedlové strechy, líniové tvary a drevené krovy. Súčasťou týchto dvoch objektov je celkovo päť tried, pričom každá z nich slúži ako herňa, jedáleň aj spálňa a každá má tiež samostatnú šatňu aj hygienické zázemie.
Dôležitou súčasťou návrhu bolo aj posilnenie vzťahu interiér-exteriér, čo sa podarilo najmä vďaka orientácii jednotlivých učební priamo do školského dvora. V čase pekného počasia je dokonca možné časť presklenej fasády naplno otvoriť, a tým priamo prepojiť vnútorné a vonkajšie priestory do jedného celku. Samotná záhrada je rozdelená na päť častí, každá z nich je inšpirovaná iným prírodným prostredím - hory, les, lúka, púšť a džungľa. Dvor však nemá slúžiť len žiakom materskej školy. Mimo vyučovania môže byť tento exteriérový priestor využívaný na organizáciu rôznych komunitných aj kultúrnych akcií.
Projekt bol navyše navrhnutý aj s ohľadom na životné prostredie. Objekt materskej školy bude využívať zozbieranú dažďovú vodu na polievanie záhrady aj na napájanie vodných hracích prvkov. Na strechách budov budú navyše umiestnené fotovoltické panely.
Odborná porota v hodnotení vyzdvihla najmä previazanosť dvora s vnútornými priestormi škôlky a možnosť jeho univerzálneho využívania. Celé usporiadanie podľa poroty nabáda k modernému prístupu k vzdelávacej inštitúcii, kde deti trávia veľa času vonku. Nevšednosť projektu navyše spočíva aj v jeho dispozícii, v rámci ktorej v jednotlivých objektoch nenájdeme žiadne vnútorné chodby, čo umožňuje plnohodnotné využitie vnútorných priestorov na výučbu a hru.
Jednoduchý tvar objektov a ich premyslené dispozičné riešenie si kládlo za cieľ minimalizovať potrebné investície a zefektívniť fungovanie v rámci materskej školy. Vo výsledku sa tak autorom víťazného návrhu podarilo vytvoriť nevšednú, no zato nadčasovú vzdelávaciu inštitúciu. Projekt tak môže byť príkladom nielen pre obce, ale pre niektoré menšie mestské časti, ktoré sa potrebujú popasovať s nedostatočnou kapacitou školských alebo predškolských zariadení.
(ČKA, YIM.BA)
Sledujte YIM.BA na Instagrame.
Sledujte YIM.BA na YouTube.























