Nekončený príbeh sa končí: V Rači vznikne nová cesta, odomyká dvere pre development
Nekonečné trvanie prípravy a realizácie viacerých projektov je pre Bratislavu a jej mestské časti typické. Jedným z takých je aj naplánované predĺženie komunikácie Malokrasňanská v Rači, ktoré sa tiahne už 10 rokov. Ako sa v súčasnosti zdá, predĺženie cesty sa po dlhoročných ťahaniciach konečne spustilo. Spojené je s prípravou veľkého investičného projektu.
Zdroj: Michal Drotován - starosta mestskej časti Bratislava - Rača, Grunt / EIA
Rača bola do roku 1946 samostatnou obcou. Hoci je dnes pridružená k rozvíjajúcej sa metropole, udržuje si silnú identitu a z pohľadu mnohých obyvateľov Bratislavy je obľúbeným miestom pre život. Aj preto ju stavebný rozmach ani zďaleka neobchádza a vznikajú tu nové obytné súbory či polyfunkčné objekty.
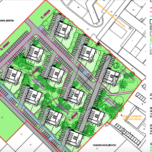
Patrí k nim aj obytný súbor Malé Krasňany, nová centrála Unimed Pharma alebo pripravovaný komplex Dolný Slanec. Všetky developmenty majú spoločný jeden znak – komunikáciu Malokrasňanská. Cesta spája Horskú ulicu s Račianskou ulicou a jej predĺženie je v pláne už desaťročie. Tento zámer sa však priblížil k realizácii až teraz po zdĺhavom povoľovaní a naťahovaní už od roku 2013. Starosta mestskej časti Rača Michal Drotován sa prípadu predĺženia tejto komunikácie venoval na svojej webovej stránke.
Ako uvádza, pred desiatimi rokmi bol predložený zámer projektu Pod vinohradom na posudzovanie vplyvov na životné prostredie (EIA). Neskôr sa však upravil na Malé Krasňany, pod ktorým je development od firmy Lucron známy dodnes. Išlo o územie, ktoré malo byť v minulosti vyčlenené ako územná rezerva na rozšírenie výroby AB kozmetiky. V roku 2011 sa však tento zámer zmenil na výstavbu bytových domov (v rámci Zmien a Doplnov Územného plánu 02). V oboch zámeroch sa rátalo s územnou rezervou pre komunikáciu.
O rok neskôr získala mestská časť od vlastníka Miroslava Konôpku parcelu, kde sa aktuálne nachádza meracia stanička. Zvyšné parcely pod cestou však odkúpila spoločnosť Grunt. Cieľom malo byť prepojenie komunikácie na Horskú ulicu. V roku 2016 bol predložený zámer Dolný Slanec a začalo sa posudzovanie EIA. V tomto prípade ale bolo jasne zdôraznené, že zámer nemôže byť dopravne napojený na Račiansku cez Peknú cestu pre nedostatočnú kapacitu Peknej cesty.
Dôležité rozuzlenie prišlo v roku 2018, kedy bolo vydané územné rozhodnutie, umiestňujúce zámer bytových domov Dolný Slanec a tiež predmetnú komunikáciu. V tejto fáze sa ešte počítalo s predprípravou na napojenie dvojprúdovej komunikácie medzi bytovým domom Malokrasňanská 12 a vinicami. Následne boli podané odvolania, ktoré Okresný úrad zamietol a územné rozhodnutie pre Dolný Slanec vrátane prístupových komunikácií nadobudlo právoplatnosť. Súhlasné stanovisko k následnému stavebnému konaniu vydal aj Magistrát hlavného mesta – stavebníkom samotnej komunikácie predĺženia Malokrasňanskej sa však malo stať Hlavné mesto.
Voči projektu Dolný Slanec bojovali ešte viaceré subjekty, prirodzene tak stálo aj predĺženie komunikácie Malokrasňanská. Avšak v roku 2020 už stavebný úrad mestskej časti Bratislava-Rača musel pokračovať v stavebnom konaní. Rača vydala stavebné povolenia na infraštruktúru, vrátane objektov daného predĺženia komunikácie Malokrasňanská, v prvých mesiacoch roka 2022.
Zdroj: Michal Drotován - starosta mestskej časti Bratislava - Rača
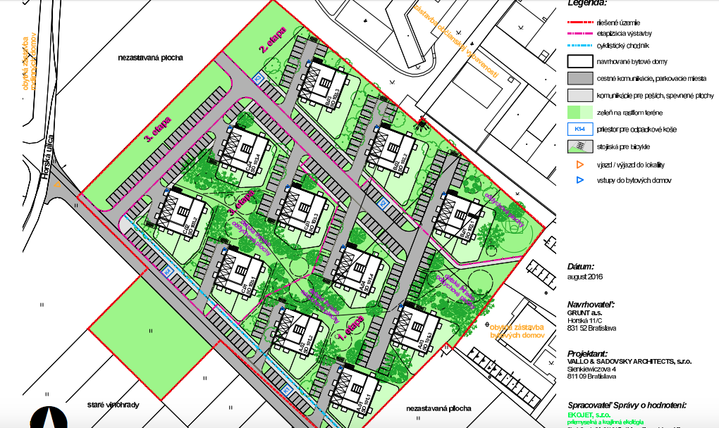
Ako informoval Michal Drotován, aktuálne prebiehajú stavebné práce na predĺžení komunikácie Malokrasňanská. Stavebníkom je Hlavné mesto SR Bratislava a investorom Grunt, a.s. Oproti územnému rozhodnutiu z roku 2018 sa však podarilo zaviesť niekoľko zmien. „Nie je tam už dvojprúdová križovatka so súčasnou vinohradníckou cestou "Kivikko-Nový Záhon", táto cesta zostane prioritne pre peších a cyklistov (pre predstavu, pôvodne mal byť oblúk križovatky až v polohe modrej meracej staničky),” informuje starosta. Rovnako je v mieste komunikácie, medzi ihriskom a chodníkom, doplnený ochranný plot so vstupnou bránkou. Drotován však avizuje aj ďalšie zlepšenia: „Priechod pre chodcov Malokrasňanská bude vyvýšený a bezpečnejší, v hornej polovici komunikácie bude doplnené aj stromoradie.”
Či daná komunikácia pomôže znížiť počet áut na Peknej ceste, sa podľa starostu dá polemizovať. „Nie som vôbec nadšený s výstavbou objektov Dolný Slanec, na druhej strane menšie plus je, že v dobe ich kolaudácie bude už dostatok miest v škôlkach a školách v Rači a poplatok za rozvoj nám pomôže spolufinancovať škôlku Kadnárova,” poznamenal Michal Drotován v stanovisku.
Trvalo celé desaťročie, kým došlo na začatie realizácie predĺženia jednej komunikácie. Aj napriek odporu sa tým otvára cesta pre výstavbu projektu Dolný Slanec. Časť miestnej komunity je z toho očividne sklamaná a podľa všetkého jej ostáva len konštatovanie starostu z minulosti: „Niekedy sa vojna so silnejšími súpermi vyhrať nedá.” Potešujúce je, že sa podarili viaceré kompromisy a komunikácia je oproti pôvodnému zámeru upravená.
Podobných problematických projektov, kde sa roky čaká na riešenie, je v Bratislave enormné množstvo. Nejasnosti v Územnom pláne, zdĺhavé konania, obštrukcie, petície, nevyrovnané majetkové a právne vzťahy, snaha o obchádzanie zákonov, nedostatok prostriedkov a mnohé ďalšie faktory ovplyvňujú výstavbu a s ňou aj rozvoj mesta či zvyšovanie kvality života. Len sotva sa dá ukázať na jediného vinníka. Existujú však možnosti, ako situáciu zlepšovať - najmä v podobe tvorby zrozumiteľnej a v maximálnej miere jednoduchej legislatívy, ktorá eliminuje aspoň časť zbytočných procesov.
Dôsledkom môže byť dynamickejší rozvoj - a s ním aj rýchlejšie zlepšovanie úrovne života obyvateľov a obyvateliek Bratislavy.
(Facebook, YIM.BA)
Sledujte YIM.BA na Instagrame.
Sledujte YIM.BA na YouTube.

























