Od priemeru k výnimočnosti. Z bežného trojizbáku sa stal luxusný byt pre veľkú rodinu
Každý meter štvorcový sa počíta – najmä v mestských bytoch, kde je priestor vzácny a potreby obyvateľov čoraz náročnejšie. Premyslené dispozičné riešenie, multifunkčný nábytok a cit pre detail môžu z priemerne pôsobiaceho bytu vytvoriť komfortný a vizuálne príťažlivý domov. Dôkazom je projekt Víc, než se zdá od štúdia No architects.
Zdroj: Studio Flusser
Štúdio No architects založili pred niekoľkými rokmi Daniela Baráčková a Jakub Filip Novák. Od tej doby v portfóliu štúdia postupne pribudlo viacero unikátnych projektov – od návrhov rezidenčných objektov, cez stavby občianskej vybavenosti, až po interiéry rôznych funkčných náplní. Na svojom konte majú tiež viacero ocenení či nominácií v lokálnych aj nadnárodných súťažiach.
Medzi ich novšie projekty patrí napríklad priestor ATLAS, ktorý je súčasťou Národnej galérie v Prahe, či súkromný interiér s názvom Víc, než se zdá, v rámci ktorého architekti premenili klasický mestský byt na atypický a plne využívaný obytný priestor. Na ploche 82 metrov štvorcových sa im podarilo vytvoriť unikátne bývanie, ktoré kombinuje premyslenú zmenu dispozície, kvalitné materiály aj zaujímavé detaily.
„Čo keby sme nad všetkými časťami bývania premýšľali ako nad rovnocennými priestormi? Čo keby sme potrebné prevádzky organicky prepojili aj za cenu atypických situácií?“ Tieto otázky si architekti kládli ešte pred začatím projektu. „Vzali sme priemerný byt a zamerali sa na maximalizáciu jeho obytného potenciálu. A vzniklo toho viac, než sa zdá na prvý pohľad,“ naznačujú.
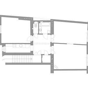
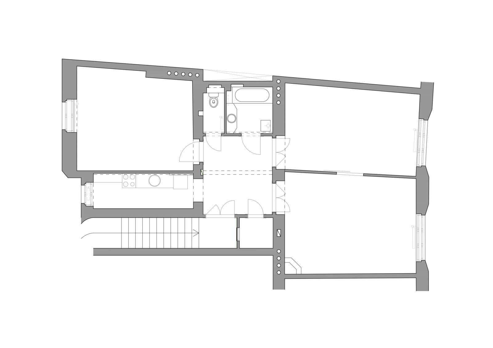
Pražský byt sa vo svojej pôvodnej podobe členil na centrálnu vstupnú halu, tri plnohodnotné obytné miestnosti, samostatnú kuchyňu a hygienické jadro, pozostávajúce z kúpeľne a samostatnej toalety. Nechýbal ani menší kumbál, prístupný zo vstupnej haly. „Izby buď príliš veľké, alebo zas príliš malé. A pritom ich nebolo toľko, koľko sme potrebovali pre uspokojenie potrieb nových obyvateľov, mladej rodiny s deťmi,“ opisujú architekti.
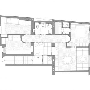
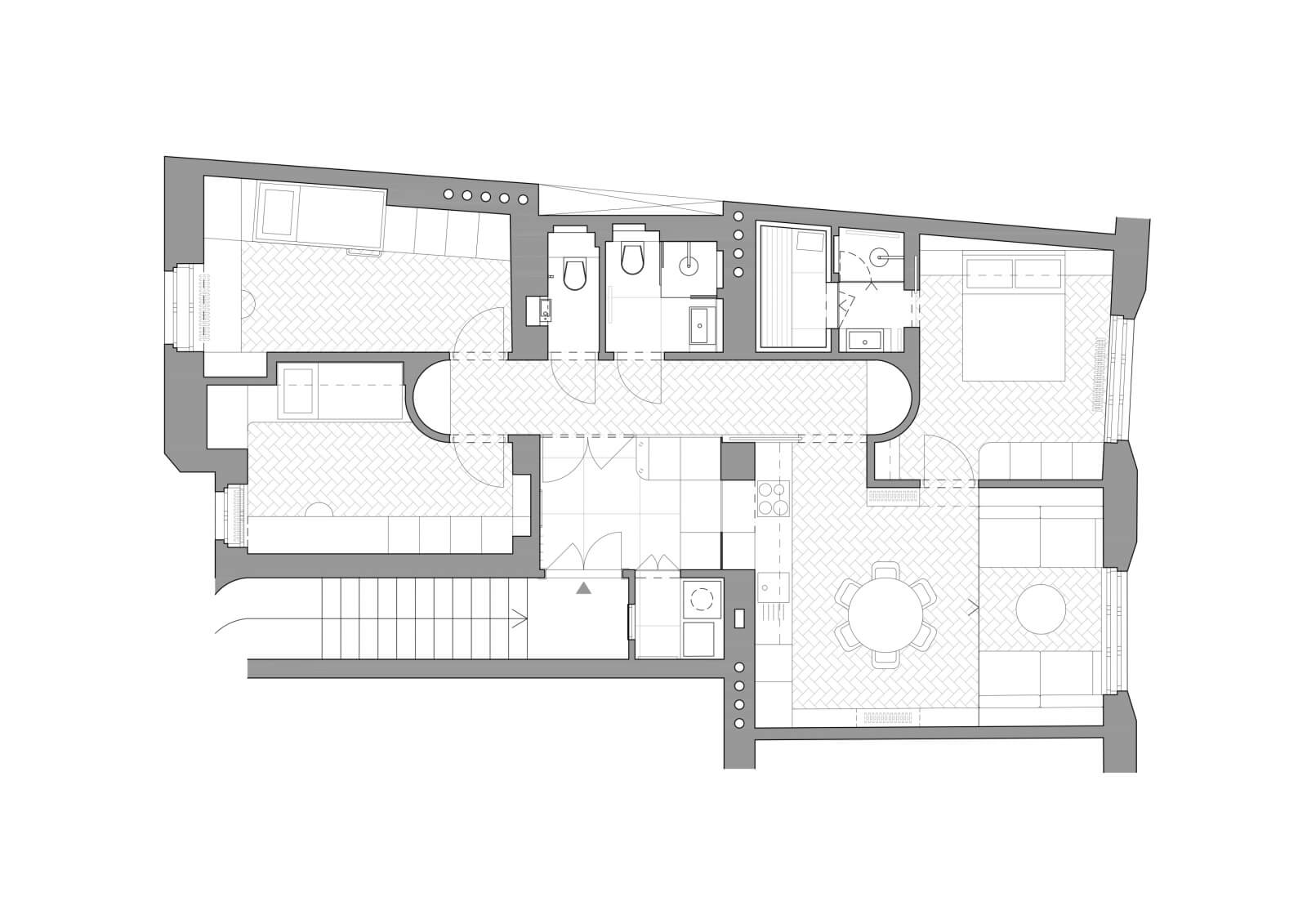
Nová dispozícia zmenila celkový priestorový koncept bytu, pričom dovolila vzniknúť dvom detským izbám, jednej spálni so samostatnou kúpeľňou a saunou a dennej miestnosti. Zachované ostalo tiež pôvodné hygienické jadro a kumbál.
Do bytu sa vstupuje cez vstupnú halu, ktorá po novom získala nové úložné priestory aj priame prepojenie s novovzniknutou kuchyňou cez integrované interiérové okno. Sklenenými dverami sa pokračuje do úzkej chodby, pre ktorú sú typické oblé rohy. Táto miestnosť v sebe zahŕňa vstupy do všetkých miestností bytu okrem hlavnej spálne a k nej prislúchajúcej kúpeľni.
Finálne riešenie vstupných priestorov dovolilo vzniknúť dostatočnému množstvu úložných priestorov, ako aj viacerým oddychovým zónam. Podarilo sa ti aj pri zachovaní dostatočného presvetlenia miestností a optického odľahčenia interiéru.
Denná miestnosť sa funkčne delí na kuchyňu s jedálenským sedením pre osem osôb a plnohodnotnú obývaciu zónu, umiestnenú na mierne vyvýšenom pódiu. Dve rozťahovacie pohovky tu dopĺňa rozsiahla knižnica navrhnutá na mieru, ktorá sa tiahne po oboch stranách miestnosti.
Z farieb a materiálov v tejto časti bytu dominuje predovšetkým béžová a biela farba nábytku na mieru, teplé drevo v podobe okrúhleho stola, podlahy s rybínovým vzorom a šedá textília pohoviek. Farby do interiéru vniesli najmä knihy, ktorých význam je navyše podčiarknutý decentným LED podsvietením políc. Dostatočne veľké okno následne do interiéru vnáša príjemné denné svetlo.
Hlavná spálňa, aj napriek zmenšeniu jej pôvodnej rozlohy na úkor kúpeľne, svojim obyvateľom ponúka všetko, čo by mohli potrebovať – od priestrannej postele, cez plnohodnotné úložné priestory až po pracovný kút. Aj v tejto časti bytu možno vnímať dizajnovú hru s oblými tvarmi či snahu o zachovanie materiálovej kontinuity v podobe béžovej a bielej farby, ako aj teplého dreva a sivých textílií.
Detské izby naopak narúšajú neutrálnu paletu materiálov. Jedna z nich disponuje posteľou na mieru v jemnej žltej farbe, zatiaľ čo v druhej sa farba nachádza za posteľou, ktorá je doplnená o úložné priestory. Aj v tejto časti bytu možno vnímať hru s oblými rohmi, ktoré sa objavujú v tesnej nadväznosti na vstupy do miestností. „Detské izby sme orientovali do dvora, zatiaľ čo spálňu a obývaciu izbu do ulice,“ približujú orientáciu bytu autori projektu.
Neutrálna paleta farieb bola následne použitá pri riešení oboch kúpeľní a samostatnej toalety. Špecifikom je v tomto prípade novovzniknutá infrasauna obložená drevom a dostupná z kúpeľne, prislúchajúcej k hlavnej spálni. „Rodičovská kúpeľňa a sauna poskytuje priamo hotelový komfort,“ dodávajú architekti.
Realizácia vyniká najmä premyslenou rekonceptualizáciou pôvodného priestoru, ktorý namiesto radikálnych zásahov využíva jemné a dobre mienené zmeny v dispozícii, materiálovom riešení a detailoch. Citlivá práca s oblými tvarmi, svetlom a kontrastom medzi neutrálnou a akcentovanou farebnosťou vytvára bývanie, ktoré spája praktickosť s estetickým komfortom. Projekt ukazuje, ako možno aj z bežného bytu vytvoriť prostredie s vysokou mierou identity a funkčnej komplexnosti.
(Archiweb, No Architects, YIM.BA)
Sledujte YIM.BA na Instagrame.
Sledujte YIM.BA na YouTube.






































