Zástavba vinohradov bude menej konfliktná. Rinzle Rača prešli úpravou, mesto dáva zelenú
Mestská časť Bratislava – Rača zažíva v posledných rokoch výrazný stavebný rozmach. Mnohé z nových projektov vznikajú na nezastavaných pozemkoch bývalých vinohradov. Jedným z nich sú aj Rinzle Rača od rovnomenného developera, ktorý pokračuje v zbieraní povolení. Naostatok prešiel zmenami, ktoré majú prispieť k lepšiemu zapojeniu do prostredia.
Zdroj: Rinzle Rača
Plány na vznik bytového komplexu Rinzle Rača v lokalite Rinzle sú známe už dlhšie. Súhlasné záväzné stanovisko Magistrátu k investičnej činnosti získal developer Rinzle Rača s.r.o. na jar 2023. Okrem toho má zámer úspešne za sebou aj proces posudzovania vplyvov na životné prostredie (EIA). Proces však trval viac ako rok aj z dôvodu doručenia viacerých pripomienok verejnosti.
Najnovším „úlovkom“ je nové súhlasné záväzné stanovisko mesta, ktoré potvrdzuje súlad upraveného projektu s územným plánom. Komplex vznikne v území, ktoré už dlhší čas prechádza postupnou transformáciou. Projekt je plánovaný na doposiaľ nezastavanom pozemku v tesnej blízkosti ulice Úžiny, v mierne svahovitom teréne, kde sa v minulosti rozprestierali vinohrady.
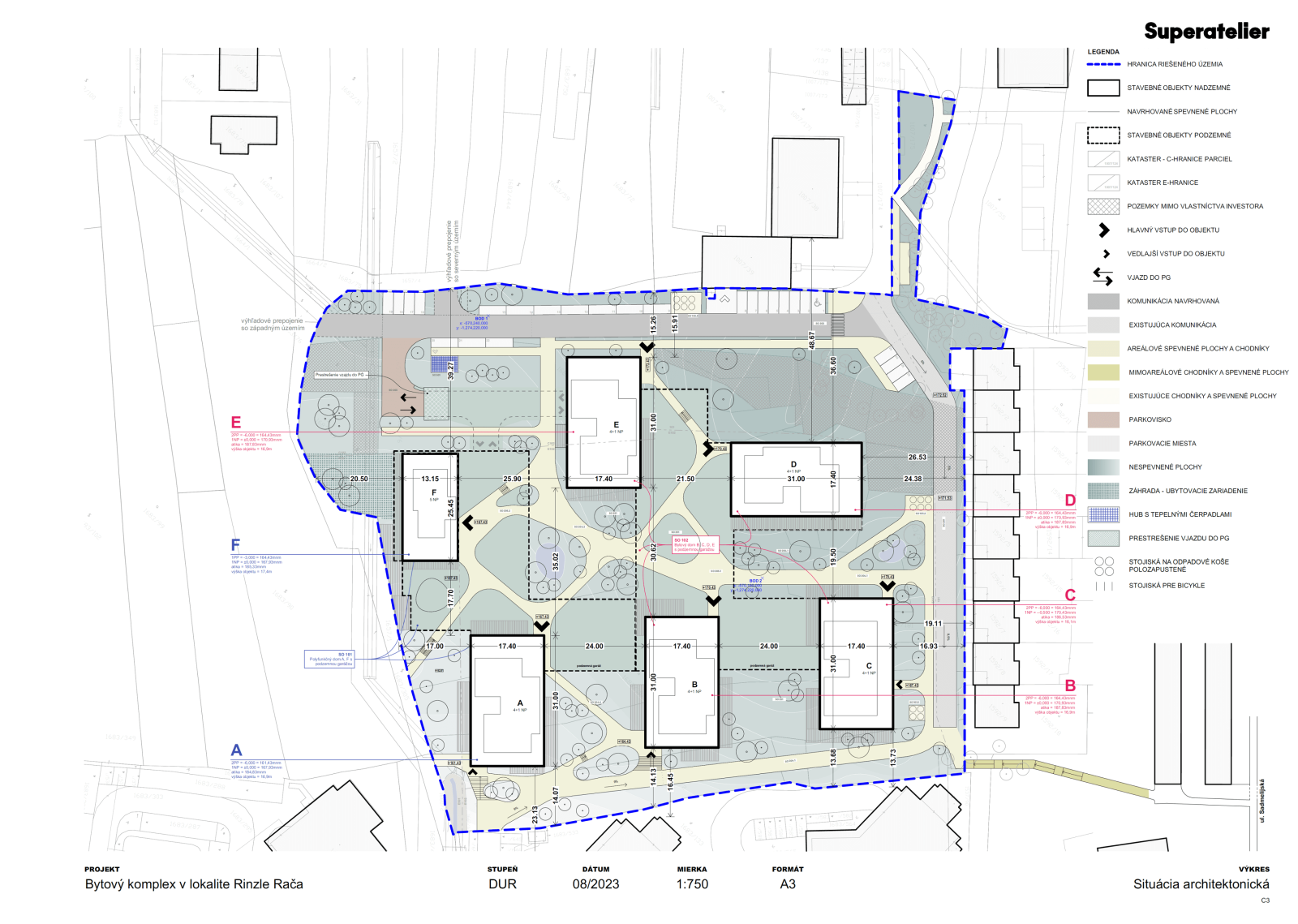
V pripravovanom zámere sa počíta s funkciou bývania, občianskej vybavenosti, dopravným vybavením vrátane podzemného a povrchového parkovania, napojením na technickú infraštruktúru a sadovými úpravami v exteriéri. Projekt je rozdelený na dva stavebné objekty - SO 101 a SO 102.
Stavebný objekt SO 101 bude pozostávať z dvoch objektov označených ako A a F, ktoré majú spoločnú podzemnú garáž s dvoma podzemnými podlažiami. Objekt A, určený pre bývanie, bude mať štyri nadzemné podlažia a jedno ustúpené. Objekt F má disponovať piatimi nadzemnými podlažiami, z toho prvé dve majú byť čiastočne využité na občiansku vybavenosť, zvyšné pre bytovú funkciu.
Na prvom nadzemnom podlaží objektu A sa navrhuje šesť bytov, z toho jeden bude 1,5-izbový, dva dvojizbové a tri trojizbové. Aj na druhom až štvrtom sa plánuje po šesť bytov, avšak pôjde o jeden 1,5-izbový, jeden dvojizbový a štyri trojizbové. Piate ustúpené bude mať dva štvorizbové byty s prístupom na strešnú terasu. Podzemné podlažia bude zahŕňať garáž s 59 parkovacími miestami, pivničné kobky, technické miestnosti a 12 bytových jednotiek, z toho štyri na druhom podzemnom podlaží a osem na prvom.
V objekte F sa na prvom nadzemnom podlaží navrhuje denný stacionár pre seniorov a administratíva s oddelenými vstupmi. Kancelárie budú prepojené s druhým nadzemným podlažím, takže pôjde o tzv. mezonetový priestor. Okrem toho na druhom podlaží vznikne aj dvojizbový a trojizbový byt. Na treťom a štvrtom sa navrhujú štyri bytové jednotky na každom podlaží - dva dvojizbové a dva trojizbové. Na piatom ustúpenom podlaží bude iba jeden štvorizbový byt s terasou.
Zdroj: Rinzle Rača
Stavebný objekt SO 102 bude zahŕňať stavby B, C, D a E, ktorých funkcia bude rezidenčná. Podzemná časť bude mať dve podzemné podlažia. Na druhom podzemnom podlaží sú navrhnuté tri bytové jednotky, prístupné aj samostatným vstupom z exteriéru, pivničné kobky a podzemná garáž so 100 parkovacími miestami. Prvé podzemné podlažie bude obsahovať 11 bytových jednotiek, pivničné kobky a 90 parkovacích miest.
V bytovom dome B a C má byť 26 bytov v každom objekte. Na prvom nadzemnom podlaží bude jeden 1,5-izbový, dva dvojizbové a tri trojizbové byty. Na typickom druhom až štvrtom je navrhovaný jeden 1,5-izbový, jeden dvojizbový a štyri trojizbové rezidencie. Na piatom podlaží budú umiestnené dva štvorizbové byty s terasou.
Objekt D bude mať na prvom podlaží dva dvojizbové a dva trojizbové byty. Na nasledujúcich troch podlažiach má byť jeden nebytový priestor a šesť bytov na každom (jeden 1,5-izbový, jeden dvojizbový a štyri trojizbové byty). Na najvyššom piatom podlaží budú opäť dva štvorizbové byty s výstupom na terasu.
Objekt E má na prvom nadzemnom podlaží navrhnuté dva 1,5 izbové, dva dvojizbové a dva trojizbové byty. Druhé podlažie je vstupné, pričom bude obsahovať jeden 1,5-izbový, dva dvojizbové a tri trojizbové jednotky. Na treťom a štvrtom vznikne jeden 1,5-izbový, jeden dvojizbový a štyri trojizbové byty a jeden nebytový priestor na každom podlaží. Na ustúpenom podlaží na úrovni piateho podlažia budú dve štvorizbové bytové jednotky s výstupom na terasy.
Zdroj: Rinzle Rača
Celkovo je v projekte Rinzle Rača navrhnutých 165 plnohodnotných bytov a 14 nebytových priestorov (nedostatočné presvetlenie). Statická doprava pre bytový komplex bude celkovo zahŕňať 276 stojísk, pričom 249 parkovacích miest je zabezpečených v podzemnej garáži a 27 parkovacích miest je navrhnutých na teréne ako verejné parkovacie státia. Architektom projektu je Superatelier.
Hlavné zmeny oproti pôvodnému stanovisku spočívajú predovšetkým v zmenšení plochy riešeného územia, zmene funkčnej náplne občianskej vybavenosti a mixu bytov a počtu obyvateľov. Taktiež došlo k úprave osadenia objektov a exteriérových priestorov, čo podľa investora prispeje k skvalitneniu pobytových vonkajších plôch. Úpravou prešlo dopravené riešenie a časť parkovacích miest sa presunula do podzemnej garáže
K záväznému stanovisku mesta sa Rača nevyjadrila, ale jej starosta Michal Drotován doručil svoje pripomienky ešte v procese EIA. Starosta žiadal, aby verejné priestranstvá boli prístupné verejnosti a požadoval realizáciu pobytového zariadenia pre seniorov. Developer tieto požiadavky akceptoval.
Projekt Pekná cesta. Zdroj: Pekná Cesta
V bývalých vinohradoch by mali pribudnúť aj ďalšie projekty. Už vo výstavbe je Pekná Cesta od spoločnosti Slanec Rača s.r.o., ktorá je kontroverzná nielen kvôli ochrane vinohradov. Rozporuplné reakcie vznikli tiež z dôvodu nutnosti vytvoriť nové spojenie Račianskej a Horskej ulice prostredníctvom predĺženej Malokrasňanskej.
Na mieste pôvodných vinohradov má taktiež vzniknúť Hroznový sad od rovnomenného investora. Výstavba je naplánovaná v lokalite medzi Alstrovou ulicou a križovatkou ulíc Hečkova a Kadnárova. V rovnakej lokalite sa pripravuje i projekt Na Rinzloch od HMS Services, a.s. Neďaleko od spomínaných zámerov sa pripravuje projekt Knižkova dolina od spoločnosti SYNAPSIS Property Ventures. Ide o výstavbu 37 rodinných domov s jednotným dizajnom, ktoré už majú vydané územné rozhodnutie.
Projekt Rinzle Rača predstavuje ďalší diel skladačky v mozaike premeny tejto vinohradníckej lokality na veľkú obytnú štvrť. Napriek nesúhlasu časti verejnosti či výhradám samosprávy, výstavba v Rači pokračuje vysokým tempom a súčasťou tohto procesu sa stávajú aj ďalšie zámery. Regulácia, ktorá by zabránila takýmto zásahom, príde až o niekoľko rokov.
Sledujte YIM.BA na Instagrame.
Sledujte YIM.BA na YouTube.

























