Aktivisti neuspeli. Netradičný projekt dostal zelenú, zmena obľúbeného trhoviska sa blíži
Zámer Polyfunkčného komplexu Nový trh patrí v mnohých ohľadoch k najnezvyčajnejším projektom v meste. Dané to je jeho architektúrou, polohou aj zástavbou, ktorú nahradí. S plánmi na jeho výstavbu však nie sú stotožnení všetci. Výhrady niektorých občanov boli natoľko vážne, až sa zdalo, že môžu narušiť realizáciu projektu ako takého.
Zdroj: INTRADE Financial Investments, s.r.o. / EIA
Komplex ma vzniknúť v lokalite, ktorá je väčšine Bratislavčanov dobre známa – v susedstve trhoviska Miletičova. Nahradiť by mal existujúcu administratívnu budovu Kovoprojektu, ktorá by mala byť kompletne asanovaná. Predpokladaný termín začiatku výstavby bol odhadovaný na rok 2024 a ukončenie výstavby na rok 2027. Vzhľadom na dlhý proces posudzovania a následné odvolania je ale možné, že sa začiatok výstavby posunie.
Architektonickú časť zveril developer INTRADE Financial Investments, s.r.o. do rúk architektonickej kancelárii Architekti Šebo Lichý, ktorá je známa svojou výraznou architektúrou a otvorenosťou k experimentom. Z vizuálneho hľadiska tak bude Nový trh naozaj výnimočným počinom. Pôjde o ďaleko výraznejšiu dominantu ako súčasný objekt Kovoprojektu.
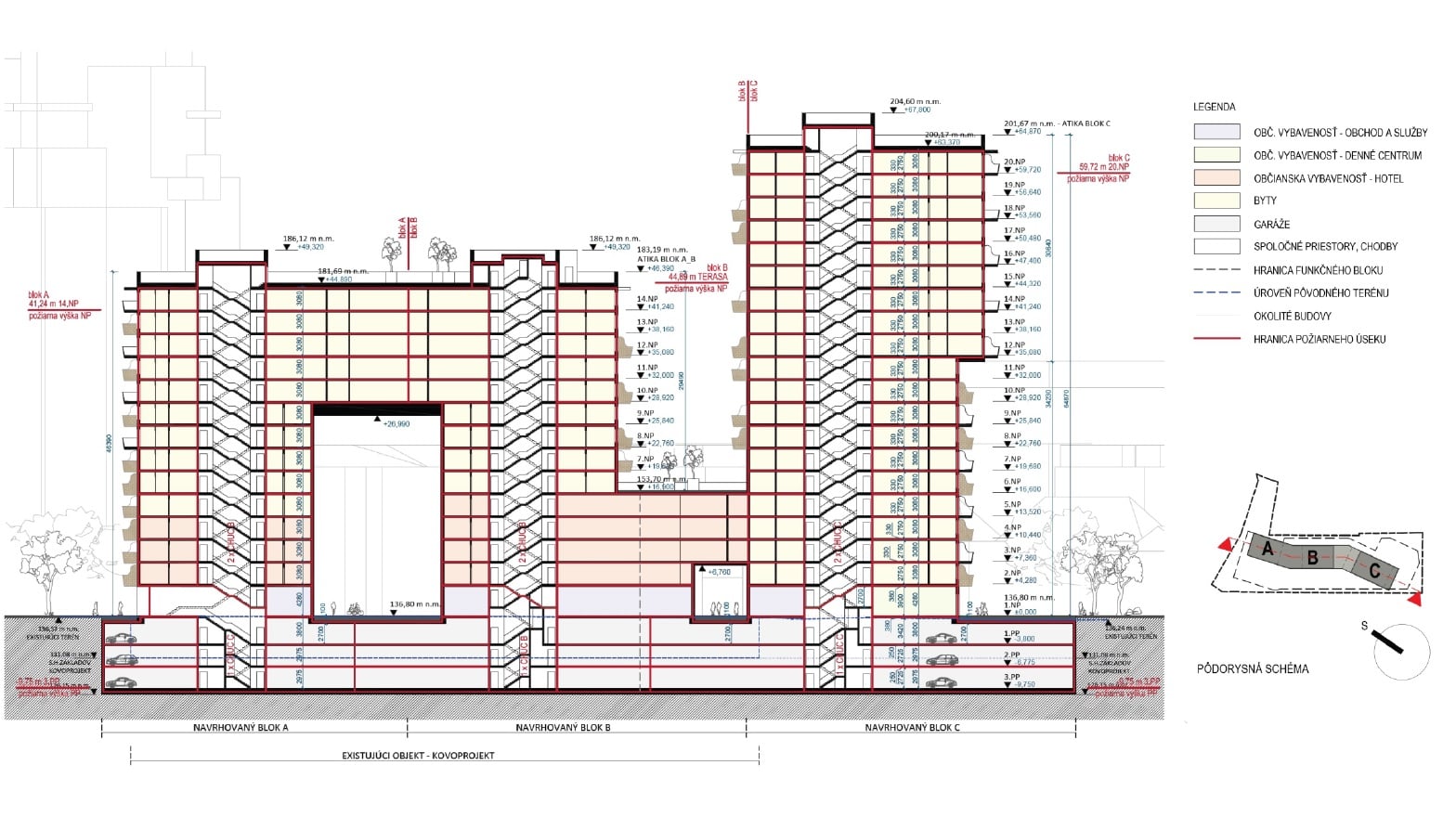
Navrhovaný súbor pozostáva z dvoch základných častí – prvú tvorí blok A a B a druhú blok C. Nižšia časť, tvorená blokom A a B, bude mať 14 podlaží. Umiestnená bude v severnej časti pozemku a jej tvar pripomína bránu s otvorom. Otvor bude siahať do úrovne 9. podlažia. Vyššia časť, teda blok C, bude mať 20 podlaží a od bloku B bude oddelená 5-podlažným krčkom. Pod krčkom bude ďalšia menšia „brána“, v tomto prípade obchodná pasáž. Hlavný vstup do projektu bude situovaný na východnej strane, na juhozápadnej vznikne otvorený verejný priestor.
Hlavnou funkciou projektu bude bývanie, ktoré bude umiestnené v troch blokoch. Spodné podlažia blokov A a B budú využité ako Garni hotel so 127 izbami a príslušenstvom. V parteri bude umiestnená občianska vybavenosť, teda obchody a služby, vrátane raňajkárne, slúžiacej Garni hotelu. Okrem toho by sa v polyfunkčnom objekte malo nachádzať celkovo 242 bytov, z toho 126 2-izbových, 100 3-izbových a 16 4-izbových, ktoré sa budú nachádzať na najvyššom podlaží. V južnej časti komplexu má byť umiestnené denné centrum s prislúchajúcim verejným priestorom a miestom pre detské hry.
Súčasťou architektúry je aj zeleň, ktorá je navrhnutá nielen na verejných priestranstvách, ale aj na strechách bloku A, B, C, na 6. nadzemnom podlaží bloku B, C aj nad pozemnými konštrukciami garáže. Čo sa týka parkovania, pozitívom je, že zo 449 parkovacích miest má byť 440 umiestnených v trojpodlažnej podzemnej garáži. Pomerne veľkorysé bude parkovanie pre bicykle, nachádzať by sa tu malo 225 stojísk, z toho 188 v podzemí.
Rez projektom. Zdroj: INTRADE Financial Investments, s.r.o. / EIA
Predmet silného odporu
Záverečné stanovisko v rámci posudzovania vplyvov na životné prostredie (EIA) bolo vydané už v decembri 2022, teda takmer presne rok po podaní zámeru na Okresný úrad. Právoplatnosti sa však dočkalo až koncom júna 2023. Nie každému sa totiž predložený zámer pozdával. Odrazilo sa to na viacerých odvolaniach voči vydanému rozhodnutiu.
Jedným z nespokojných občanov bol aktivista a novinár Jakub Lipták, ktorý je vo všeobecnosti známy kritickým postojom k viacerým projektom (električka na Pribinovej ulici, Nový Istropolis). Vo svojom odvolaní uvádza, že sa obáva o nezákonnosť rozhodnutia z viacerých dôvodov. Okrem iného vo svojom odvolaní uviedol, že sa okresný úrad nevyjadril ku všetkým jeho pripomienkam k zámeru, navyše bude mať podľa jeho názoru zbúranie existujúcej budovy Kovoprojektu negatívny vplyv na životné prostredie, a keďže bola budova v roku 2010 rekonštruovaná, považuje ju za plne funkčnú.
Rovnako uvádza, že viaceré podmienky (pravdepodobne v predchádzajúcich povoleniach) obsahujú povinnosť „zvážiť”. V ďalších riadkoch sa rečníckymi otázkami pýta, čo tento pojem znamená. Argumentuje tým, že podmienky musia byť formulované tak, aby boli merateľné, nakoľko limitujú a regulujú projekt. „Iným slovom bližšie definujú prípustný projektový návrh, tento však musí byť podľa §12 zákona o životnom prostredí vyhodnotiteľný podľa prahových hodnôt uvedených v osobitnom právnom predpise,” uvádza Lipták. Podľa neho teda nestačí v podmienke uviesť len pojem zvážiť. Nakoniec však svoje odvolanie vzal späť. Ako dôvod uviedol, že má za to, že odvolací orgán s vysokou pravdepodobnosťou potvrdí vydané rozhodnutie a tak by bolo jeho odvolanie bezúčelné.
Ďalším nespokojným občanom bola Soňa Sadáková, ktorá žiadala o preskúmanie zákonnosti rozhodnutia, pretože podľa jej názoru okresný úrad nepostupoval v súlade so správnym poriadkom ani so zákonom o posudzovaní vplyvov. Nedoručil totiž rozhodnutie vydané v zisťovacom konaní, ale len upovedomenie o vydaní rozhodnutia. Rozhodnutie úradu tak napadla s argumentom o doručovaní písomností, kde podľa nej vyplýva otázka, či bolo v súlade so zákonom. Poukazovala aj na nesprávne podpísanie listu, ktoré prebehlo ručne a nie elektronicky. Napriek tomu, že môže ísť o pochybenie zo strany okresného úradu, a nie navrhovateľa alebo o vadu zámeru, chyby v správnom konaní môžu mať skutočne za následok zrušenie rozhodnutia.
Okrem tohto odvolania však podala občianka aj doplnenie odvolania, ktoré už rieši aj samotný zámer. Podľa jej názoru by akustická štúdia mala riešiť nielen navrhovanú činnosť ako takú, ale aj hluk pri búraní existujúceho objektu a výstavbu navrhovanej činnosti. Ďalej je toho názoru, že v rámci zisťovacieho konania mal byť predložený aj podrobný hydrogeologický prieskum, aby bolo možné vyhodnotiť priame a nepriame vplyvy navrhovanej činnosti na túto zložku životného prostredia.
Doručené bolo aj tretie odvolanie, v ktorom Soňa Sadáková trvá na predchádzajúcich dvoch odvolaniach a žiada odvolací orgán o dôsledné preskúmanie celého zisťovacieho konania, nakoľko sa domnievala že konanie nebolo vykonané v súlade o zákonom o posudzovaní vplyvom na životné prostredie a zákonom o správnom konaní.
Okresný úrad podľa nej taktiež pochybil, keď Sadákovej neodpísal na email a teda nepostupoval v súlade so zákonom o slobodnom prístupe k informáciám. Ďalej uvádza, že v zámere projektu absentuje vyhodnotenie vplyvov búrania existujúcej administratívnej budovy na životné prostredie. Rozhodnutie zo dňa 15. decembra 2022 podľa nej neobsahovalo vyhodnotenie predpokladaných vplyvov na životné prostredie a podľa Sadákovej sa jedná len o kópiu vplyvov zo zámeru.
Rozuzlenie prišlo na konci júna, kedy Enviroportál zverejnil právoplatné rozhodnutie zo zisťovacieho konania a rozhodnutie z odboru opravných prostriedkov. Výsledkom rozhodnutia je zamietnutie odvolaní a potvrdenie rozhodnutia zo zisťovacieho konania, ktoré nadobudlo právoplatnosť 13.6.2023. Projekt sa tak môže posunúť smerom k územnému konaniu.
Situácia. Zdroj: INTRADE Financial Investments, s.r.o. / EIA
Kontroverzný Nový trh?
Hoci z posudzovania vplyvov na životné prostredie aj záväzného stanoviska Hlavného mesta vyplýva, že Nový trh je v súlade s legislatívou, v súčasnosti vyvoláva pomerne rozpačité reakcie. Zverejnená vizualizácia alebo rez naznačujú, že vznikne tvarovo neobyčajná budova, pri ktorej bude nesmierne záležať na kvalitnom výrazovom prevedení. Pokiaľ sa autorom nepodarí vytvoriť príťažlivú podobu domu, pri trhovisku Miletičova vznikne architektonické fiasko.
Štandardne ale platí, že v rámci dokumentácie EIA sa nezverejňujú finálne vizualizácie. Vo výsledku tak môžu projekty vyzerať omnoho lepšie. Exponovaná lokalita v okolí trhoviska Miletičova patrí k častiam Bratislavy, kde sú nároky na kvalitu architektúry vyššie. Dané to je polohou v rámci mesta, vysokou návštevnosťou územia, ale aj problematickou históriou výstavby v okolí. Niektoré realizácie, napríklad Glória alebo Jégého Alej I-II sú z architektonického hľadiska skôr príťažou. Nový development by mal ich nedostatky preto vyvažovať.
Či sa to podarí, nie je v tomto momente ešte možné zodpovedne povedať. Ak si ale Nový trh zachová dnes prezentovanú podobu, nie je vylúčené, že si nájde viac kritikov ako nadšencov.
Sledujte YIM.BA na Instagrame.
Sledujte YIM.BA na YouTube.




















