Únik z mestského ruchu. Pozrite si výnimočné domy v štýle slow living, ktoré predstavujú pokojné útočiská blízko prírode
Dostupnosť bývania, jeho finančná náročnosť, ale aj potreba pokojnej oázy obklopenej prírodou predstavujú dôvody, prečo mnohí zvažujú život v nehnuteľnosti, umožňujúcej fungovať v zmysle pomalého životného štýlu. Či už pre plnohodnotné celoročné bývanie alebo kvôli víkendovému oddychu, spoločným menovateľom týchto domov je orientácia na pobyt v prírode za minimálne náklady. Slow living kladie na funkčnosť, jednoduchosť a schopnosť priestoru podporovať harmóniu medzi človekom a jeho každodenným fungovaním.
Zdroj: Peter Jurkovič
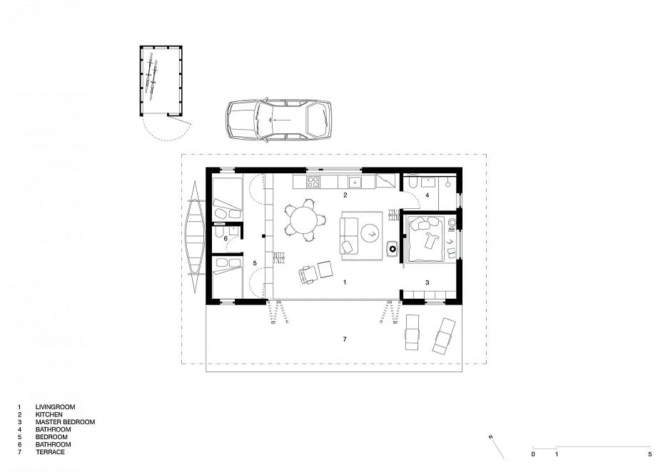
Nízkorozpočtový dom v záhrade
Obyvatelia nízkonákladového domu, navrhnutého štúdiom JRKVC, sa rozhodli nájsť vlastný spôsob, ako získať bývanie, ktoré bude komfortné, finančne menej náročné a poskytne im zázemie. Voľba padla na dom, umiestnený v pôvodnej záhrade rodičov majiteľov a pokrývajúci minimálnu zastavanú plochu. Tá sa násobí pridaním podlažia, slúžiacim ako nočná zóna.
Stavbu realizoval pár svojpomocne, pričom trvala štyri roky. Jej obyvateľom sa tak podarilo vytvoriť ideálny priestor, podporujúci koncept tichého, pomalého životného štýlu uprostred prírody. Po architektonickej stránke pôdorys pracuje s blokovým delením, keď dispozícia pozostáva z jednoduchého obdĺžnika. Dôraz na prepojenie interiéru s vonkajšou zeleňou je zjavný najmä vďaka nadrozmerným terasovým dverám a panorámu rámujúcim oknám. Priestor je tak presvetlený a vizuálne pútavý.
Dôležitým prvkom domu je jeho fasáda. Úprava dreveného obkladu vo výsledku docielila dramatický efekt, pričom má aj funkčné využitie - nielen, že izoluje, ale zabezpečuje aj bezúdržbovosť objektu.
Interiér, podobne ako exteriér, sa orientuje na jednoduché línie a prívetivú atmosféru. Zariadenie, ktoré je prevažne vstavané, je prevažne z masívneho svetlého dreva, kontrastujúceho s obložením stavby. Priznaná konštrukcia stropov, podobne ako nábytok, lemuje steny a okná, pričom dodáva priestoru útulný ráz bez pocitu zahltenia.
Jednotlivé solitéry v rôznych farbách priestor vizuálne odľahčujú a spolu s retro dizajnom svietidiel poukazujú na originalitu celého konceptu. Kreatívne a praktické riešenia nachádzame aj v kuchynskej časti, ktorá je umiestnená na nožičkách, čím zmierňuje svoju hmotu. Zaujímavým detailom, využívajúcim úložisko na maximum, sú police umiestnené v kuchynskom okne. Drobný interiér zjednocuje liata podlaha.
Nenápadný domček tak získal praktickú dispozíciu, poskytujúci miesto pre všetko potrebné, či minimalistické priestory s kreatívnymi riešeniami aj dizajnom. Svojim obyvateľom priniesol bývanie bez záťaže a stresu.
Dom v záhrade. Autor: Peter Jurkovič
Dom S v Stupave
Minimálna zastavaná plocha s dôrazom na efektívne využitie priestoru – to je kľúčový koncept návrhu moderného dvojpodlažného rodinného domu, situovaného na okraji záhradkárskej oblasti pri lese. Dom navrhnutý ateliérom GRAU vznikol ako riešenie pre mladý pár, ktorý hľadal útočisko mimo ruchu mesta, pričom voľbu lokality ovplyvnila aj finančná dostupnosť pozemku.
Úzky a strmý terén s pôvodnou chatkou v hornej časti plochy sa tak stal nielen príležitosťou, ale aj architektonickou výzvou. Novostavba je umiestnená v dolnej časti pozemku pri prístupovej lesnej ceste, čím efektívne využíva dostupnú infraštruktúru a pracuje s terénom, ktorý bolo potrebné optimalizovať pre výstavbu.
Projekt obmedzovala zástavba plochy regulovaná na 40 m², čo viedlo k realizácii dvoch nadzemných podlaží, čím sa priestor naplno využil. Samotné okolie domu tak nastavilo podmienky, ale aj určilo výraz stavby. Drevený obklad z opaľovaného dreva zároveň hmotu objektu usadzuje do lesnej panorámy, pričom s ňou na prvý pohľad splýva.
Exteriér domu tak reflektuje prepojenie s okolitou prírodou. Presklené plochy prepájajú vnútorné priestory s vonkajšími a maximalizujú prienik prirodzeného svetla, zatiaľ čo starostlivý výber materiálov a minimalistický dizajn podporujú koncept udržateľného bývania. Tento projekt, nominovaný na CE ZA AR 2024, predstavuje ukážku, ako možno zdanlivé limity premeniť na inšpiratívne riešenia v rámci štandardného rozpočtu s nízkymi životnými nákladmi.
V interiéri prevláda svetlý preglejkový obklad, tvoriaci jednoliaty základ priestorov, podobne ako liata podlaha so štruktúrou v zemitej farebnosti, ktorá priestor uzemňuje. Puristický návrh vhodne narúša modrá farba, použitá na nábytkových blokoch, ktorá sa prepája s čiernym schodiskom. Ostatné prvky sú ladené do bielej, čím sa uzatvára nenútený dizajn domu.
Dom S v Stupave. Autor: Matej Hakár
Bývanie v Jurte
Rekreačná oblasť, na ktoré je Bratislava bohatá, sa stala ideálnou lokalitou pre výstavbu atypického bývania. Objekt s okrúhlym pôdorysom a špecifickým architektonickým vyznenímm navrhnutý štúdiom JRKVC, ukazuje, že aj v domácom kontexte môžu vznikať stavby inšpirované cudzími kultúrami.
Jurta, pozostávajúca z drevenej stropnej konštrukcie, je orámovaná geometrickým mriežkovaním, slúžiacim zároveň ako prvok podporujúci súkromie. Domu zároveň poskytuje tienenie. Odhalená konštrukcia je naostatok dizajnovo zaujímavým prvkom, obohacujúcim priestor.
Atypický interiér si vyžadoval prispôsobiť väčšinu nábytkov, pričom autor projektu vstavané úložiská vyriešil tak, že ich umiestnil do pravouhlých výklenkov pred samotným centrálnym kruhom jurty.
Dizajnové riešenie podporuje organickosť jurty, využíva svetlú farebnú schému a orientuje sa na minimalistické formy. Denná zóna jurty, teda hlavný kruh, je orámovaná zo severnej strany hygienickým zázemím a z južnej strany úložiskom a terasou, absolútne stierajúcou hranicu medzi exteriérom a interiérom. Víkendové bývanie tak spĺňa podmienky oddychu pri jazere v čo najväčšom súkromí, a zahŕňa všetko nevyhnutné pre život na 47 m².
Jurta. Autor: Peter Jurkovič
DrevoDom Devín
Suverénny víťaz tohtoročnej CE ZA AR, DrevoDom v Devíne, taktiež patrí k stavbám podporujúcim kontakt s prírodou. Navrhlo ho štúdio plusminus architekti. Využívajúc prírodné materiály, rozsiahle sklenené tabule a výhľady na zeleň, architektonicky nielen zapadá do prostredia, ale predstavuje aj nadštandardne riešený interiér. Prenesenie organických foriem do vnútorných priestorov domu je zjavené na materiálovom riešení aj pri voľbe neutrálnej a zemitej farebnosti, vrátane odtieňov zelenej. Optické prepojenie podlaží priestor otvára a vizuálne prepája do harmonického celku.
Kontinuita interiéru prirodzene prechádza do exteriéru, začínajúc presklenou fasádou a pokračujúc terasou až do záhrady, pričom ponúka panoramatický výhľad na Devínsky hrad a priame spojenie s lesmi. Tri nadzemné podlažia sú prispôsobené terénu, pričom aj v interiéri dominuje drevo a nechýbajú ani atypické prvky ako sklenená priečka medzi spálňou a kúpeľňou či práca s textilom, zjemňujúcim celý priestor.
Denná zóna s kuchyňou a obývacou izbou využíva dvojpodlažnú výšku, zatiaľ čo nočné priestory na vyšších podlažiach zabezpečujú súkromie a kľud. Strecha slúži ako relaxačná plocha s výhľadmi na okolitú prírodu, čím sa umocňuje efekt priameho kontaktu s lesom. Biofilické prvky domu poukazujú na jeho kvalitné architektonický návrh, ktorý zásadne podporuje komfortný interiér s plnohodnotným zariadením a príťažlivými solitérmi s množstvom detailov.
DrevoDom Devín. Autor: Maroš Fečík
Dom pri jazere
Jednopodlažný bungalov navrhnutý skúseným ateliérom JRKVC slúži ako rekreačné útočisko pre päťčlennú rodinu, ktorá túžila po úniku do prírody pred ruchom mesta. Puristický návrh domu v pokojnom prostredí pracuje s dôrazom na spojenie interiéru s okolitou krajinou a svojou žiarivou farebnosťou ladí s brehom jazera.
Dominantou domu je centrálny spoločenský priestor s krbovou pieckou, ktorý slúži ako hlavná zóna objektu. Vedľajšie miestnosti sú umiestnené po stranách, čím prirodzene rámujú hlavnú obývaciu zónu. Špeciálne harmonikové zasklenie umožňuje plynulé prepojenie interiéru s exteriérom, pričom strecha asymetricky prekrýva viaceré časti stavby. Na strane orientovanej k jazeru vytvára priestrannú krytú terasu, ktorá poskytuje tienenie pred počasím.
Exteriér domu je zámerne jednoduchý a čistý, s bielou monochromatickou fasádou, ktorá zdôrazňuje okolité prostredie. Minimalistický prístup kontrastuje s vzdušným interiérom, kde prevláda nevýrazná schéma farieb, ustupujúca drevodekoru a pestrému nábytku.
Interiér tak pôsobí živým a útulným dojmom, pričom farebný dizajn vytvára príjemný kontrast s čistotou vonkajšieho vzhľadu nehnuteľnosti. Detailom, dodávajúcim priestoru hĺbku, je priznaná tehlová stena, odkazujúca na autentický koncept stavby. Plynulý prechod medzi vnútorným a vonkajším priestorom podčiarkuje celkovú filozofiu domu – nenútene zapadnúť do prírody, ale zároveň ponúknuť rodine pohodlné a útulné zázemie s množstvom miesta pre rôznorodé aktivity.
Dom pri jazere. Autor: Peter Jurkovič
Dizajn, orientovaný na slow living, je o vedomej voľbe znížiť zbytočné rozptyľovanie, využiť iba nevyhnutnú plochu na bývanie a vytvoriť prostredie, ktoré zvyšuje kvalitu života. V takto navrhnutom priestore sa kladie dôraz na prirodzené svetlo, udržateľné aj prírodné materiály a viacúčelové prvky. Dizajn tak môže pomôcť integrovať slow living do každodenného života a zároveň rešpektovať estetiku aj funkčnosť bývania na nevyhnutnej ploche.
(ArchInfo, YIM.BA)
Sledujte YIM.BA na Instagrame.
Sledujte YIM.BA na YouTube.





















































