Odvážne bývanie v srdci Bratislavy. Architekti stavili na nekonvenčný interiér a autentické materiály
Nekonvenčný prístup k navrhovaniu interiérov často spochybňuje zaužívané predstavy o priestore, súkromí a funkcii. Namiesto tradičného členenia na miestnosti architekti čoraz častejšie pracujú s otvoreným pôdorysom, plynulými prechodmi a flexibilitou využitia. Pevné hranice nahrádzajú subtílne vrstvy – zmeny materiálu, osvetlenia či výšky stropu. Práve tieto princípy sa naplno prejavili v projekte Byt K76 od ateliéru TOITO.
Autor: Peter Jurkovič
Trojica architektov Tomáš Szőke, Ivan Príkopský a Katarína Príkopská založili v roku 2010 ateliér TOITO Architekti, ktorý sa venuje najmä téme bývania. Architekti podľa ich vlastných slov v návrhoch prehodnocujú realitu bývania a usilujú sa vytvoriť domov, ktorý reflektuje potreby a sny užívateľov. „Bývanie mimo štandardný rámec plochy, rozpočtu, zaužívaných vzťahov a predstáv je nosná téma ateliéru,” tvrdia o svojej práci.
Práve pre nekonvenčný prístup k obytným priestorom sa ich realizácie často nachádzajú medzi nomináciami na prestížne architektonické ocenenia. Viaceré z nich sa v uplynulých rokoch stali aj ich laureátmi. V rámci Ceny za architektúru CE ZA AR ateliér naposledy bodoval v roku 2022, a to v kategórii Interiér s projektom EMA.
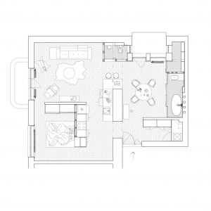
Jedným z nosných prvkov návrhov ateliéru TOITO je dôsledné prehodnotenie konvenčného členenia bytov a domov na samostatné miestnosti. Medzi pozitívne príklady pracujúce s týmto koneptom je aj jedna z najnovších realizácií ateliéru, ktorá bola na prestížne ocenenie CE ZA AR prihlásená v tomto roku, hoci medzi nominácie sa nedostala. Ide o projekt s názvom Byt K76, nachádzajúci sa v povojnovom bratislavskom objekte. Jeho podlažná plocha je 73 metrov štvorcových.
Z dispozičného hľadiska sa architekti rozhodli v obytnom priestore odstrániť takmer všetky nenosné priečky, vďaka čomu vznikol byt, ktorý je na jednotlivé funkčné plochy členený len časťou nosnej steny, nábytkom vyrobeným na mieru či inými interiérovými prvkami, ako sú posuvné dvere či vložené nábytkové kubusy. V projekte Byt K76 sa rozhodli pre otvorený pôdorys, ktorý eliminuje tradičné hranice medzi jednotlivými zónami. Toto riešenie vytvára nielen vzdušnejší interiér, ale umožňuje aj rôzne scenáre využitia priestoru počas dňa.
Atypický prístup sa prejavuje aj v spôsobe prechodu medzi jednotlivými funkčnými zónami – namiesto dverí alebo zárubní využívajú zmeny v materiáli, výške stropu alebo orientácii svetla, čím vzniká jemná, ale jasná orientácia v priestore bez potreby fyzických bariér.
Po vstupe do bytu sa jeho obyvatelia ocitnú vo vstupnej hale definovanej úložnými priestormi a výrazným portálom vedúcim do kuchyne. Už táto miestnosť naznačuje základné materiálové riešenie projektu, ktoré následne plynule prechádza celým bytom. Odhalené tehlové steny a železobetónové či drevené rebrované stropy dopĺňa drevená podlaha a nové vrstvy v podobe na mieru navrhnutého nábytku a samostatne stojacich solitérov.
„Celý priestor je poctou remesla a pravdivosti materiálov – bez zbytočného prikrášľovania, zato s dôrazom na detail, autenticitu a architektonickú úprimnosť,” vysvetľujú základný koncept autori projektu. „Rekonštrukcia bytu K76 odhaľuje pamäť doby na kosti. Samotná očista je základom celého interiéru,” dodávajú.
Priestranná denná miestnosť pozostáva z krátkej kuchynskej linky, doplnenej o prisadený nerezový barový ostrovček, a obývacej izby, ktorej dominuje pohodlná sedacia súprava. Vďaka odstráneniu priečok je denná časť opticky otvorená a dostatočne presvetlená denným svetlom. Pôvodnú materiálovú vrstvu tu dopĺňajú výrazné nové vrstvy a solitéry.
V byte sa nachádza tiež jedna spálňa, úzka kúpeľňa a samostatná toaleta. Spálňu od dennej miestnosti oddeľuje zachovaná pôvodná priečka, ktorá je v časti spálne doplnená o úložné skrine. V spálni sa ďalej nachádza len manželská posteľ. Izba nedisponuje žiadnymi dverami.
Úzka kúpeľňa je od zvyšku bytu oddelená posuvnými polotransparentnými dverami. Jej súčasťou je len voľne stojaca vaňa a minimalisticky navrhnutá umývadlová skrinka. Toaleta bola situovaná v samostatne stojacom kubuse svetlej farby.
Projekt Byt K76 reprezentuje presne to, čo definuje tvorbu ateliéru TOITO Architekti – hľadanie možností v rámci obmedzení, skúmanie potenciálu pôvodných štruktúr a dôraz na individuálne potreby obyvateľov. Atypická dispozícia, potlačenie tradičného delenia a snaha o architektonickú úprimnosť vytvárajú originálny obytný priestor, ktorý presahuje bežné štandardy mestského bývania. Realizácia je dôkazom, že aj v rámci skromnej výmery možno vytvoriť komplexný a esteticky silný priestor, ktorý reflektuje nielen funkčné, ale aj emocionálne a hodnotové aspekty bývania.
(TOITO, YIM.BA)
Sledujte YIM.BA na Instagrame.
Sledujte YIM.BA na YouTube.




























