Bývanie snov s výhľadom na hrad. Rodinný dom na okraji Bratislavy prepája interiér s prírodou
V lukratívnych okrajových štvrtiach Bratislavy pribúdajú v posledných rokoch viaceré kvalitné rodinné sídla. Investori ustupujú od katalógových riešení a nechávajú si navrhnúť špičkové bývanie na mieru od prestížnych architektov. K popredným pracoviskám patrí kancelária plusminusarchitekti, ktorá pri projekte Rodinný dom M navrhla harmonické spojenie bývania a prírodného prostredia.
Autori: Maroš Fečík, Filip Kandravý
Architektonické štúdio plusminusarchitekti pôsobí od roku 2004. V ich portfóliu možno nájsť predovšetkým rezidenčnú architektúru a interiéry. Príležitostne však zvyknú pracovať aj na projektoch verejných priestorov. Ich diela v minulosti získali niekoľko prestížnych ocenení, vrátane ceny CE ZA AR, Ceny Dušana Jurkoviča a ceny Drevostavba roka. Okrem toho získali aj prestížne nominácie, napríklad v roku 2009 na cenu Mies van der Rohe Award.
Medzi najnovšie realizácie štúdia patrí novostavba rodinného domu, ktorý sa nachádza na juhozápadnom okraji Devína. Premyslená architektúra v tomto prípade ukážkovo reaguje na existujúcu morfológiu terénu a orientáciu pozemku. Vnútorné priestory domu ponúkajú unikátne interiérové prvky a riešenia, ktoré tvoria nielen funkčný, ale aj vizuálne zaujímavý koncept.
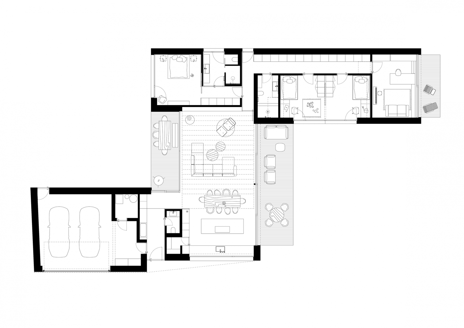
V roku 2023 bola pod taktovkou architektov z ateliéru plusminus dokončená realizácia projektu s názvom Rodinný dom M. Ten sa nachádza na okraji Bratislavy, tentokrát na severozápadnej strane. Rodinný dom je súčasťou developerskej lokality v Záhorskej Bystrici. Pozemok, na ktorom stojí, má mierne svahovitý terén a rozlohu približne 30x45 metrov. Vďaka pomerne lukratívnej polohe majú obyvatelia domu výhľad na neďaleký hrad Pajštún.
Úžitková plocha celého objektu dosahuje 240 metrov štvorcových. Všetky miestnosti sú situované na jednom nadzemnom podlaží. „Prvotné zadanie a lokalitný program uvažovali o dvojpodlažnom dome, čo sa nám s využitím plnej miery zastavanosti pozemku podarilo zredukovať do jednopodlažnej hmoty, ktorá vytvára plynulejšie prerastanie domu a menšej záhrady,“ popisujú architekti.
Vstupná hala je pomerne úzka a plynulo pokračuje do rozľahlej dennej miestnosti, ku ktorej prislúcha hlavná vonkajšia terasa. Súčasťou obývacej izby je veľká sedacia súprava v tvare U s priamym výhľadom na TV stenu. Vďaka pomeru otvorených a uzatvorených úložných priestorov však pripomína skôr knižnicu. V tejto časti domu bol umiestnený aj atypický závesný čierny krb, ktorý tvorí jednu z hlavných dominánt celého priestoru.
Pri kuchynskej linke sa nachádza jedálenské sedenie pre desať osôb, doplnené o výrazné závesné svietidlo. Kuchynská linka bola navrhnutá v tmavom dreve. Jeho odtieň korešponduje s drevom použitým na vonkajšej fasáde tejto časti domu. Kuchynská linka v sebe zároveň ukrýva vstup do menšej špajze a rozľahlý barový pult s dodatočným sedením.
Dostatok prirodzeného svetla v dennej miestnosti zabezpečuje niekoľko okenných otvorov. Vzhľadom na rozmiestnenie okien bola kuchynská linka navrhnutá bez horných skriniek. Potrebný úložný priestor bol doplnený čiernym závesným boxom. Dodatočné presvetlenie priestoru je zabezpečené aj strešným svetlíkom nad jedálenským sedením.
Druhé krídlo domu tvorí nočná časť, zložená z detských izieb, hlavnej spálne, pracovne a hygienického zázemia. Do hlavnej spálne sa vstupuje cez menší šatník. Prislúcha k nej aj samostatná kúpeľňa. Do detských izieb a pracovne sa vchádza cez úzku chodbu, ktorá disponuje dostatkom úložného priestoru.
Výber materiálov v interiéri pozostáva z príjemne pôsobiaceho drevodekoru, betónového stropu a sivej farby v rôznych odtieňoch. Nechýbajú ani čierne detaily použité na svietidlách či iných kusoch nábytku.
Odlišná funkčná náplň jednotlivých krídel domu sa odzrkadlila aj na riešení jeho fasády. „Je kombináciou drevenej prevetrávanej fasády z cédrových dosiek primorených na čierno a betónovej omietky,“ popisujú autori projektu.
Z konštrukčného hľadiska architekti zvolili kombinovaný systém zložený z oceľobetónových horizontálnych konštrukcií a murovaných vertikálnych konštrukcií. Dôležitou súčasťou návrhu bola aj plochá strecha ukončená extenzívnou zeleňou. K domu prislúcha aj garáž pre dve autá.
Okrem exteriérovej terasy sa na pozemku nachádza dostatok zelene a spevnených plôch, ktorých rozmiestnenie vychádzalo z požiadaviek majiteľov. Za návrhom záhradného dizajnu stojí piešťanská spoločnosť Biely ateliér.
Na okraji Bratislavy vzniklo komfortné bývanie, vynikajúco prepájajúce interiér s exteriérom v rámci súčasne pôsobiaceho domu. Výrazné použitie dreva objektu dodalo príjemný charakter a navyše je environmentálne priaznivé. Ateliér plusminusarchitekti opäť dokázal svoju mimoriadnu kvalitu v rezidenčnej tvorbe. Hoci v blízkom okolí tejto realizácie vzniklo v posledných rokoch mnoho pozoruhodných domov, Rodinný dom M patrí medzi nimi k najlepším.
(plusminus architekti, archiweb.cz, YIM.BA)
Sledujte YIM.BA na Instagrame.
Sledujte YIM.BA na YouTube.






























