Byt, aký sa len tak nevidí. Unikátny experimentálny interiér prepája umenie, architektúru a život
Interiér nemusí byť len funkčným rámcom každodenného života. Môže sa stať scénou, ktorá pri vymanení sa z konvencií stimuluje zmysly, podnecuje predstavivosť a reflektuje osobnosť svojich obyvateľov. Jedným z takýchto priestrov je pražský byt Ovenecká 33 – experimentálny domov, ktorý vznikol na pomedzí architektúry, umenia a osobnej vízie.
Autor: BoysPlayNice
Rezidenčný projekt Ovenecká No. 33 sa nachádza v lukratívnej lokalite českej metropoly, len niekoľko krokov od najväčšieho pražského parku Stromovka. Svojim obyvateľom ponúka nadštandardné bývanie, umiestnené v architektonicky unikátnom modernistickom objekte.
Za obnovou pôvodného Kroftovho domu stojí štúdio TaK Architects. „Pôvodný objekt sme sa rozhodli ponechať vo svojom architektonickom tvarosloví, sústredili sa na prácu s detailom a tvorbu spoločných priestorov, kde sme sa inšpirovali slávnym dielom holandského maliara Pieta Mondriana Kompozícia s červenou, modrou a žltou,“ hovorí Marek Tichý z TaK Architects.
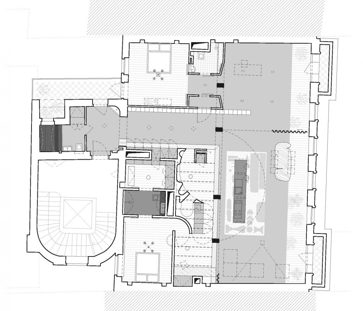
V rezidenčnom komplexe sa nachádza hneď niekoľko unikátnych interiérov. Jedným z nich je byt o rozlohe 209 metrov štvorcových, ktorý v rokoch 2021-2023 vznikol pod taktovkou štúdia Objektor Architekti. Pôvodne ho tvorili len obvodové múry a masívny betónový skelet. Ten sa stal nosným rámcom, ktorý dnes definuje dispozíciu a rytmus pohybu.
Od začiatku bolo jasné, že návrh nebude klasickým riešením bývania. Byt totiž slúži nielen ako miesto pre život majiteľov, ale aj ako priestor pre umelecké rezidencie, výstavy a spoločenské udalosti. Vďaka tejto otvorenosti ostáva živý a neustále sa vyvíjajúci.
Podľa slov architektov súčasná podoba bytu spochybňuje tradičné predstavy o architektúre tým, že posúva hranice verejných a súkromných priestorov. „Hneď som vedela, že chcem vytvoriť priestor, ktorý bude zdieľaný, otvorený a priepustný, no zároveň ukrývajúci skryté zákutia a tajomstvá. Priestor, kde sa nikdy nemusíte vracať tou istou cestou,“ vysvetľuje Tereza Porybová z Objektor Architekti.
Ako uvádza štúdio, návrh interiéru bol inšpirovaný dielami architektonických gigantov ako Luis Barragán, Valentina Schlegel či Bijoy Jain. Priestorové usporiadanie možno chápať v troch hlavných segmentoch: spoločné priestory, obytný ateliér a súkromná spálňa majiteľa. Tieto segmenty zároveň nie sú priestorovo pevne oddelené, ale práve naopak – sú plynule prepojené, čo umožňuje plynulý tok energie v celom byte.
Každá z týchto častí je zároveň v premenlivom vzťahu k ostatným – v priestore neexistujú pevné hranice, len posuvné deliace prvky, ktoré umožňujú meniť atmosféru podľa aktuálnej potreby. Zóny do seba plynulo vstupujú, miešajú sa a vytvárajú zaujímavé kompozície.
Architekti pristúpili k návrhu ako k živému scénografickému celku. Vznikol rámec, ktorý možno ďalej dopĺňať, aktualizovať a pretvárať. Statický betónový skelet tak ohraničuje plynulú, flexibilnú dispozíciu s prekvapivými pohľadmi a detailmi. Hlavný vstupný priestor oživuje štuková pitná fontána a čalúnený trón, pričom farebné akcenty prúdia z priľahlej kúpeľne. Knižnica s prísnou geometriou prechádza priechodom do dennej zóny a vytvára dramaturgický oblúk celej kompozície.
Autor: BoysPlayNice
Najväčšiu plochu v byte zaberá denná miestnosť s priľahlým ateliérom. Jej súčasťou je hneď niekoľko dominánt ako rozľahlý barový ostrov, priestor pre tvorivú prácu, ako aj atypicky rozvrhnutá kuchynská linka, jedálenské sedenie či oddychová zóna.
Každú časť bytu aj každý jeho komponent možno vnímať doslovne či symbolicky ako umelecké dielo, a to aj v prípade, že ide o prvky, ako sú úložné priestory či hygienické zázemie obytného priestoru. „Ovenecká 33 je dôkazom toho, čoho sa dá dosiahnuť, keď architektúra prijme zmenu a interdisciplinárnu kreativitu. Tento byt nie je statickým konštruktom, ale pokračujúcim dialógom medzi architektúrou, umením a ľudskou skúsenosťou – neustále sa mení a zároveň je nadčasový,“ tvrdia autori projektu.
Z materiálov v interiéri prevláda štuková omietka, brestové drevo, podlahová stierka a betón. Farebne je byt ladený v neutrálnych tónoch, pričom v každej z miestností možno nájsť aj viaceré farebné akcenty. Výnimku v neutrálnej palete tvorí dvojica kúpeľní. Práve vďaka originálnej farebnosti získali tieto priestory rovnako svoju špecifickú atmosféru. Do procesu tvorby boli prizvaní rôzni umelci, dizajnéri a priatelia, ktorých zásahy premenili interiér na súbor osobných príbehov a výpovedí.
Ovenecká 33 nie je len adresou, ale výsledkom výnimočnej spolupráce, v ktorej sa osobná vízia stretla s profesionálnym remeslom. Každý detail interiéru nesie stopu vedomého rozhodnutia a rešpektu k priestoru, histórii aj každodennosti. Vďaka citlivému prístupu, otvorenosti k experimentu a zapojeniu umeleckej komunity vznikol byt, ktorý presahuje hranice obytného priestoru.
(Objektor Architekti, Ovanecká 33, YIM.BA)
Sledujte YIM.BA na Instagrame.
Sledujte YIM.BA na YouTube.
































