Polyfunkčný blok Vlárska
Štvrť
Nové Mesto
Developer
SEDUS Group
Typ
Bývanie, Kancelárie, Retail
Architekt
PATHY Studio
Status
Zámer
Realizácia
2027 - 2029
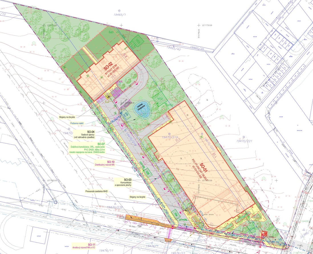
Zámer je naplánovaný na voľnom pozemku medzi existujúcou zástavbou a nemocničnými areálmi v blízkosti Vlárskej ulice. Svojim charakterom aj funkčným riešením má reflektovať túto polohu a územie tak vhodne dotvoriť.
Ďalšie informácie
| Počet podlaží | 8 |
| Počet bytov / apartmánov | 40 |
| Parkovacie miesta (podzemné / nadzemné) | 189/5 |














