Tvarovaný výhľadom, odetý do ocele. Víkendový dom neďaleko Bratislavy dokonale reaguje na okolitú prírodu
Domy v atraktívnom prírodnom prostredí kladú na architektov špecifické nároky. Zároveň však ponúkajú výnimočný potenciál v podobe silného vizuálneho kontaktu s krajinou a prirodzeného členenia dispozície. Vďaka výhľadom na okolité scenérie často vznikajú riešenia, ktoré presahujú bežné priestorové rámce a nadväzujú na okolité prostredie nielen formálne, ale aj materiálovo. Príkladom takéhoto premysleného prístupu je víkendový dom, ktorý vznikol neďaleko Bratislavy.
Autorka: Alex Shoots Buildings
Architektonické štúdio NOIZ vzniklo v roku 2015 na základe skúseností a úspešnej spolupráce architektov a dlhoročných priateľov. Od tej doby si jeho členovia kladú za cieľ vytvárať súčasnú architektúru s nadčasovým konceptom, pričom veria, že prostredie, v ktorom žijeme, má priamy efekt na naše životy.
V portfóliu ateliéru nájdeme projekty rôznych mierok a zameraní. Najčastejšie sa ale jedná o návrhy rodinných domov a interiérov. Do povedomia širšej verejnosti sa štúdio dostalo v roku 2023, keď si nimi navrhnutý rodinný dom Na rade vyslúžil víťazstvo v cene CE ZA AR 2023. Z bratislavských projektov však stojí za zmienku aj interiér Mestskej knižnice v Petržalke, interiér bytu vo funkcionalistickom obytnom dome Marienhof či interiér cukrárne Le Miam.
Medzi najnovšie realizácie štúdia NOIZ patrí tiež víkendový dom Nad Priehradou v Lozorne, ktorý bol v tomto roku prihlásený na cenu CE ZA AR 2025. Objekt je osadený na pozemku o rozlohe viac ako 1,2-tisíc metrov štvorcových, pričom jeho zastavaná plocha dosahuje 135 metrov štvorcových.
Špecifikom projektu je fakt, že ide o víkendové bývanie, ktoré svojim majiteľom ponúka nezabudnuteľné výhľady na priľahlú priehradu a okolitú prírodnú krajinu. Ako tvrdia samotní autori projektu, „práve tento výhľad určil osadenie, hmotovo-dispozičné riešenie a orientáciu stavby.“ Na základe toho bol objekt situovaný v najvyššej časti parcely, ďalej od existujúcej komunikácie a v lepšej nadväznosti na prírodné okolie.
Z architektonického hľadiska objekt svojim tvarom reaguje na okolitú zástavbu, a to ako z hľadiska výšky, tak aj z hľadiska jeho hmotového riešenia. Okrem toho je čiastočne zasadený do kopcovitého terénu, vďaka čomu vynikne jeho archetypálna časť so sedlovou strechou a obdĺžnikovým pôdorysom. Dôraz na túto časť domu sa architekti rozhodli upriamiť aj použitými materiálmi. „Zapustením nižšej hmoty do terénu sa stráca značná časť jej objemu. Prednosť dostáva objekt s charakteristickou sedlovou strechou a oceľovým plášťom, ktorý pripomína vidiecke stodoly vo svahoch,“ približujú.
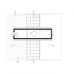
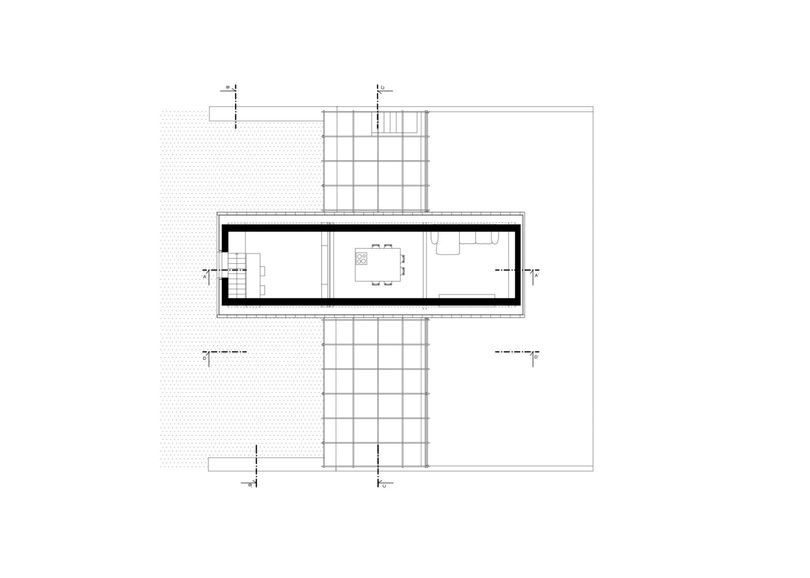
Vo vyššej hmote boli umiestnené predovšetkým denné miestnosti víkendového domu, zatiaľ čo v druhej časti s rovnou strechou sú dnes situované najmä nočné miestnosti spolu so zázemím. Podľa slov autorov práve odlišná orientácia a vzájomné kolmé osadenie týchto dvoch objemov umožňujú každej miestnosti rovnocenný a zároveň najkvalitnejší výhľad z pozemku.
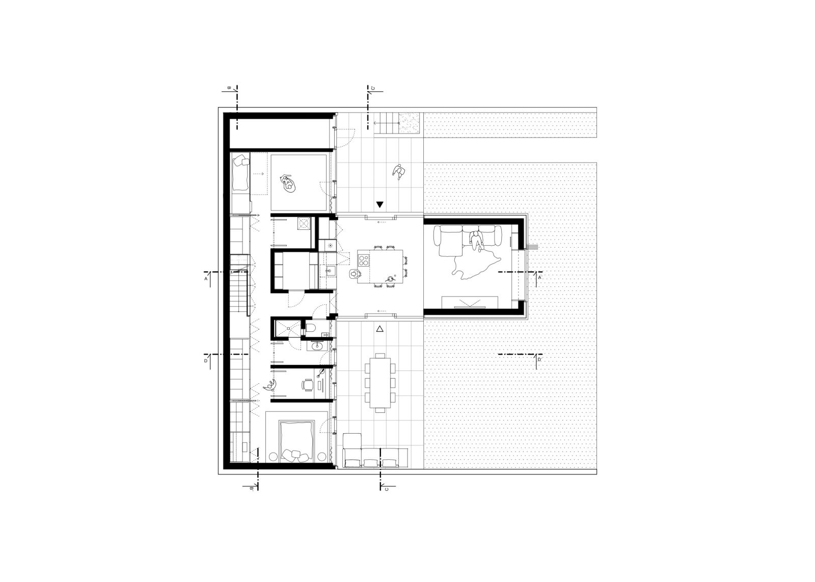
Takmer všetky potrebné miestnosti boli situované na prvom nadzemnom podlaží. Do víkendového domu sa vstupuje cez dennú miestnosť, na ktorú priamo nadväzujú obe vonkajšie terasy. Výškovo táto časť domu siaha až po strechu objektu. Jej neoddeliteľnou súčasťou sú tak drevené krovy, ako aj drevené obloženie sedlovej strechy.
Autorka: Alex Shoots Buildings
Z funkčného hľadiska sa denná miestnosť delí na kuchyňu, doplnenú o priestranný bar so sedením, a na obývaciu časť, ktorej dominuje pohovka terakotovej farby. Kuchynská linka bola navrhnutá v svetlosivom odtieni a doplnená o tmavý akcent v podobe pracovnej plochy a otvorenej police.
Naplno využitá výška tejto časti domu je aj v obývacej izbe, kde sa dominantou stala otvorená knižnica s posuvným rebríkom. Materiálovo tento komponent nadviazal na obloženie stropu a stien, vďaka čomu sa celá miestnosť nesie v útulnej atmosfére plnej dreva.
Spálne a kúpeľne situované v časti s rovnou strechou sa naopak vyznačujú rozsiahlym použitím materiálov ako je drevo či podlaha s jemným terrazzo dekorom. Drevo je v tejto časti domu použité skôr na nábytku navrhnutom na mieru či na dverách a menších solitéroch. V izbách nechýbajú ani farebné akcenty v podobe stoličiek, postele či drobných dekorácií.
Celkovo disponuje rodinný dom dvoma spálňami, samostatnou toaletou, jednou kúpeľňou, dvoma pracovňami, samostatným šatníkom či práčovňou. Jednotlivé miestnosti je možné od seba oddeliť posuvnými dverami, ako aj dvojdverami na koľajniciach. Jedna z pracovní bola v rámci objemu situovaná na druhom nadzemnom podlaží. Vďaka otvorenej galérii sa z nej naskytá priamy výhľad na obývaciu izbu. Zaujímavým detailom je tiež okrúhle okno smerujúce do zadnej časti dvora.
Projekt víkendového domu Nad Priehradou vyniká najmä spôsobom, akým bol osadený do členitého kopcovitého terénu. Architekti zo štúdia NOIZ využili výškovú diferenciáciu parcely na optimalizáciu výhľadov, čím vzniklo premyslené a zároveň jednoduché hmotové a dispozičné riešenie. Charakter domu podčiarkujú výrazné fasádne materiály – dominantný plášť z cortenovej ocele, subtílna kovová konštrukcia terasy či reflexná zrkadlová fasáda v časti s rovnou strechou. Tento sofistikovaný výber materiálov spolu s citlivou reakciou na okolie robí z projektu jedinečný príklad súčasnej vidieckej architektúry.
(NOIZ, YIM.BA)
Sledujte YIM.BA na Instagrame.
Sledujte YIM.BA na YouTube.








































