Nová éra bývania. Slovenskí architekti navrhli radikálny byt bez dverí a priečok, meniaci vnímanie dizajnu
Architektonické štúdio Kilo/Honč opäť dokazuje, že aj malé byty môžu byť veľkorysé. Ich návrh interiéru na Grösslingovej ulici v Bratislave ruší zaužívané hranice medzi miestnosťami a prináša revolučný koncept spojitého priestoru. Svetlo, priehľady a premyslené materiálové riešenia tu vytvárajú prostredie, kde všetko potrebné zostáva na dosah, no zároveň rafinovane skryté.
Autor: Matej Hakár
Štúdio Kilo/Honč vedie dvojica Richard Kilo a Matej Honč, ktorí pred založením vlastného ateliéru pracovali vo viacerých významných slovenských architektonických štúdiách ako Gutgut či TOITO. O svojej práci tvrdia, že radi vytvárajú takzvané menej efektívne priestory.
„Je pre nás dôležité vytvárať priestory, ktoré nás podnecujú k tomu, aby sme vedome robili nejaké aktivity, a niekedy je to možno aj cez nejaký diskomfort. Nie je pre nás dôležité ten priestor nastavovať tak, aby bolo jeho používanie a fungovanie v ňom tak jednoduché, že mu nemusíme venovať pozornosť,“ opísal filozofiu štúdia Matej Honč v podcaste How I Met My Architect.
Architektonický ateliér má vo svojom portfóliu hneď niekoľko unikátnych projektov, čo potvrdzujú viaceré nominácie aj víťazstvá v rámci prestížnych ocenení. V roku 2020 sa vďaka projektu Apartmány Svätoplukova stali laureátmi ceny Big See Interior Design Award. O dva roky neskôr zas s trnavským projektom Byt 1903 bodovali v slovenskom ocenení CE ZA AR.
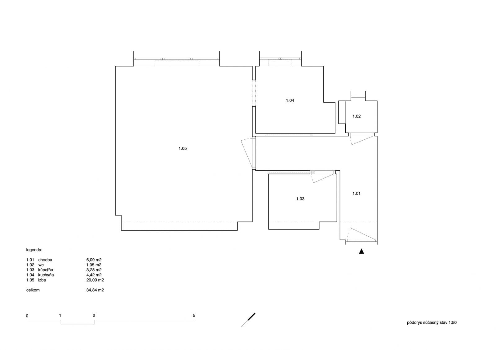
V roku 2023 bol dokončený aj jeden z najnovších projektov, ktorý vznikol pod taktovkou architektonického štúdia Kilo/Honč. Nesie názov Byt Grösslingova a nachádza sa na rovnomennej bratislavskej ulici. Jeho výmera dosahuje 35,88 metra štvorcového. Pôvodne pozostával z tmavej vstupnej chodby, samostatnej toalety, kúpeľne, oddelenej kuchyne a jednej izby.
Súčasťou návrhu bolo odstránenie takmer všetkých priečok v byte, vďaka čomu mohla vzniknúť jedna priestranná miestnosť, ktorá v sebe spája všetky potrebné funkcie. Úplne oddelená v rámci dispozície neostala ani toaleta ukrytá za priečkou s otvorom v plnej výške.
„Povedali sme si, že je dôležité svetlo. Nový, denný priestor malého bytu, ktorý bude mať dve krásne a veľké okná. V pôvodnej dispozícii prislúchalo každé okno jednej miestnosti, a tým vznikla tmavá chodba,“ uvádzajú architekti. „Jeden veľký, svetlý priestor definovaný len fasádou domu a zo zadnej strany transparentnou sklo-betónovou stenou, za ktorou sa nachádza všetko potrebné, aby sa v byte dalo komfortne fungovať – kúpeľňa so sprchou, práčka, umývadlo, skrine a úložné priestory," dodávajú.
Dominantou celého priestoru sa bezpochyby stala nová, centrálne umiestnená priečka, ktorá nie je kolmá na žiadnu z obvodových stien. Z materiálového hľadiska ide o kombináciu sklobetónových kociek a betónového základu. Priečka oddeľuje dennú zónu od tej nočnej a okrem spálne za sebou ukrýva aj kúpeľňu.
Autor: Matej Hakár
„Spálňa je jediné miesto, ktoré je na pomedzí oboch svetov. Vo svojej pozícii na konci bytu popred ňu už neprechádza sklobetónová stena, ale pokračuje betónový základ vo forme múriku a záves, ktoré jemne naznačujú, že sa nachádzame v intímnejšej časti bytu,“ približujú autori projektu. Zároveň zdôrazňujú, že vďaka materiálovému a preistorovému riešeniu vidíme aj von, na kuchyňu a jedáleň, a vďaka osadeniu premietacieho plátna si na nej obyvatelia bytu môžu čokoľvek premietať.
Okrem sklobetónovej priečky sa v centre dispozície nachádza tiež malá kuchynka bez horných skriniek, ktorú v rámci dennej zóny dopĺňa jedálenské sedenie a dvojica kresiel. Jednej zo stien navyše dominuje priestranná otvorená knižnica, ktorá prechádza cez dennú časť až do spálne. Kúpeľňa bola v rámci dispozície situovaná medzi spálňu a vstupnú halu. Vymedzená je výškovým prevýšením aj odlišným materiálom použitým na podlahe.
V celom interiéri dominujú svetlé farby doplnené o výraznejšie kusové prvky ako koberce či kreslá. K presvetleniu celého priestoru zároveň prispieva niekoľko zrkadlových plôch. Ku komfortnejšej atmosfére bezpochyby dopomáha aj dostatok zelene a drevo v podobe konferenčného stolíka, postele či jedálenských stoličiek.
„Máme veľmi radi zadania, ktoré vo svojej finálnej podobe naučia niečo aj nás a aj klientov. Tak ako v tomto prípade. Úžasná diskusia a spätná väzba, živé rozhovory, chuť posunúť sa o krok ďalej a vyskúšať ešte nevyskúšané. Rozprávať sa dlho, len a hlavne o priestore, jeho svetle, priehľadoch a momentoch, ktoré ako celok vytvára. Ostatné len ako subtilné pozadie, ktoré v podstate ostáva nedopovedané,“ dodávajú k projektu architekti z ateliéru Kilo/Honč.
(Archdaily, Kilo/Honč, YIM.BA)
Sledujte YIM.BA na Instagrame.
Sledujte YIM.BA na YouTube.



























