Miliónový byt pri ikonickom Rozhlase. Luxusné spojenie dvoch priestorov prinieslo nadštandardne vkusný interiér
Interiéry s dôrazom na premyslenú dispozíciu, funkčné prispôsobenie priestoru klientom, kvalitné materiály a sofistikovaný dizajn predstavujú príklad prepojenia interiérového dizajnu a estetiky. Bývanie je o to výnimočnejšie, ak sa nachádza na lukratívnej adrese a s výhľadom na ikonu architektúry.
Autor: Lukáš Važan
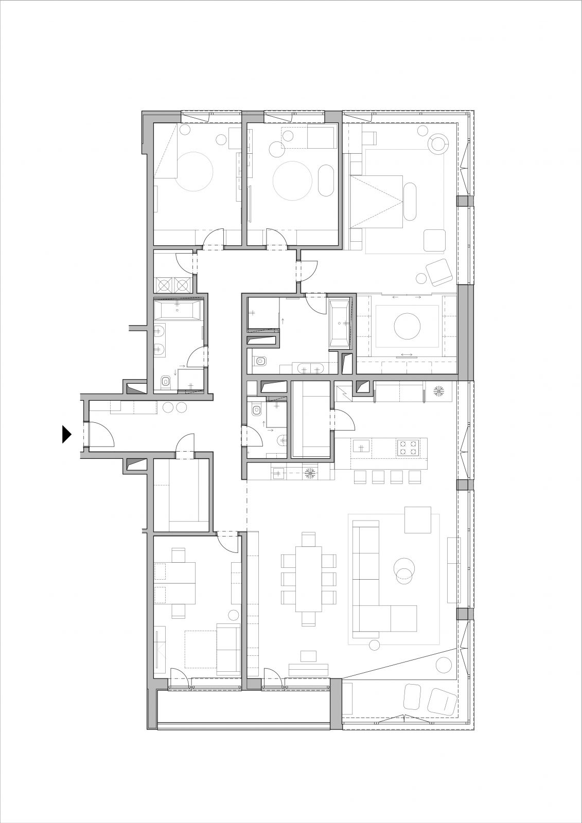
Byt, ktorý vznikol spojením dvoch samostatných bytových jednotiek, je navrhnutý pre rodinu s malými deťmi. Zásadným konceptom, formujúcim všetky aspekty bývania bol dôraz na výber materiálov tak, aby bol v súlade s lokalitou aj očakávaním klientov. Prepojenie prinieslo bývanie na ploche 248 m2. O návrh sa postaralo štúdio SALPIETRA & GAJDOS architects, medzinárodné duo architektov, založené v roku 2012.
Dva apartmány, umiestnené na štvrtom podlaží luxusného projektu Five Star Residence Condominium, spojila potreba rozľahlého, otvoreného útočiska. Zadanie však pracovalo s požiadavkou čistého, svetlého a sofistikovaného dizajnu, orientovaného na rodinný život, čo vzhľadom na prítomnosť detí môže znieť náročne. Architektom sa však podarilo vytvoriť interiér evokujúci pokoj a eleganciu s ohľadom na všetkých členov domácnosti.
Five Star Residence je rezidenčný projekt situovaný na Námestí slobody v bratislavskom Starom Meste. Ponúka nadštandardné bývanie s väčšou podlažnou plochou a loggiami. Umiestnenie v pešej dostupnosti historického centra a výhľady na mesto, vrátane Slavína.
Materiálové zloženie bolo taktiež ovplyvnené klientmi, ktorí požadovali neutrálnu, svetlú farebnosť v kombinácii s drevodekorom. Zdôraznili aj výber podlahy, orientovaný na nerušivú štruktúru dreva a tlmený odtieň, a potrebu rozsiahleho ostrova, prípadne poloostrova v kuchyni. Vyžiadali si taktiež začlenenie baru, ľahko udržiavateľný jedálenský stôl a skryté, avšak veľkorysé úložisko v obývačke.
Denná zóna, ktorej dominuje obývačka, bola navrhnutá ako flexibilný priestor prispôsobiteľný rôznorodým aktivitám rodiny. Disponuje preto premietacím plátnom a priestorom pre klavír, pričom ju formuje najmä oddychová časť. Tá je zámerne oddelená čiastočným vyvýšením, ktoré zabezpečuje aj jej vizuálnu príťažlivosť.
Otvorenosť dennej časti zachováva vizuálne prepojenie obývačky s kuchyňou, čím sa ukazujú vzájomne ladiace materiály, štruktúry, ale aj prepracovaná funkčnosť návrhu. Najmä kuchynská linka podporuje celistvosť pomocou bezškárových spojov rôznych materiálov. Dispozícia kuchyne a dôraz na ergonómiu doplnila priestrannosť tejto časti interiéru.
Z hľadiska farebnosti, ktorú definuje jednoduchá paleta, podporuje dynamiku priestoru akcentový materiál - metalické detaily s kartáčovaným zlatým povrchom, účelne rozmiestnené v interiéri. Vynikajú najmä na okrúhlych nástenných svietidlách. Elegantnú hravosť bytu zvyšuje aj striedanie matných plôch s lesklými, viditeľné najmä v spálni a obývačke. Priestor zároveň vyniká použitím dômyselných prvkov, akými sú sklenené dvierka s rastrom, rovnako v nočnej aj dennej zóne.
Princíp lamelovania sa nachádza taktiež v obývačke na strope, aj v spálni za čalúneným čelom postele. Rovnaké materiály aj farebný koncept tak tvoria ucelenú vizuálnu kontinuitu interiéru.
Dôležitým aspektom každého návrhu je osvetlenie. Nebolo to inak ani v tomto koncepčne aj dizajnovo premyslenom interiéri. Je navrhnuté tak, aby zastúpilo nielen praktickú stránku bytu, ale zároveň slúžilo aj ako dekoratívny prvok. Správne rozmiestnenie rôznych foriem svietidiel tak zabezpečilo hĺbku a hravosť priestoru, pričom zámerom bolo zdôrazniť simplicitu povrchových úprav, vďaka čomu vynikli.
Autor: Lukáš Važan
V hygienickom zázemí boli použité veľkoformátové obklady, čím sa opäť ucelil koncept homogenity naprieč interiérom. Neprerušované plochy priestor kúpeľní opticky zväčšili a drevodekor zónu zjemnil a zútulnil. Plochy drevodekoru sú prítomné v celom priestore, pričom vizuálne ukotvujú aj nočnú zónu. Spálňa pracuje s obkladom stropu, pričom je zároveň vizuálne dominantným bodom, avšak bez straty komfortnej a pokojnej atmosféry.
Detské priestory sú navrhnuté tak, aby spĺňali koncept Montessori, ktorá je založená na rozvoji vedomostí, osobnosti dieťaťa a jeho prirodzenú samostatnosť pomocou jednoduchého prístupu k všetkým častiam izby. To sa zohľadňuje najmä pri návrhu nábytku a úložných priestorov, ktoré sú zorganizované tak, aby mali deti hračky, knihy, ale aj oblečenie v dosahu. Miestnosti tak dispozične rozdelili horizontálne, tým sa podarilo priestor navrhnúť tak, aby malých obyvateľov nazahlcoval.
Interiér, založený na nenútenom dizajne reflektujúcom všetky požiadavky a potreby obyvateľov, vyniká najmä svojou funkčnou, avšak sofistikovanou estetikou. Priestor, ktorý vyžadoval dôslednú prácu s dispozíciou, vo výsledku obsiahol množstvo textúr, materiálov a detailov, nie však na úkor minimalistického dojmu. Bývanie, atypické nielen pôdorysom, ale aj návrhom, sa tak právom dostalo medzi nominantov na československý titul Interiér roku.
(Interier roku, YIM.BA)
Sledujte YIM.BA na Instagrame.
Sledujte YIM.BA na YouTube.






























