Keď je architektúra v harmónii s prírodou. Unikátny rodinný dom v susedstve národného parku čerpal inšpiráciu v miestnej tradícii
Súčasná architektúra čoraz častejšie nadväzuje na tradičné stavebné formy a materiály, ktoré prirodzene zapadajú do okolitej krajiny. Inšpirácia regionálnou architektúrou umožňuje vytvárať stavby, ktoré rešpektujú históriu a zároveň spĺňajú nároky moderného bývania. Prírodné materiály ako drevo a kameň, spolu s jednoduchými hmotami, prinášajú nadčasovosť aj vizuálnu čistotu. Presne takýto prístup zvolilo štúdio Archholiks pri návrhu rodinného domu v severoslovenskej obci.
Zdroj: Archholiks
Portfólio štúdia Archholiks je plné rezidenčných projektov a projektov interiérov. V Bratislave architekti navrhli napríklad podobu prevádzky Skybar na Hviezdoslavovom námestí či interiér administratívnych priestorov spoločnosti Resco v budove Nivy Tower. Štúdio má tiež na konte viacero zaujímavých návrhov rezidenčných interiérov.
Z novších projektov možno spomenúť rekonštrukciu trojizbového bytu na Sihoti, v ktorom zohralo významnú úlohu odkrytie pôvodných materiálov či znovuvyužitie retro kúskov nábytku, ktoré boli rodinným dedičstvom. Zo starších projektov je zaujímavým počinom napríklad interiér rodinného domu v obci Hrubá Borša či návrh a následná realizácia rodinného domu Horadom.
Architekti na návrhu rodinného domu Horadom pracovali ešte v rozmedzí rokov 2016-2017, pričom k jeho realizácii došlo v rokoch 2018-2020. Novostavba rodinného domu sa nachádza na okraji turčianskej obce Mošovce, na úpätí Národného parku Veľká Fatra. Jeho celkové hmotové aj materiálové riešenie odráža miestne architektonické tradície.
„Celkový výraz objemu domu je rozdrobený jeho strešnou krajinou s využitím dvoch sedlových striech, ktoré gradujú smerom k neďalekej hore,” približujú architekti. „Materiálové členenie domu vo veľkej miere vychádza z foriem starých skladových hospodárskych objektov, tzv. stodôl situovaných v regióne Tatier.”
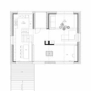
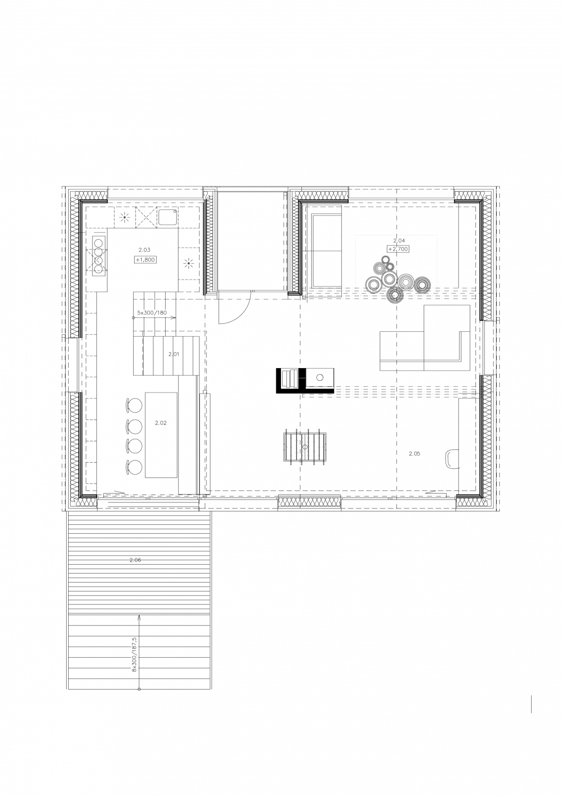
Rodinný dom pozostáva z dvoch podlaží, ktoré sú ďalej delené na dve medzistupne. Na prízemí sa nachádza nočná časť domu, ktorá pozostáva z dvoch menších izieb, jednej hlavnej spálne so šatníkom a vlastnou toaletou, technickej miestnosti a kúpeľne. Horné podlažie následne patrí dennej časti domu. Tá okrem klasických funkcií ako kuchyňa, jedáleň či obývacia izba slúži aj ako pracovňa, príp. herňa.
Atypickosť domu súvisí aj s čiastočným využitím takzvaného raumplanu. „Pozostáva zo štyroch navzájom prepojených a otvorených úrovní prístupných cez medziúrovňové schodisko,” opisujú autori. Denná miestnosť vďaka umiestneniu do najvyššej časti domu disponuje krásnymi výhľadmi do prírodného okolia. Výhľad je zabezpečený viacerými veľkorozmernými oknami, ktoré výrazným spôsobom ovplyvňujú aj fasádu domu. Osadenie dennej zóny do vrchných častí stavby zároveň umožnilo naplno zdôrazniť krásy priznanej sedlovej strechy.
Vďaka čiastočnému zapusteniu nočnej zóny pod úroveň terénu si priestor jedálne a kuchyne zachoval priamy kontakt s okolím v podobe priľahlej terasy. Z materiálov v dennej časti prevláda najmä smrekové drevo, doplnené o odhalený betón. Kuchynská linka bola navrhnutá v tmavosivej farbe, ktorá predstavuje príjemný kontrast k zvyšku podlažia. Zaujímavým detailom je kovový nástenný element s čiernymi policami.
V obývacej izbe architekti zvolili skôr svetlosivé textílie a prvky. Dominantou sa tu popri výraznej sedlovej streche stáva aj centrálne osadený krb s priestorom na drevo. Najvýraznejším komponentom pracovnej časti je nástenný systém, zložený z políc, uzavretých skriniek a pracovného stola. Na spodné podlažie sa obyvatelia domu dostanú po betónovom schodisku. V nižších častiach domu rovnako prevláda najmä priznaný betón na stenách a smrekové drevo, použité na nábytku na mieru, ako aj na obkladoch stien.
Vstup je riešený v podobe haly s betónovým stropom a množstvom otvorených úložných priestorov. Svetlo sa do chodby dostáva skrz schodisko, vedúce do dennej miestnosti, ako aj cez plexisklo použité na dverách, smerujúcich do detských izieb. Tie sú rozmerovo totožné a obe disponujú jednou celopresklenou stenou s výhľadom do okolia.
Medzi detskými izbami sa nachádza hlavná kúpeľňa s obdĺžnikovým pôdorysom, ktorej súčasťou je toaleta, bidet, umývadlová skrinka aj sprchový kút. Okrem časti so sprchovým kútom sú jej steny v plnom rozsahu obložené smrekovým drevom. Drobné detaily v podobe vešiakov, kľučiek či kúpeľňového príslušenstva boli navrhnuté v čiernej farbe.
Samostatným priestorom v rámci domu je hlavná spálňa, ku ktorej prislúcha šatník aj osobitná toaleta. Do tejto časti domu sa vstupuje cez drevené schodisko. Materiálovo nočná časť domu kopíruje tú dennú, vďaka čomu celý interiér pôsobí harmonicky.
Rodinný dom v Mošovciach je ukážkovým príkladom súčasného prístupu k využitiu tradičnej architektonickej formy v spojení s modernými funkčnými požiadavkami. Sedlové strechy, inšpirované historickými stodolami regiónu, prirodzene zapadajú do okolitej krajiny a vytvárajú harmonický dialóg s prostredím. Premyslené materiálové riešenie, kde dominujú prírodné materiály ako smrekové drevo a priznaný betón, umocňuje nadčasovosť a útulnosť interiéru, pričom podporuje vizuálnu čistotu celého priestoru.
(Archholiks, Archiweb.cz, YIM.BA)
Sledujte YIM.BA na Instagrame.
Sledujte YIM.BA na YouTube.


































