Štýlové retro s nádychom minimalizmu. Premena historického bytu v Bratislave ukazuje funkčný interiér bez zásadných úprav
Kombinácia moderného dizajnu a retro prvkov sa stále viac a viac dostáva aj do slovenskej interiérovej tvorby. Priekopníkmi v tomto prístupe sú architekti zo štúdia GRAU. Dokazuje to mnoho ich projektov, vrátane nedávno zrekonštruovaného bytu na Šoltésovej ulici. Hlavnú úlohu pri návrhu zohrali minimalistické línie a farebné akcenty.
Autor: Matej Hakár
Architektonické štúdio GRAU pôsobí na poli slovenskej architektúry a interiérového dizajnu už viac ako 10 rokov. V ich portfóliu nájdeme projekty verejných stavieb, rodinných domov, rezidenčných interiérov, kancelárskych priestorov či rôznych dočasných objektov a inštalácií.
Ich diela pravidelne súťažia o rôzne prestížne ocenenia. V roku 2016 získali s interiérom obchodu Slávica sošku CE ZA AR v kategórii Interiér. Dva roky po sebe uspeli v európskom ocenení BIG SEE AWARD s interiérmi bistro SOHO a optiky ZITA.
V poslednom ročníku ceny CE ZA AR sa do užšieho výberu dostal napríklad ich projekt Dom S v Stupave či interiér Bazén byt v Bratislave. V prípade druhého spomenutého projektu sa architektom podarilo nomináciu premeniť na víťazstvo.
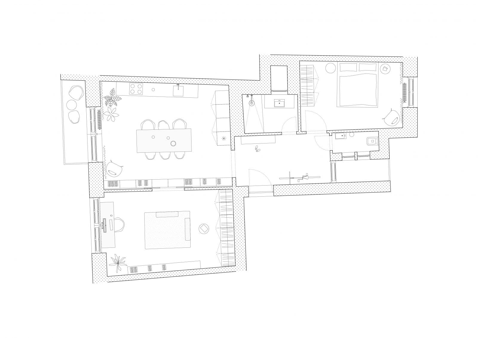
Vo vyše desaťročnej praxi architektonického štúdia GRAU nájdeme aj iné zaujímavé bratislavské zámery z oblasti interiérového návrhu rezidenčných priestorov. V roku 2022 prebehla napríklad realizácia projektu Apartment SO. Byt o rozlohe 75 metrov štvorcových sa nachádza v prvorepublikovom dome na Šoltésovej ulici v Bratislave, ktorý v roku 1928 navrhli architekti Klimeš a Merganc.
Aj napriek tomu, že išlo o pomerne rozsiahlu rekonštrukciu, sa architektom podarilo vytvoriť moderné bývanie bez väčších stavebných úprav. V porovnaní s pôvodnou dispozíciou bol klasický dverný otvor medzi obývacou izbou a kuchyňou zrušený a nahradený dvojkrídlovými posuvnými dverami. Zrušený bol tiež malý kumbál vedľa pôvodnej toalety. Po novom bol tento priestor prepojený s toaletou, vďaka čomu sa zväčšila jej podlažná plocha.
Zmenou však prešlo samotné rozmiestnenie miestnstností. Pôvodná kuchyňa bola premiestnená na opačnú stranu bytu, vďaka čomu sa lepšie priestorovo prepojila s priľahlou obývačkou. Na jej miesto architekti umiestnili spálňu. Tá po novom susedí s menšou kúpeľňou a disponuje výhľadom do priľahlého tichého dvora. Celý byt sa tak funkčne rozdelil na pomyselnú dennú a nočnú zónu.
Autor: Matej Hakár
Pomerne rozsiahla vstupná hala ponúka obyvateľom bytu úložný priestor v podobe komody s retro nádychom a optické zväčšenie priestoru za pomoci okrúhleho zrkadla. Do kuchyne sa vchádza cez široký otvor bez dverí. Jej dominantou je popri honosnom jedálenskom sedení tiež kuchyňa atypickej modrej farby, doplnená o svetlosivé vysoké moduly po pravej strane.
Retro nádych do miestnosti vniesol popri drevenej podlahe s rybím vzorom aj výber jedálenských stoličiek z ohýbaného dreva. Dostatok úložného priestoru zabezpečuje rozsiahla knižnica tiahnuca sa po celej dĺžke priečky medzi obývacou izbou a kuchyňou. Minimalistické poňatie interiéru, ktoré je ateliéru GRAU vlastné, sa prejavilo aj pri návrhu obývacej izby.
V centre dennej zóny sa nachádza atypická, obojstranne orientovaná svetlosivá sedačka. Premyslenú vizuálnu kompozíciu tejto časti bytu následne dotvára nástenná zostava na kvety či iné dekorácie doplnená o odkladací horizontálny stolík. V miestnosti sa nachádza aj pracovný stôl, ktorý farebne korešponduje s časťou kuchynskej linky.
Rovnaká materiálová a farebná škála bola použitá aj v nočnej časti bytu. V kúpeľni obloženej bielym maloformátovým obkladom pozornosť pritiahne najmä modrá umývadlová skrinka, v spálni to sú na mieru navrhnuté nočné stolíky. „Samotná koncepcia interiéru je postavená na vizuálne solitérnych nábytkoch, ktoré podčiarkujú čistotu,“ približujú svoj zámer autori projektu. Zároveň dodávajú, že v interiéri sa využíva viacero pôvodných prvkov, ako stoličky, kreslo, botník či niektoré svietidlá.
Interiérová tvorba ateliéru GRAU sa dlhodobo vyznačuje minimalistickými tendenciami, farebnými akcentmi a kombinovaním moderných prvkov a retro solitérov. Projekt Apartment SO je preto ukážkovým príkladom ich tvorby.
Byt postavený v 20. rokoch minulého storočia sa im bez väčších stavebných úprav podarilo premeniť na moderné bývanie. V podobnom duchu sa niesol aj ich projekt Apartment H na Medenej ulici v bratislavskom Starom Meste či prestavba prízemného rodinného domu zo 70. rokov minulého storočia v bratislavskom Starom Meste.
(GRAU, YIM.BA)
Sledujte YIM.BA na Instagrame.
Sledujte YIM.BA na YouTube.


























