Keď sa zachová duša domu a pridá komfort. Dom lekárnika zo začiatku storočia prekvapí interiérom aj architektúrou
K obytným priestorom v historických budovách pristupuje každý architekt aj majiteľ rozdielne. Prevažná väčšina však kladie dôraz na zachovanie autentickej atmosféry a pôvodných prvkov, ktoré ich viedli ku kúpe nehnuteľnosti. Práve charakter súdobých objektov formuje originálne interiéry, prináša špecifické detaily a odráža vkus obyvateľa. Zásadne autentickým je v tomto kontexte aj dom lekárnika v českom meste Jindřichův Hradec.
Autor: Radek Úleha
Radovú nehnuteľnosť z roku 1911 nechal postaviť miestny lekárnik. Zásadnou výhodou domu bolo použitie solídnych materiálov, remeselné spracovanie detailov aj veľkorysé priestory. Rezidencia navyše disponovala dobovými historizujúcimi prvkami, viditeľnými aj na intenzívne vystupujúcej fasáde domu, smerujúcej do ulice.
Umiestnený v uličnej línii radovej zástavby, dom oplýval nielen kvalitným základom, ale aj komplikovaným zadaním klienta. To obnášalo rozdelenie domu na tri samostatné byty, pričom sa nesmeli narušiť originálne kvality objektu. Architekti Matěj Šebka a Martin Petřík však priniesli koncept prestavby, ktorý vytvoril funkčný a dizajnovo atypický priestor pre život.
Pôvodný pôdorys nevyhovoval potrebám päťčlennej domácnosti, avšak ako zadávateľ, tak aj architekti sa snažili o nájdenie kompromisu medzi novými prídavkami a originálnym stavom. Požiadavkou bolo aj predchádzajúce členenie domu na dva byty.
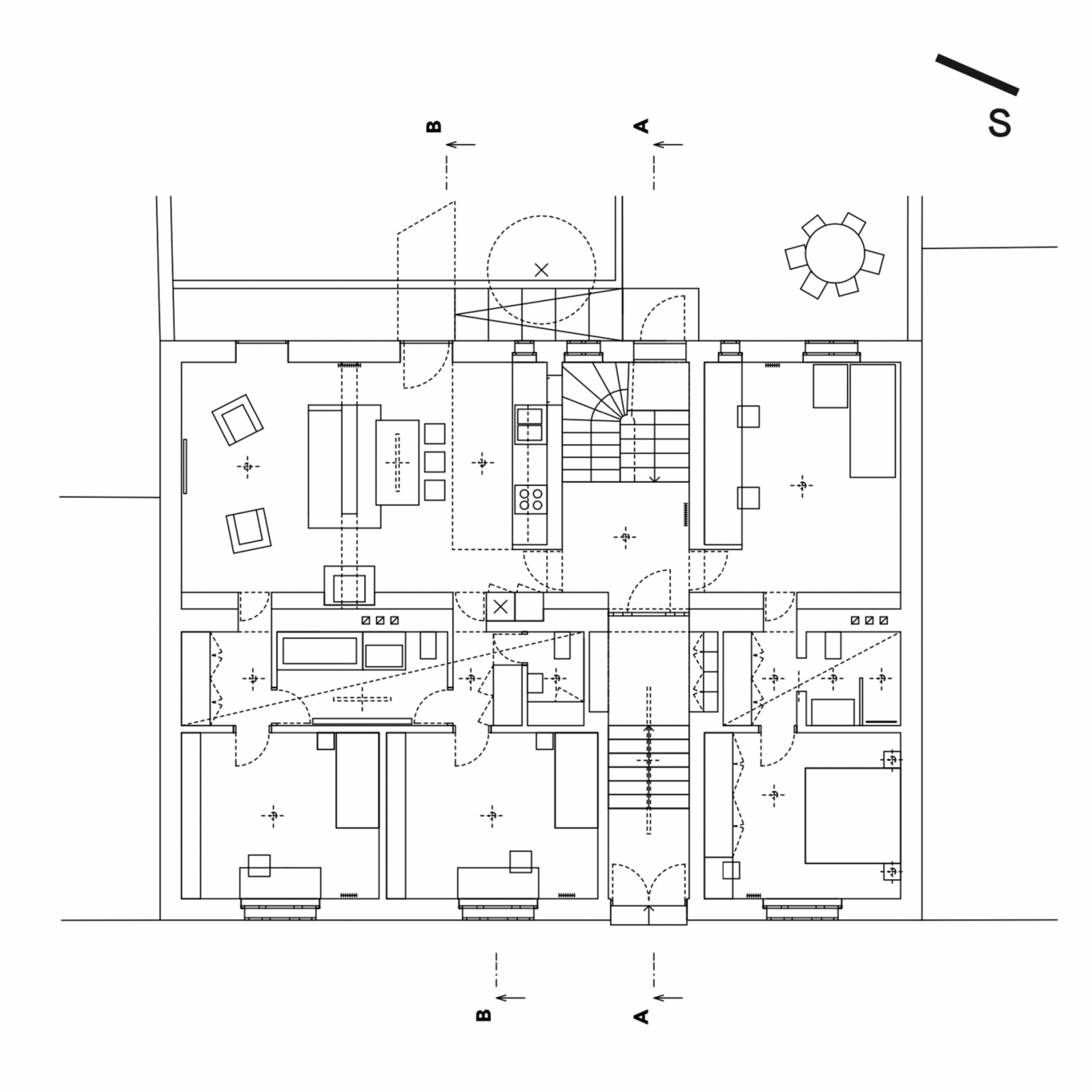
Podlažia sú dnes rozdelené na obytný priestor na prízemí, doplnené o dva byty v podkroví. Oba majú menšiu metráž, avšak v dome sa našiel priestor aj pre samostatný výtvarný ateliér, umiestnený na podlaží. Zásah do architektúry stavby bol výrazný, no napriek tomu si interiér zachoval množstvo charakteristických dobových prvkov, dokonca možno tvrdiť, že v priestore prevládajú.
Pôvodná kachľová pec, schodisko s kovaným zábradlím alebo odhalené stropné trámy vytvorili jadro domu, na ktoré sa napája zreteľne definovaná nová prístavba. Zachované boli aj úsporné prechody v rámci koridorov, vedúcich do izieb prízemia, a rôzne úrovne podláh podlaží. Dostavba pozostáva z bloku hygienického zázemia, pripojeného k bývaniu na prízemí. Zároveň do výrazu objektu zasahuje premena dvorovej fasády pomocou kreatívnej perforácie.
„Charakter a podstatu domu nemeníme. Do prízemia vkladáme jasné úzke žlté jadro kúpeľní a šatní, ktoré v dispozícii domu naliehavo chýba. Prízemie rozdelené schodiskovou halou prepájame prebúranými otvormi pozdĺž novovzniknutého jadra. Pozdĺžny priehľad domom je vedený horizontálnymi líniami veľkorysej knižnice,” približujú architekti.
Knižnica umožňuje prechod do nočnej časti domu. Predchádzajúci hlavný obytný priestor je orientovaný do presvetlených zón a záhrady. Fokálnym bodom dennej plochy je pilier, pozostatok pôvodnej steny, teraz slúžiaci ako zázemie pre sedenie. Pozornosť púta aj kachľová pec, ktorá je prirodzene výraznou súčasťou obývačky a čiastočne aj kuchyne, kam prechod okolo nej priamo ústi.
Poloha schodiska dom rozdeľovala, avšak vďaka architektom sa stalo prepájajúcim prvkom zón. Funkčným a zároveň pútavým detailom je okno, zabezpečujúce vizuálnu kontinuitu haly a ateliéru v podkroví. Okná však zohrávajú zásadnú rolu v celej stavbe. Zvýšenie prísunu prirodzeného svetla autori dosiahli zväčšením pôvodných otvorov. Čisté plochy skla korelujú s pôvodnými špaletovými rámami a ich delením.
Autor: Radek Úleha
„Úrovne podláh sa prispôsobujú pôvodným konštrukciám v podkroví tak, aby podčiarkli význam nového vnútorného usporiadania. Vysoko posadené strešné okná prinášajú svetlo do celého priestoru a skrz svetlíky aj do kúpeľní, ktoré nemajú fasádu. Pôvodnú drevenú verandu na západnej fasáde nahradzujeme ľahkým vykonzolovaným mólom, ktoré poskytuje unikátny výhľad na bývalý františkánsky kláštor v susedstve,” uzatvára duo architektov.
Materialitu, pracujúcu s rozmanitosťou povrchov a vrstvením, formujú prevažne hladké lamináty a odolné vrstvy ako nerez, ladiace s masívnymi trámami. Prirodzene vplývajú na farebnosť interiéru, pričom ju definujú pastelové tóny, doplnené intenzívnymi farbami. Tlmené odtiene zapadajú do historického kontextu, avšak bloky výrazných tónov naopak odkazujú na súčasný dizajn. Zároveň členia priestor na funkčné zóny, čo je viditeľné najmä na kombinácii podláh.
Linearita interiéru je taktiež súčasťou jeho výrazu, keď implementuje jednoduché tvary nábytkových solitérov, ale aj prvky reflektujúce dobu vzniku domu. Obklad v kuchyni pozostáva z puristických malorozmerných štvorcov, typických pre minulé storočie. Jedálenské stoličky taktiež podporujú historický ráz bývania, pričom výrazným solitérom je aj masívny dobový kredenc s plastickou rezbou.
Vrstvy interiéru tvoria homogénny celok a zároveň prinášajú priestorom jedinečný vizuál. Skladajú sa z viacerých úrovní, začínajúc plochami pôvodných maľoviek na stenách, vrstvením pôvodných a nových podlách, až po prepájanie úrovní historického a súčasného zariadenia. Samotný priestor nič nepredstiera, autori priznávajú pridané vstupy aj podporujú či odkrývajú pôvodné štruktúry času. V rámci vrstiev však vyniká nielen ich pôvod a rôznorodý dejinný charakter, ale aj efekt, aký majú na interiér.
(ArchInfo.sk, YIM.BA)
Sledujte YIM.BA na Instagrame.
Sledujte YIM.BA na YouTube.

































