Architektonické skvosty pod jednou strechou: Dvojdomy ukazujú efektívne riešenie bývania
Bývanie dvoch rodín pod jednou strechou prináša výhody v podobe úspor nákladov na výstavbu, vykurovanie či kúpu pozemkov. Dvojdomy, v ktorých dve domácnosti spája zvyčajne jedna spoločná stena, môžu byť zároveň aj architektonickými skvostami. Svedčia o tom projekty naprieč celým Slovenskom.
Zdroj: Tomáš Manina/ART OF SPACE
Dvojdom je špecifický typ rodinného domu, ktorý pozostáva z dvoch samostatných bytových jednotiek prepojených spoločnou stenou. Tento koncept bývania si získava čoraz väčšiu popularitu vďaka svojej ekonomickej, priestorovej aj ekologickej efektivite.
Medzi hlavné výhody dvojdomov patrí nižšia finančná náročnosť výstavby v porovnaní s dvoma samostatnými domami, ako aj úspora miesta na pozemku. Sú ideálnym riešením pre rodiny alebo blízkych priateľov, ktorí si chcú zachovať súkromie, no zároveň žiť v blízkosti. Dvojdomy sa zvyčajne stavajú na pozemkoch s dostatočnou šírkou, aby bola zachovaná pohodlná vzdialenosť od okolitých stavieb.
Tento typ bývania sa často objavuje v mestských aj prímestských oblastiach, kde umožňuje efektívne využitie obmedzenej plochy. Okrem toho poskytujú výborný kompromis medzi individuálnym bývaním a spoločným zdieľaním zdrojov. Ich popularita rastie aj vďaka nižším nákladom na energie, ktoré sa dajú optimalizovať prostredníctvom zdieľania spoločnej steny, čím sa znižuje tepelná strata.
Fakt, že výstavba dvojdomov predstavuje ekonomickejšie a ekologicky efektívnejšie riešenie, nemusí rodinným domom tohto typu uberať na ich architektonickej kvalite. Svedčí o tom niekoľko vydarených projektov naprieč celým Slovenskom.
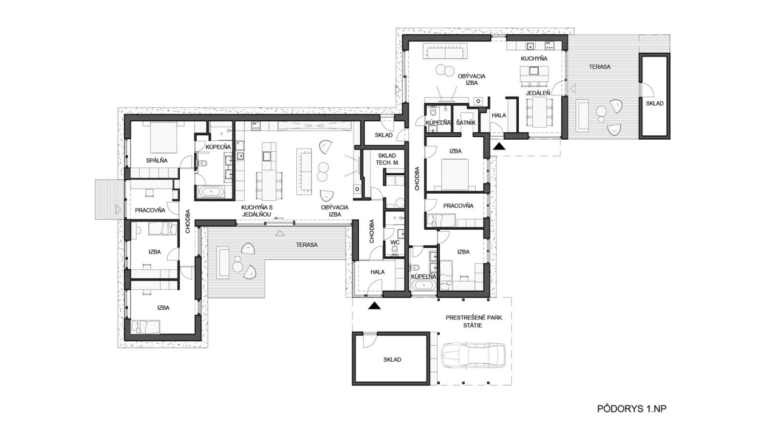
Pár rokov dozadu bola na okraji Liptovského Mikuláša dokončená výstavba dvojdomu, ktorého podobu navrhlo architektonické štúdio Architekti.sk. Jeho zastavaná plocha predstavuje 310 metrov štvorcových. Ako popisujú samotní autori projektu: „Dispozícia a veľkosť každého domu je odlišná, vychádza z ich potrieb na životný priestor, súkromie, ale aj výšku investície. Celková koncepcia spája dva odlišné zadania do jedného celku.“
Dvojdom pod Tatrami. Autor: Tomáš Manina
Výsledkom je prízemný dom, v ktorom sa spájajú pôdorysné stopy tvarov U a L. Obytná jednotka situovaná na ľavej strane pozemku disponuje dennou miestnosťou, štyrmi izbami, dvomi kúpeľňami, vstupnou halou a niekoľkými pomocnými priestormi. Druhá obytná jednotka disponuje dennou miestnosťou, troma izbami, dvomi kúpeľňami, šatníkom a vstupnou halou. K obom prislúchajú exteriérové priestory vrátane terasy a vonkajšieho skladu.
O niečo starší, no stále rovnako hodnotný projekt dvojdomu sa nachádza aj na okraji hlavného mesta. Jeho podobu rovnako navrhlo štúdio Architekti.sk. V tomto prípade vznikol špecifický rodinný dom na svahovitom pozemku a disponuje dvoma podlažiami a podkrovným priestorom o celkovej rozlohe 2x225 metrov štvorcových.
Dvojdom v lese. Autor: Tomáš Manina
Okrem nápaditej architektúry reagujúcej na okolité prírodné prostredie bohatým presklením dvojdom zaujme aj fasádou z kanadského cédra. Prírodné materiály sa architekti rozhodli preniesť aj do interiéru rodinného domu. Na rozdiel od predošlého projektu sú v tomto prípade obytné jednotky takmer úplne totožné, v dispozícii možno nájsť len drobné rozdiely.
Z výnimočnej lokality čerpá aj návrh od ateliéru ART OF SPACE, ktorého realizácia bola dokončená v roku 2019. Podlažná plocha dvojdomu v tomto prípade dosahuje 356 metrov štvorcových. Objekt sa nachádza v obci Kostolište na pomerne malom pozemku a v blízkosti vodnej plochy.
Dom a dom. Zdroj: ART OF SPACE
„Objemová skladba sa v exteriéri tvári ako jeden samostatný objekt, ale pôdorysy sú v princípe zrkadlovým obrazom. Trojpodlažné domy sú čiastočne zapustené v teréne, tvarovo i výrazovo sa otvárajú na dve možné strany,“ približujú autori návrhu. Jednotlivé podlažia v interiéri prepájajú výrazné drevené schodiská. Veľká časť obytných priestorov je orientovaná smerom k vodnej ploche, ktorú od domu delí dvojica terás.
Aj napriek tomu, že dvojdomy predstavujú špecifický typ rezidenčnej architektúry, ich dizajn nemusí zaostávať za klasickými rodinnými domami. Vďaka osloveniu architektov môžu byť zároveň funkčne zapracované aj špecifické priestorové požiadavky oboch rodín, a to bez toho, aby sa narušil jednotný architektonický výraz celého objektu. Pri správnom návrhu a realizácii dokáže dvojdom nielen efektívne využiť priestor, ale aj harmonicky zapadnúť do okolitého prostredia. Tento typ bývania tak spája praktickosť s estetickým vzhľadom a moderným riešením bývania.
(Architekti.sk, ART OF SPACE, YIM.BA)
Sledujte YIM.BA na Instagrame.
Sledujte YIM.BA na YouTube.
































