Ako sa žije v dokonale navrhnutom bývaní: Týchto päť rôznorodých interiérov nastavuje latku vysoko
Interiérový dizajn predstavuje množstvo možností a kreatívnych riešení, ako zariadiť bývanie. Práve rôznorodosť priestoru, štýlov, výnimočnosť nábytkových solitérov, ale aj samotný autorský rukopis tvorcov, formuje jedinečné interiéry. Päť projektov, vynikajúcich dispozíciou, originálnym konceptom a zariadením, či funkčne riešenou malou plochou, tak ukazuje, že kvalitný rezidenčný dizajn má byť rozmanitý a individuálny.
Autor: Matej Hakár
Staromestské bývanie na Šancovej
Byt v centre mesta, navrhnutý NOIZZ Architektmi, má jasne definovaný koncept. Jadro tvorí denná zóna, ktorá definuje podobu celého priestoru a zakladá si na vizuálnej kontinuite. Napojenie kuchynskej časti s jedálňou plynule smeruje do obývačky, pričom dominantným prvkom je lineárna kuchynská linka. Práve geometrické roviny usporadúvajú aj ostatné úložné priestory, ako policová zostava lemujúca stenu obývacej plochy.
Dôraz na minimalistický interiér je však vyvážený precíznymi detailmi, ako sú nábytkové úchyty, či dramatická farebnosť. Tá je zrejmá najmä na kuchyni, kedy antracitový odtieň linky adekvátne kontrastuje s betónovou povrchovou úpravou, doplnenou o chrómový prvok nerezovej zásteny. Lesklá povaha nerezu tak dodáva priestoru dynamiku a zároveň podporuje zosvetlenie miestnosti.
V rámci farebného riešenia návrhu teda prevládajú odtiene čiernej, drevodekor a neutrálna biela. Otvorenosť primárnej časti bytu je zachovaná opticky odľahčeným nábytkom, kedy kuchyňa nemá nástenné skrinky a ostatný nábytok kopíruje tvar stien. Intímna polovica interiéru, zložená zo spálne, izby a hygienického zázemia rovnako dodržiava puristický vizuál a kontrastné materiálové riešenie. Spálňa umožňuje prechod cez šatník s kúpeľňou a zároveň aj do pracovne, respektíve hosťovskej izby.
„Cieľom rekonštrukcie veľkorysého bytu pri Račianskom mýte bolo vytvorenie vzdušnejšieho a presvetlenejšieho priestoru dennej časti. Odstránením priečok a spojením bývalej kuchyne orientovanej do rušnej Šancovej ulice, haly a izby orientovanej do vnútrobloku sme vytvorili rozľahlý, obojstranne presvetlený denný priestor obývačky a kuchyne s jedálňou,” približujú NOIZZ Architekti.
Zdroj: NOIZZ Architekti
Bývanie v bazéne
Špecifický byt, vytvorený v priestore bývalého bazéna, má v portfóliu ateliér GRAU. Premena atypického miesta na bývanie vznikla na základe dopytu, kedy budúci majiteľ hľadal kompromis medzi bývaním v centre a nedostatočnou ponukou bytov.
Atypická dispozícia, ale aj počiatočný koncept musel pracovať s dôslednými riešeniami. Z opustenej bazénovej haly umiestnenej v rodinnom dome tak vznikol samostatný byt s nevšedným interiérom, ktorý ocenili ako víťaza kategórie Interiér na CE ZA AR 2024.
Nový priestor umožňuje komfortné viacgeneračné bývanie mladého páru s rodičmi. Poskytuje dostatok súkromia, no zároveň ponecháva možnosť úzkeho kontaktu a prepojenia s pôvodným bytom na poschodí. Zásadným problémom, ktorý priestor mal, bola nevhodná orientácia a nedostatočného prirodzeného osvetlenia. Riešením bolo dodanie nových okenných otvorov, ktoré interiér presvetlili a zároveň ho vizuálne prepojili so záhradou.
Pôdorys bol upravený pomocou nábytkovej priečky z jaseňového dreva, ktorá oddelila nočnú zónu so spálňami a schodiskom. Spálne sú situované na východ, aby zachytávali ranné svetlo. Hlavný obytný priestor zachováva otvorenosť, pričom rozmiestnenie nábytkových prvkov vymedzuje jednotlivé funkčné zóny. Vstup, jedáleň, kuchyňa a obývacia časť sú tak opticky vyčlenené, pričom práve spoločenská časť je zapustená pod úroveň podlahy. Získala tak intímnejší charakter a zároveň reflektuje pôvodný účel priestoru.
Koncept farebnosti a výberu materiálov je zameraný na minimalizmus, ktorý sa odráža aj v jasne definovaných, čistých tvaroch nábytku. Formujú ho prírodné odtiene, doplnené akcentovým prvkom v podobe modrého nosníka a stĺpu, opäť pripomínajúcu originálnu povahu bazénovej haly.
Kúpeľňa a toaleta sú obložené nerezovým materiálom, ktorý vytvára svetelné odlesky a vizuálne kompenzuje nedostatok denného svetla v miestnosti, ktorá je umiestnená hlboko v dispozícii. Dynamický prvok, dotvárajúci nielen atmosféru, ale najmä vyzdvihujúci flexibilitu priestoru, je oblúkový záves. Prináša bytu lepšiu akustiku, aj intímny ráz.
Autor: Matej Hakár
Eklektický interiér v Urban Residence
Rozľahlý byt v známom projekte s orientáciou na tri svetové strany sa nachádza na jednom z najvyšších poschodí. Ponúka tak nielen koncepčne ucelený interiér s množstvo rôznorodých detailov, ale aj panoramatické výhľady na mesto.
Veľkorysá dispozícia umožnila rozdeliť dennú časť bytu na dve hlavné zóny. Prvou je otvorená kuchyňa s centrálnym ostrovčekom, ktorej plocha umožňuje viac než komfortný priestor na prípravu jedál aj spoločenské stretnutia. Nočná časť zahŕňa hlavnú spálňu, hosťovskú izbu a samostatný šatník.
Presunutím úložiska do šatníka spálne v minimalistickom a vzdušnom duchu, čím vynikol solitérny nábytok. „Celý interiér je vizuálne prepojený jednotným farebno-materiálovým riešením. Nábytky na mieru v kombinácii svetlosivého dekoru a tmavej drevenej dyhy, spolu so štruktúrovanými povrchmi betónových stierok, navodzujú tlmený podklad pre vyznenie akcentujúcich prvkov,” opisuje interiér Dobrý Interiér.
Nábytok na mieru v kombinácii svetlých sivých tónov a tmavého dreveného dyhovania vytvára harmonický kontrast, zatiaľ čo štruktúrované betónové stierky dodávajú priestoru hĺbku a charakter.
Byt, vynikajúci zásadne práve výraznými solitérmi, kombináciou farebných akcentov a kvalitou materiálov, však pracuje s náročným návrhom. Na jednej strane je funkčné riešenie pôdorysu, na druhej pútavé architektonické prvky, akým je sklenenou priečkou oddelená pracovňa s knižnicou. Interiér tak integruje viaceré prvky, nábytky aj osvetlenie, ktoré však vo výsledku nepôsobia rušivo. Spája ich tmavá farebnosť a hravé tvary, vrátane všadeprítomného umenia.
Autor: Dominik Kurina
Byt architekta v petržalskom paneláku
Bývanie architektov v sebe zvyčajne nesie dávku očakávania okolia. Práve profesionálny prístup a vedomosť priestorových, materiálových aj nábytkových možností predpovedá výnimočný výsledok, najmä ak sa k tomu pridajú osobné, kreatívne riešenia.
Ateliér Kilo-Honč pretvoril pôvodný petržalský panelový byt jedného z členov, Martina Honča. Zdedený byt tak získal prepracovaný interiér. Zmenou dispozície, ktorými je štúdio známe, dosiahlo priehľadmi presvetlenie zón, ktoré sú umiestnené v hlbšej časti bytu.
„V krajine máme tisíce a tisíce panelových bytov, takže naša generácia musí pochopiť, že sa s nimi dá niečo robiť. Že život v panelových domoch môže byť v niektorých ohľadoch aj lepší ako v novostavbách, ktoré bývajú v súčasnosti zosekané na ekonomické minimum. Výmera panelového bytu nie je natoľko minimalizovaná, čo nám dáva priestor vymyslieť fungujúce riešenia,” objasnil architekt pre Môj dom.
Trojizbový byt definuje štandardné vymedzenie panelov, pričom pôvodná dispozícia mala až osem dverí, ktoré komplikovali otvorenosť aj funkčnosť priestoru. Odstránenie otvorov umožnilo prepojenie kuchyne s obývačkou - samotné priečky sa však nebúrali,
Snaha prepojiť dennú zónu, ktorej bolo v priestore najmenej, sa podarilo zrealizovať práve priezormi či plynule nadväzujúcim nábytkom. „Rigidné členenie miestností sme sa snažili narušiť, preto všetky dvere okrem tých na WC išli preč,“ vysvetlil Honč. Komunikácia sa zredukovala do jednej línie, prepájajúcej otvormi v stenách spoločenské priestory. Zároveň dodávajú interiéru svetlo a pocit napojenia.
Tvorba ateliéru vyzdvihuje funkčné formy, architektonický základ a príliš sa nesnaží orientovať na zariadenie interiéru. Dôraz kladú na minimalizáciu nákladov. Tento koncept je viditeľný aj v bývaní jedného z dvojice architektov. Priznané betónové stropy, aj obnova pôvodnej dubovej podlahy sa v rámci materiálového zloženia vnímali ako druhoradé, avšak prirodzene vytvorili pútavé detaily.
Priestranné otvorenie bytu však formuje aj udržateľnosť konceptu a ovplyvňuje rozmiestnenie úložných priestorov. „Nechceli sme, aby sa byt stal skladiskom nepotrebných vecí,” približuje architekt. Bývanie tak vo vstupných priestoroch, ani v spálni nedisponuje štandardnými zostavami. Úložisko je na chodbe, kedy časť nábytku prirodzene prechádza do obývačky vďaka otvorenému charakteru nábytku, čím sa odľahčila aj spálňa.
Úprava panelákovej nehnuteľnosti však priniesla aj zaujímavé solitéry, ako lavica rámujúca stenu, či neformálne pôsobiacu obývačku. Bývanie tak získalo pútavý vizuál a nový rozmer flexibility, pričom zostalo cenovo dostupné.
Autor: Matej Hakár
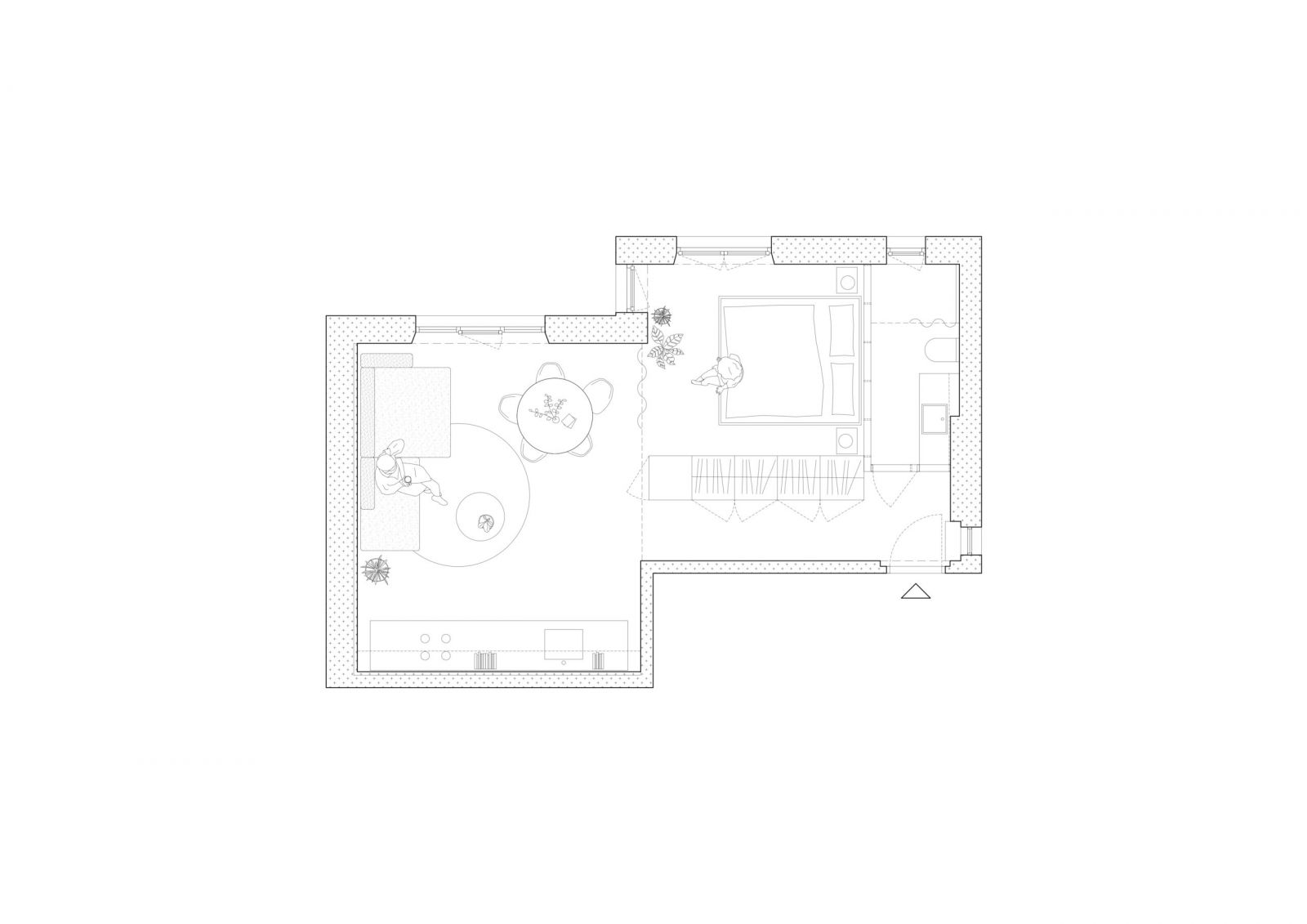
Plnohodnotné bývanie na 38 m2
Priestor bytu na Grösslingovej ulici sa rozprestiera na pomerne obmedzenej ploche v prízemí vnútrobloku známej lokality. S pôdorysním usporiadaním sa opäť rozhodlo popasovať štúdio GRAU. Nové funkcie bytu priniesli bývanie, zamerané na hravé farebné detaily a komfort, avšak v puristickom štýle. Práve menej metrov štvorcových si vyžadovalo zachovať vzdušnosť návrhu, nie však na úkor vizuálnej stránky dizajnu. Návrh tak pracuje s tvarovo zaujímavými solitérmi, obohacujúce inak čistý priestor. Charakter mu dodávajú odhalené stropy.
Otvorený koncept umožnil rozšíriť obytnú zónu a prepojiť všetky jeho funkčné časti, čím vzniklo vzdušné a plynule prepojené bývanie. Dispozícia je členená pomocou vstavaného nábytku, ktorý prirodzene rozdeľuje interiér podľa funkcií.
Kúpeľňa je oddelená stenou, ktorá pri strope plynule prechádza do preskleného svetlíka. Tento prvok zabezpečuje prirodzené osvetlenie kúpeľne a chodby počas dňa, zatiaľ čo v noci vytvára jemné podsvietenie stropu a príjemnú atmosféru.Rozsiahle okná prepájajú interiér s dvorom a umožňujú vizuálne rozšírenie priestoru smerom do exteriéru.
„Priečka kúpeľne je pri strope ukončená po celej dĺžke svetlíkom. Ten presvetľuje priestor kúpeľne a chodby cez deň a zároveň cez noc vytvára ambientné podsvietenie stropu. Veľké okná vytvárajú priame prepojenie s dvorom. Pri rekonštrukcii sme očakávali klasický drevený strop no odhalili sme jedinečný betónový strop s dreveným záklopom, ktorý bytu pridáva na jedinečnosti a autentickosti,” objasňuje ateliér GRAU.
Zdroj: GRAU
(NOIZZ, GRAU, Môj dom, Dobrý Interiér, YIM.BA)
Sledujte YIM.BA na Instagrame.
Sledujte YIM.BA na YouTube.











































